ПЛАН
Вступ
1 Призначення і класифікація сховищ
2 Вимоги до сховищ
3 Будова сховища
4 Швидкобудівні сховища
5 Протирадіаційні укриття
6 Найпростіші укриття
7 Правила користування сховищами
Висновок
Список використаної літератури
Укриття в захисних спорудах — основний і найбільш надійний спосіб захисту від усіх вражаючих факторів. Цей спосіб передбачає застосування системи захисних споруд, які відповідають можливому характеру обстановки і вимогам захисту різних категорій населення.
Систему захисних споруд становлять сховища в категорійованих містах і на найважливіших об'єктах господарювання, протирадіаційні укриття (ПРУ) у некатегорійованих містах і сільській місцевості, а також пристосовані для цієї мети метрополітени, підземні гірничі виробки, природні пустоти, найпростіші укриття у вигляді відкритих і перекритих щілин. Найважливішими напрямками в підвищенні надійності захисту є завчасне розгортання будівництва захисних споруд з метою забезпечення ними всього населення.
Комплекс заходів щодо укриття населення включає будівництво захисних споруд, підтримку їх у готовності в мирний час і організацію використання цих споруд для захисту населення. Крім того, передбачається організація прискореного будівництва частини споруд для укриття всього населення при загрозі нападу противника.
Будівництво і нагромадження фонду захисних споруд, а також пристосування і використання для укриття населення різних будинків і споруд, підвальних й інших заглиблених приміщень, метрополітенів, гірничих виробок і природних пустот є найважливішими інженерно-технічними заходами Цивільної оборони (ІТЗ ЦО) по створенню матеріальної бази для організації захисту населення в надзвичайних ситуаціях мирного і воєнного часу.
Фонд захисних споруд створюється і підтримується в стані необхідної готовності в мирний час.
Для ефективного використання захисних споруд у воєнний час плануються і підготовляються заходи щодо приведення їх у повну готовність, щодо організації заповнення споруд людьми і життєзабезпеченню людей. Особливе значення при організації укриття має швидкість оповіщення населення і заповнення захисних споруд людьми.
Мета
написання курсової роботи полягає в з`ясуванні призначення та особливостей експлуатації захисних споруд.
Досягнення поставленої мети вимагає вирішення певного кола завдань.
Завдання:
1. навести класифікацію сховищ;
2. охарактеризувати основні вимоги до сховищ;
3. розглянути будову сховища;
4. сформувати поняття про швидко будівні сховища;
5. розглянути особливості протирадіаційних укриттів.
Об`єктом
дослідження являються захисні споруди та особливості їх використання.
Дана тема досить актуальна для вивчення оскільки не на кожному господарському об`єкті на сьогоднішній день досить добре організовано забезпечення працівників захисними спорудами.
Розглянемо в своїй роботі як дана проблема вирішується на ВАТ „Чексіл” м. Чернігова (будова сховища).
Сховищами називають захисні споруди герметичного типу, які забезпечують колективний захист від дії вражаючих факторів сучасної зброї, від впливу високих температур і продуктів горіння при пожежах, від ОР і СДОР, від радіоактивних речовин і біологічних засобів. Вони повинні забезпечувати надійне укриття людей щонайменше протягом двох діб. Захист людей від впливу ударної хвилі забезпечується міцними загороджувальними конструкціями і установкою противибухових пристроїв у системі вентиляції; захист від отруйних речовин, радіоактивного пилу і біологічних засобів досягається шляхом оснащення системи фільтровентиляції спеціальним устаткуванням (протипиловими фільтрами, фільтрами-поглиначами).
Сховища класифікуються: по захисних властивостях, місткості (сумі місця для сидіння та лежання), за місцем розташування, забезпеченням фільтровентиляційним обладнанням, термінами будівництва [1].
За ступенем захисту від ударної хвилі й у залежності від коефіцієнтів захисту від γ- і нейтронного випромінювання їх поділяють на 4 класи.
Сховища 1-го класу розраховані на надлишковий тиск у фронті ударної хвилі не менше 5 кгс/см2 (500 кПа) і мають Кзах
не менше 5000; сховища 2-го класу повинні витримувати надлишковий тиск не менше 3 кгс/см2 (300 кПа) і послаблювати зовнішні γ-і нейтронне випромінювання не менше, ніж в 3000 разів; сховища 3-го класу розраховані на надлишковий тиск не менше 2 кгс/см2 (200 кПа) і Кзах
> 2000; сховища 4-го класу розраховані на надлишковий тиск не менше 1 кгс/см2 (100 кПа) і мають Кзах -
1000.
За місткістю сховища можуть будуватися на 150, 300, 600, 900, 1200, 1500, 1800, 2100, 2500, 3000 чоловік і більше.
Будівництво сховищ меншої місткості допускається у виняткових випадках при малій кількості працюючих. На підприємствах, в установах і організаціях, які мають чисельність працюючої зміни 50 чол. і менше, можуть будуватися сховища, що забезпечують колективний захист групи об'єктів.
За місцем розташування сховища можуть бути вбудовані і окремі. Вбудовані створюються в підвальних поверхах і заглиблених приміщеннях виробничих та допоміжних промислових підприємств, громадських і житлових будівель. Однак можуть створюватися і сховища, вбудовані в перші поверхи будівель і споруд. Окремі сховища будуються тільки в тих випадках, коли нема можливості мати вбудовані, наприклад, на об'єктах, які не ведуть нового будівництва [3].
По забезпеченню фільтровентиляційним обладнанням сховища можуть бути з фільтровентиляційним обладнанням промислового виготовлення або зі спрощеним, виготовленим з підручних матеріалів.
За часом будівництва сховища бувають: збудовані завчасно в мирний час і такі, що будуються швидко при загрозі нападу.
Сховища повинні забезпечувати захист людей від усіх вражаючих факторів; будуватися на ділянках місцевості, які не затоплюються; мати входи і виходи з таким же ступенем захисту, що й основні приміщення, а на випадок обвалу — аварійні виходи; мати вільні підходи, де не повинно бути спалимих матеріалів або матеріалів, які сильно димлять; мати основні приміщення висотою не менше 2,2 м і рівень підлоги, який лежить вище рівня ґрунтових вод не менше ніж на 20 см.
Фільтровентиляційне обладнання сховища повинно очищувати повітря від усіх шкідливих домішок і забезпечувати подачу чистого повітря в межах установлених норм.
Використання сховищ у мирний час для потреб народного господарства не повинно порушувати їх захисних властивостей. Переведення приміщень на режим укриттів у надзвичайних ситуаціях повинно здійснюватися в мінімально короткі терміни.
Сховища повинні забезпечувати створення необхідних санітарно-гігієнічних умов для людей. Основними показниками цих умов є: вміст вуглекислого газу, температура і вологість повітря. Повітря має містити не більше 1% вуглекислого газу (гранично допустима концентрація дорівнює 3%), мати відносну вологість не більше 70% (гранично допустима — 80%) і температуру повітря не вище +23 °С (гранично допустима — +31 °С).
Приміщення сховищ на території об`єкта поділяються на основні та допоміжні. До основних належать відсіки (приміщення для людей і тамбур-шлюзи, до допоміжних — фільтровентиляційні камери (ФВК), санітарні вузли, захищені дизельні електростанції (ДЕС), захищені входи і виходи [2].
Кількість входів у сховище визначається з розрахунку один вхід розміром 80 х 180 см на 200 чол.; але й для сховищ малої місткості бажано мати 2 входи. Вони повинні розташовуватися на протилежних сторонах. Захист від потрапляння у сховище через вхід радіоактивних і ОР забезпечується обладнанням тамбурів.
Двері повинні мати резинові прокладки і клинові затвори, які забезпечують щільне притискання дверного полотна до дверної коробки. Аварійний вихід робиться у вигляді підземної галереї розміром у поперечнику 90x130 см з виходом на територію, яка не завалюється, через вертикальну шахту, що закінчується оголів'ям
(оголів'я — верхня частина шахти аварійного виходу або системи повітропостачання; для запобігання потрапляння в шахту атмосферних опадів і сторонніх предметів обладнується козирком). Вихід у галерею закривається захисно-герметичними ставнями, які встановлюються із зовнішнього і внутрішнього боків стіни.
Оголів'я аварійного виходу повинне бути віддалене від оточуючих будинків на відстань, що становить не менше половини висоти будинку плюс 3 м, виступати над поверхнею землі на 1,2-1,5 м; и кожній його стіні повинен бути отвір розміром 0,6 х 0,8 м, обладнаний жалюзійними ґратами, які відчиняються всередину.
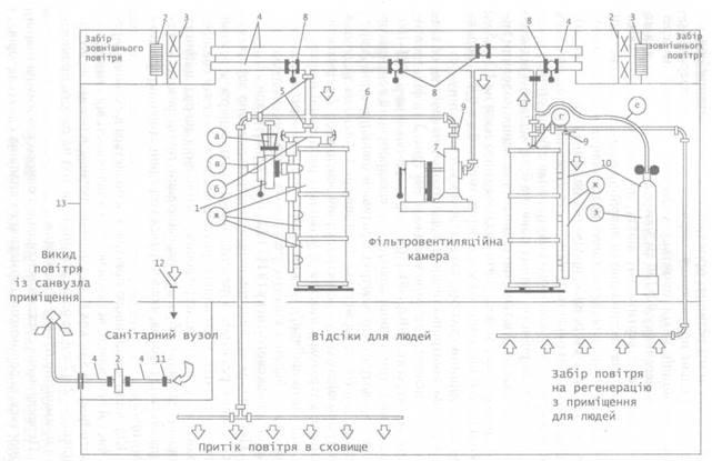
Система повітропостачання з фільтровентиляційним обладнанням промислового виготовлення включає (рис. 1): фільтровентиляційний агрегат (ФВА-49) 1 (а
— фільтри-поглиначі ФГТ-100, б
— здвоєний герметичний клапан, в
— електроручний вентилятор)РВ-49, г
— витратомір повітря); противибуховий пристрій 2; проти пилові фільтри 3;
герметичні повітроводи 4;
фланцеві з'єднання 5; повітророзвідну сітку 6;
електроручний вентилятор 7; герметичні клапани 8;
витратомір повітря 9;
установку регенерації повітря 10
(д — ущільнені шибери, є
— кисневий шланг, ж
— регенеративні патрони, з
— балон з киснем); регулюючу термічну заглушку 11;
клапан надлишкового тиску (КНТ) 12;
лінію герметизації 13.
Постачання сховищ зовнішнім повітрям повинно забезпечуватися у двох режимах: у режимі чистої вентиляції та у режимі фільтровентиляції. У сховищах, розташованих у пожежонебезпечних районах, у зонах катастрофічного затоплення, на радіаційно та хімічно небезпечних об'єктах, передбачений третій режим — режим регенерації повітря, яке міститься усередині сховища, по замкнутому циклу.
Кількість зовнішнього повітря, яке подається в сховище у режимі чистої вентиляції, встановлюється в залежності від температури цього повітря в межах 8-13 м3/год на людину, в режимі фільтровентиляції — 2 м3/год на одну людину і 5 м3/год на одного працюючого в приміщенні пункту управління [7].
Переключення системи вентиляції з одного режиму на інший здійснюється за допомогою герметичних клапанів і вентиляторів.
Рис. 1. Система повітропостачання з фільтровентиляційним обладнанням промислового виготовлення
У режимі чистої вентиляції зовнішнє повітря очищається від пилу, у тому числі і від радіоактивного, а в режимі фільтровентиляції — від радіоактивного пилу, ОР і біологічних засобів.
Для очищення повітря від радіоактивного пилу використовуються протипилові фільтри різної конструкції, зокрема масляний сітчастий. Він являє собою набір металевих сіток, зібраних у пакет розміром 520 х 520 х 80 мм. Сітки просочуються веретенним маслом. При проходженні повітря через фільтр пил, що міститься в повітрі, прилипає до масляної плівки на сітці. Продуктивність однієї комірки масляного фільтра 1000-1300 м3/год при аеродинамічному опорі від 3 до 8 мм водяного стовпчика.
Протипилові фільтри встановлюють у приміщенні (камері), відділеному від основних приміщень сховища капітальною стіною. Це забезпечує захист людей, які укриваються від впливу випромінювань радіоактивних речовин, що накопичуються у фільтрах.
Очищення повітря від ОР і бактеріальних засобів здійснюється у фільтрах-поглиначах типу ФП-100, ФП-200, ФП-300 й ін., встановлюваних у фільтровентиляційній камері. Працює фільтр-поглинач за принципом фільтруючого протигаза. Зовнішнє повітря надходить у фільтр через один з центральних отворів, проходить через картонний фільтр і шар вугілля-каталізатора, де очищається від ОР і бактеріальних засобів, та виходить через бічний отвір. Продуктивність фільтра-поглинача залежить від його розміру (табл. 1).
Таблиця 1
Основні характеристики фільтрів-поглиначів
| Марка
|
Маса
|
Розміри, мм
|
Опір, мм вод.ст.
|
Продуктивність,
м3/год
|
| діаметр
|
висота
|
| ФП-100 |
60-70 |
350 |
507 |
40-45 |
100 |
| ФП-200 |
36-66 |
545-550 |
507 |
40 - 45 |
200 |
| ФП-300 |
65-75 |
580 |
МО |
85 |
300 |
ФП-100У, на відміну від ФП-100, має запобіжник проскакування, який показує ступінь відпрацьовування фільтра-поглинача по тій чи іншій ОР.
Фільтри-поглиначі монтуються в колонки по 2-3 шт. у кожній. Монтаж колонки більше ніж з трьох фільтрів не рекомендується, тому що при цьому істотно збільшується опір колектора фільтрів. При необхідності подачі більшої кількості повітря колонки фільтрів-поглиначів об'єднуються в батареї [8].
Подача зовнішнього повітря в сховище здійснюється з допомогою вентиляторів різних систем — з ручним і (або) з електричним приводом.
У сховищах малої і середньої місткості застосовують, як правило, фільтровентиляційні агрегати ФВА-49. Один ФВА-49 забезпечує подачу повітря в кількості 300 м3/год у режимі фільтровентиляції і 400-450 м7год у режимі чистої вентиляції.
Третій режим вентиляції — регенерація внутрішнього повітря в сховищі по замкнутому циклу — може здійснюватись за допомогою регенеративних патронів типу РП-100 або регенеративних установок РУ-150/6.
Регенеративний: патрон РП-100 служить для поглинання вуглекислого газу, який утворився при диханні людей в ізольованому приміщенні і який вступає в реакцію з хімічним поглиначем, що містить гідрат окису кальцію. Реакція відбувається з виділенням водяних парів і тепла. Регенеративні патрони з таким хімічним поглиначем тільки поглинають вуглекислий газ, тому в дихальній суміші з часом буде зменшуватися процентний вміст кисню. Його недостача заповнюється з кисневих балонів через понижуючий редуктор.
Регенеративні патрони вмонтовіні у стовпчики у фільтровентиляційній камері і приєднані до всмоктувальної магістралі вентиляційної системи. Запасні кисневі балони встановллені в окремому приміщенні із захисно-герметичними дверима, які відкриваються усередину.
Потужність засобів регенерації визначають, виходячи з тривалості їх роботи протягом розрахункового терміну при нормах витрати кисню 25 л/год і поглинання вуглекислого газу 20 л/год на одну людину.
Більш досконалими засобами є РУ-150, регенеративна речовина яких забезпечує одночасне поглинання вуглекислого газу і виділення кисню.
Зовнішнє повітря для подачі в сховище через систему фільтровентиляції забирається по двох повітрозаборних каналах, з яких один є основним, а інший — аварійним (запасним).
Для захисту системи повітропостачання і фільтровентиляційного устаткування від ушкоджень, а також від проникання в сховище ударної хвилі на повітрозабірних і витяжних каналах установлюються противибухові пристрої: металеві дефлектори, спрощені захисні секції, клапани-відтиначі поплавкові й ін. Противибухові пристрої або закриваються при різкому підвищенні тиску зовнішнього повітря, або кілька разів змінюють напрямок його руху (при зміні напряму руху повітря на 90° тиск у фронті ударної хвилі зменшується у 1,5-2 рази).
Відпрацьоване повітря видаляється зі сховища через витяжні канали, у яких, крім противибухових пристроїв, встановлюються ще й клапани надлишкового тиску. Для боротьби з надлишком тепла в сховищах (у необхідних випадках) передбачаються додаткові заходи, наприклад, застосування повітроохолоджувальних установок або кондиціонерів, збільшення поверхні загороджувальних конструкцій (стін, перекриттів) з можливим збільшенням площі підлоги на одну людину 0,75 м2, збільшення обсягу повітроподачі в режимі фільтровентиляції до 5 м/год на одну людину [6].
У тепловому балансі враховуються тепловиділення від людей, електричного освітлення, пристроїв регенерації повітря і поглинання тепла загороджувальними конструкціями.
Кількість тепла і вологи при розрахунках слід приймати:
• від однієї людини: тепловиділення — 420 кДж/год, волого-виділення — 80 г/год;
• від регенеративних патронів РП-100: тепловиділення — 63 кДж/год, вологовиділення — 14 г/год (на одну людину).
Тепловиділення від електричного освітлення (в кДж/год) визначається за формулою:
Qoce= 860 х Nосв,
де N
осв
— сумарна потужність джерел освітлення, кВт.
Електропостачання здійснюється від зовнішньої мережі міста (об'єкта), а при необхідності — ще й від захищеного джерела — дизельної електростанції.
У випадку припинення електропостачання від зовнішньої мережі (і відсутності ДЕС) у сховищах передбачене аварійне освітлення від переносних електричних ліхтарів, акумуляторних батарей, велогенератора й інших джерел.
Користуватися свічками і гасовими ліхтарями можна, але тільки за умови достатньої вентиляції.
Сховище має телефонний зв'язок з пунктом управління підприємства і гучномовець, підключений до міської чи місцевої (об'єктової) радіотрансляційної мережі.
Водопостачання і каналізація сховищ здійснюється на базі міських і об'єктових водопровідних та каналізаційних мереж. Однак на випадок їх руйнування в сховищі створені аварійні запаси води і приймачі фекальних вод.
Для зберігання аварійного запасу води використовують проточні напірні резервуари або безнапірні баки, обладнані знімними кришками, клапанами і покажчиками рівня води.
Мінімальний запас води в проточних ємностях передбачений в таких кількостях: для пиття, 6 л для санітарно-гігієнічних потреб — 4 л на людину на весь розрахунковий термін перебування, а в сховищах місткістю 600 чол. і більше — додатково для цілей пожежогасіння 4,5 м3.
Проточні ємності звичайно встановлені у санітарних вузлах під стелею, а безнапірні баки — у спеціальних приміщеннях. Для знезаражування води в сховищі є запас хлорного вапна чи дві третини основної солі гіпохлориду кальцію (ДТС-ГК). Для хлорування 1 м3 води потрібно 8-10 г хлорного вапна або 4-5 г ДТС-ГК.
Санітарний вузол у сховищі влаштований окремо для чоловіків і жінок з випуском змивних вод в існуючу каналізаційну мережу. Крім того, передбачені аварійні ємності для збору нечистот. На трубопроводах водопостачання, каналізації й інших систем встановлена запірна арматура (крани, вентилі, засуви) для відключення при ушкодженні зовнішніх мереж.
У сховищі передбачане опалення від загальної опалювальної системи будинку (теплоцентралі об'єкта). При розрахунку системи опалення температуру приміщень сховищ у холодний час приймають +10 °С, якщо за умовами експлуатації їх у мирний час не потрібно вищих температур [4].
Трубопроводи різних систем життєзабезпечення усередині сховища забарвлені у відповідні кольори: білий — повітрозабірні труби режиму чистої вентиляції; жовтий — повітрозабірні труби режиму фільтровентиляції; червоний — трубопроводи режиму вентиляції по замкнутому циклу; чорний — труби електропроводки; зелені — водопровідні труби; коричневі — труби системи опалення.
На повітрозабірних трубах, на трубах водопроводу і опалення в місцях їх введення стрілками вказуаний напрямок руху повітря чи води.
У приміщеннях для людей встановлені дво- чи триярусні нари: нижній ярус — місця для сидіння з розрахунку 0,45 * 0,45 м на одну людину, для лежання з розрахунку 0,55 * 1,8 м на одну людину. Висота лав для сидіння становить 0,45 м, а відстань по вертикалі від стелі до місця для лежання — не менше 1,1 м.
Крім розглянутого внутрішнього устаткування, сховище оснащене різним протипожежним, санітарним та іншим устаткуванням.
При експлуатації сховищ організовано, швидко і чітко їх заповнюється людьми за сигналом. Загальний час, необхідний для заповнення такої захисної споруди:

де l
1,
l
2
— довжина характерних ділянок маршруту (горизонтальна поверхня, сходи тощо), м; для спрощення розрахунків перехід по сходах на один поверх можна прирівняти до потроєної висоти поверху:
V
1,
V
2
— швидкість руху на відповідних ділянках шляху, м/хв;
Тп
— час, який витрачається на проходження через вхідний отвір у споруду, хв;
Тр
— час, який витрачається людиною на виконання мінімально необхідних дій при оголошенні сигналу (збір, виключення верстатів, електроосвітлення, одягання тощо) до початку руху по споруді. Звичайно на це витрачається 1,5-2 хв.
Швидкість руху людей на відкритій ділянці маршруту без стримуючих умов зустрічних потоків пришвидшеним кроком або бігом приймається за 80-135 м/хв. Для осіб похилого віку вона буде трохи менша.
Швидкість руху при максимальній густоті потоку по горизонтальній поверхні приймають за 16 м/хв, по сходах униз — 10 м/хв, вгору — 8 м/хв.
Час на перехід через вхідні двері:
Tn
=
N
/
P
,
де N
-
місткість споруди;
Р
- пропускна здатність входу (для дверей шириною 80 см приймається 70 чол./хв.; шириною 2 м — 110 чол./хв.).
Швидкобудівні сховища (ШБС), так само як і збудовані завчасно, повинні мати приміщення для людей, місця для розміщення найпростішого промислового обладнання, санвузли, аварійний запас води, входи і виходи, аварійний вихід.
У сховищах невеликої місткості санвузол і ємності для викидів можна розміщувати в тамбурі, а баки з водою — там, де будуть розміщуватися люди.
Для будівництва ШБС найкраще застосовувати збірний залізобетон, наприклад, елементи колекторів інженерних споруд міського підземного господарства.
Щоб дотримати високий ступінь захисту сховища, на його входах треба обов'язково ставити надійні захисно-герметичні двері, розраховані на сприйняття таких же самих навантажень, як і основні конструкції сховища [2].
Внутрішнє обладнання ШБС включає заходи подачі повітря, піщані і тканинні фільтри, бачки для води, ємності для фекалій і викидів, засоби захисту повітрозабірних і витяжних отворів, прилади освітлення, а також нари або лави для розміщення людей.
Як засоби подачі повітря використовують різні вентилятори, н тому числі вентиляторні установки з велосипедним приводом і установки з міхмішками (ковальський міх).
Для очищення повітря від радіоактивних речовин і бактеріальних засобів можна використовувати гравійно-піщані або шлакові фільтри, а для очищення від пилу — тканинні.
Захист повітрозабірних і витяжних каналів від проникання ударної хвилі здійснюється за допомогою малогабаритних захисних секцій МСУ-М, дерев'яних і металевих дефлекторів (типу ДЗУ або ЗУ).
Для зберігання запасів води використовуються бачки, бочки та інші ємності, які можуть бути внесені у сховище. Санвузол обладнується в спеціальному приміщенні, відмежованому від людей. Нари і лави обладнуються з щитів і стояків.
Для освітлення можуть використовуватися батарейні або акумуляторні ліхтарі і лампи з розрахунку не менше одного світильника на 50 чоловік. Як аварійне освітлення можна використовувати свічки.
ПРУ захищають людей від зовнішнього γ- і нейтронного випромінювання і безпосереднього потрапляння радіоактивного пилу, крапель отруйних речовин і аерозолів бактеріальних засобів в органи дихання, на шкіру і одяг, а також від світлового випромінювання ядерного вибуху. При відповідній міцності конструкції ПРУ можуть частково захищати людей від дії ударної хвилі ядерного вибуху і уламків зруйнованих будівель.
За ступенем захисту від радіоактивного опромінення і ударної хвилі їх поділяють на сім груп (табл. 2).
Таблиця
2
Класифікація ПРУ за ступенем захисту
| Група ПРУ |
Кзах по γ-випромінюванню |
Тиск, що витримується ∆Рф, кг/см2 |
| 1 |
200 і більше |
0,2 |
| 2 |
200 і більше |
Не розраховується |
| 3 |
100-200 |
0,2 |
| 4 |
100-200 |
Не розраховується |
| 5 |
50-100 |
Не розраховується |
| 6 |
20-50 |
Не розраховується |
| 7 |
10-20 |
Не розраховується |
Коефіцієнт захисту Кзах
залежить від щільності матеріалу загороджувальних конструкцій, їх товщини, наявності отворів в стінах (віконних, дверних та ін.), енергії у-випромінювання і розраховується за методикою, яка викладена в СНіП-П-11-87«Захисні споруди».
ПРУ обладнують з розрахунком на найменший необхідний коефіцієнт захисту. Вони обладнуються насамперед у підвальних поверхах будинків і споруд: саме тут Кзах
має максимальне для всієї споруди значення. Так, підвали 2-3-поверхових кам'яних будівель послаблюють радіацію в 200-300 разів, середня частина підвалу кам'яної будівлі в кілька поверхів — у 500-1000 разів, підвали в дерев'яних будинках — в 7-12 разів.
Під ПРУ можна використовувати і наземні поверхи будівель і споруд. Найбільш придатні для цього кам'яні і цегляні будівлі, які мають капітальні стіни і невеликі площі отворів. Перші поверхи багатоповерхових кам'яних будинків ослаблюють радіацію в 5-7 разів, а верхні (за винятком останнього) — в 50 разів. Завчасно збудовані ПРУ за місткістю не обмежуються, обґрунтована мінімальна місткість — 5 чол.
В ПРУ передбачають основні та допоміжні приміщення. До основних відносять приміщення для людей, до допоміжних — санітарні вузли, вентиляційні камери, тамбури, приміщення для зберігання забрудненого верхнього одягу та ін.
Площа приміщення для розміщення людей розраховується, виходячи з норми на одну людину 0,4-0,5 м2.
Висоту приміщень ПРУ в будівлях, що проектуються, приймають не менше як 1,9 м. Основні приміщення ПРУ обладнують дво- або триярусними нарами, лавами для сидіння і полицями для лежання [5].
При розміщенні ПРУ в підвалах, підпіллях, гірничих виробках, погребах та інших заглиблених приміщеннях висотою 1,7-1,9 м і менше передбачають одноярусне розташування нар.
В ПРУ місткістю понад 300 чол. передбачають вентиляційне приміщення, розміри якого визначаються габаритами обладнання і площею, необхідною для його обслуговування. В ПРУ місткістю 300 чол. і менше вентиляційне обладнання допускається розташовувати безпосередньо в приміщеннях для людей.
Для зберігання зараженого одягу біля одного з виходів передбачають спеціальне місце. Воно відділяється від приміщень для людей неспалимими перегородками з межею вогнестійкості 1 год.
В укриттях місткістю до 50 чол. замість приміщення (місця) для зараженого одягу допускається обладнання біля входів вішалок, які розміщуються за завісами.
В ПРУ обладнуються не менше двох входів, розташованих у протилежних сторонах укриття під кутом 30° один до одного. На входах встановлюють звичайні двері, які ущільнюються в місцях примикання до дверних коробок.
Укриття людей в ПРУ не регламентується за часом так чітко, як їх укриття в сховищах, тому пропускну здатність входів можна не ставити в залежність від місткості укриття.
У заміській зоні під ПРУ в першу чергу пристосовують підвали житлових будинків, будівель різноманітного призначення, погреби і овочеві сховища, приміщення кам'яних, бетонних, глинобитних, дерев'яних і саманних будинків, природні печери і пустоти, гірничі виробки.
Пристосування під ПРУ будь-якого придатного приміщення зводиться до виконання робіт з підвищення його захисних властивостей, герметизації і обладнання найпростішої вентиляції. Захисні властивості підвищуються збільшенням товщини стін, перекриттів, дверей, закладанням вікон та інших елементів. Для цього зовні навколо стін, які виступають над поверхнею землі, влаштовують ґрунтове обсипання, закладають віконні і зайві дверні отвори, перекриття засипають ґрунтом. При цьому слід мати на увазі, що додаткове засипання ґрунтом перекриттів потребує, як правило, попереднього посилення їх конструкцій.
Для герметизації приміщень, призначених для захисту людей, ретельно замазують усі тріщини, щілини, отвори в стелях, стінах, вікнах, дверях, місцях введення труб опалення і водопостачання. Двері оббивають повстю, руберойдом, лінолеумом, іншими щільними матеріалами, а їх краї — пористою резиною: підготовані таким чином вони повинні бути щільно зачинені (притиснуті). Вентиляція заглиблених укриттів місткістю до 50 чол. здійснюється природним провітрюванням через приточний і витяжний короби. Короби роблять з дощок або у вигляді азбестоцементних керамічних чи металевих труб з внутрішнім перетином 200 - 300 см2.Зверху над коробами встановлюють козирки, а внизу (в приміщенні) — щільно підігнані засуви (заслінки, які повертаються). В приточному коробі встановлюють протипиловий фільтр, який роблять з різних пористих матеріалів. Нижче засува (заслінки) влаштовують кишеню для збору пилу, що проникає через фільтр. Щоб посилити тягу, витяжний короб встановлюють вище приточного на 1,5 - 2 м. При обладнанні ПРУ в будинках замість витяжного короба слід використовувати димоходи печей і вентиляційні канали, справність яких попередньо перевіряють [8].
Водопостачання в ПРУ (якщо є можливість) забезпечується від водопровідної мережі. Створюється також аварійний запас води у відповідних ємностях (відра з кришками, бачки) з розрахунку 3 - 4 літра на добу на одну людину.
Освітлення обладнується від загальної електромережі, при її відсутності використовують акумулятори, велогенератори, кишенькові і ручні електроліхтарі, свічки.
Опалення здійснюється від загальної опалювальної системи, печей і різних інших теплових приладів, в тому числі й електронагрівальних.
В ПРУ необхідно мати телефон і гучномовець, підключений до міської або місцевої радіотрансляційної мережі.
При місткості в укритті 20 чол. витрата матеріалів становитиме: лісу — 0,9 м2, гвіздків — 0,25 кг, цегли — 600 шт., ґрунту — 10 - 42 м3. Трудомісткість робіт 70 - 90 чол/год. Коефіцієнт захисту такого ПРУ Кзах =
800 - 1000.
Погріб, зроблений з каменю або саману, є майже готовим ПРУ.
При необхідності його перекриття посилюють, потім на перекриття насипають шар ґрунту товщиною 60 - 70 см, встановлюють витяжний короб, вішають біля вхідних дверей завісу зі щільного матеріалу; а для захисту від проникнення зовнішнього γ-
і нейтронного випромінювання через вхідні двері навпроти входу на відстані 1,5 м влаштовують стінку з цегли або саману товщиною 40 - 50 см, висотою, яка дорівнює висоті дверей, а шириною — вдвічі більше ширини дверей, встановлюють тару для відходів.
При місткості укриття 10 чоловік витрата матеріалів становитиме: лісу — 0,03 м2, гвіздків — 0,06 кг, каменю — 2 м3, ґрунту — 8-9 м3. Трудомісткість роботи становить 20-25 чол/год., Кзах =
400-500.
Найважливішим елементом, що забезпечує захисні властивості ПРУ є матеріал, який використовується для їх перекриття, і товщина насипу шару ґрунту або нарощування шару льоду в зимовий час. Коефіцієнти ослаблення ґрунту з проникаючої радіації ядерного вибуху наведені в табл. 3.
Таблиця
3
.
Коефіцієнти ослаблення ґрунту з проникаючої радіації ядерного вибуху
| Вид матеріалу |
Товщина матеріалу, см |
| 40 |
45 |
50 |
60 |
75 |
| Грунт |
20 |
30 |
50 |
100 |
400 |
| Лід |
3 |
4 |
6 |
8 |
15-20 |
Шар половинного ослаблення з проникаючої радіації деяких матеріалів має величину: для води — 23, деревини — 33, ґрунту — 13, цегляної кладки — 14,4, льоду — 26, скла — 16,5, бетону — 10, заліза, броні, сталі — 3,0, свинцю — 2,0, склопластику — 12,0 см.
Найпростіші укриття — щілини (траншеї) — будуються і обладнуються при загрозі воєнних конфліктів повсюдно для тієї частини населення, яка не забезпечена захисними спорудами. Щілини (траншеї) можуть бути відкритими і перекритими. Якщо люди укриваються в простих, відкритих щілинах, то вірогідність їх ураження ударною хвилею, світловим випромінюванням і проникаючою радіацією ядерного вибуху зменшиться в 1,5 - 2 рази порівняно з перебуванням на відкритій місцевості; опромінення людей в результаті радіоактивного зараження місцевості зменшиться в 2 - 3 рази, а після дезактивації заражених щілин — у 20 разів і більше [3].
У перекритій щілині захист людей від світлового випромінювання буде повний, від ударної хвилі збільшиться в 2,5 - 3 рази, а від проникаючої радіації і радіоактивного зараження місцевості при товщині ґрунтового насипу зверху перекриття 60 - 70 см — в 200 - 300 разів. Перекрита щілина захищає людей від безпосереднього потрапляння на шкіру і одяг радіоактивних речовин та біологічних засобів, а також від ураження уламками будівель, споруд, які руйнуються. Але найпростіші укриття не забезпечують захист органів дихання від отруйних речовин і біологічних засобів. Довжина щілини визначається кількістю людей. При розміщенні людей сидячи її довжина визначається з розрахунку 0,5 - 0,6 м на одну людину. В щілинах можна передбачати і місця для лежання з розрахунку 1,5 - 1,8 м на одну людину.
Сховище вводиться в експлуатацію лише після приймання комісією, яка діє згідно з «Інструкцією з приймання і експлуатації сховищ Цивільної оборони».
На кожне сховище складають план, картку прив'язки і схему шляхів евакуації людей зі сховища. На плані сховища вказуються: вентиляційні канали в стінах, повітрозабірні системи, мережі водопроводу, каналізації, опалення і електроосвітлення, місця розташування пристроїв відключення, аварійний вихід, товщина і матеріали стін та перекриття сховища, площа і внутрішня кубатура приміщень, наводиться таблиця гранично допустимого часу перебування людей при постійному (без вентиляції) об'ємі повітря в залежності від заповнення людьми [7].
У картці прив'язки вказуються місцезнаходження сховища і розташовані поблизу характерні орієнтири, що не завалюються, за якими можна швидко відшукати засипане сховище.
На схемі евакуації людей намічаються кілька можливих маршрутів виходу з району розташування сховища за межі міста. Один екземпляр документації зберігається безпосередньо у сховищі, другий — у штабі ЦО.
При періодичному огляді стану сховища (не рідше одного разу в квартал), а також негайно після заповнення людьми воно перевіряється на герметичність. Ступінь герметичності визначається за величиною підпору повітря, а сама перевірка проводиться в такій послідовності: зачиняються всі вхідні двері, ставні і люки, стопоряться клапани надлишкового тиску; закриваються герметичні клапани і заглушки на витяжній системі вентиляції; приточна система повітрозабезпечення включається в роботу в режимі чистої вентиляції; визначається кількість повітря, яке подається у сховище; замірюється підпір повітря в сховище [1].
При вмиканні фільтровентиляційного агрегату про кількість повітря, що подається, можна судити з показів витратоміра.
Підпір повітря замірюється нахиленим манометром типу ТНР (тягонапоромір рідинний); він повинен бути не менше 5 мм вод.ст. при всіх режимах вентиляції сховища.
В залежності від кратності повітрообміну величина підпору повітря повинна відповідати значенням, наведеним у табл. 4.
Таблиця
4
Залежність величини підпору від кратності повітрообміну
| Кратність |
0,5 |
0,6 |
0,8 |
0,7 |
1,2 |
1,4 |
| Потрібний підпір, мм вод.ст. |
5 |
6 |
8 |
12 |
15 |
18 |
Якщо величина підпору виявиться недостатньою, то здійснюється визначення місць витоку повітря за відхиленням полум'я свічки, при цьому перевіряють стан ущільнювальних прокладок герметичних дверей і ставень, а також роботу пристроїв задраювання(клинових затворів); щільність примикання коробок дверей (ставень) до загороджувальних конструкцій і дверного полотна (ущільнювальних прокладок) до коробок дверей (ставень); герметичність місць проходу через загороджувальні конструкції різних введень; герметичність місць з'єднання стель і підлог із зовнішніми стінами, швів між блоками, стиків між елементами конструкції, особливо у входах (тамбурах).
Необхідно систематично перевіряти стан всього обладнання сховища, утримувати його відповідно до технічних вимог і усувати несправності.
Під час перебування людей в сховищі необхідно підтримувати підпір 5-7 мм вод.ст.; при такому протитиску пари отруйних речовин не можуть потрапити всередину сховища.
Температура у сховищі в зимовий час до його заповнення людьми повинна бути не нижче +10 °С і не вище +15. Для цього слід проводити регулярне провітрювання, відкриваючи двері і включаючи для короткочасної роботи фільтровентиляційний агрегат у режимі чистої вентиляції.
Організація обслуговування сховищ покладається на службу сховищ і укриттів ІДО. На кожне сховище виділяється ланка обслуговування у складі семи чоловік. Командир цієї ланки є комендантом сховища. Разом з особовим складом ланки він приймає сховище, бере участь у перевірці ФВА, встановленні телефонного апарата і радіотрансляційної точки, перевіряє герметизацію і обладнання.
Комендант сховища за сигналом оповіщення органів управління ЦО, пов'язаним з використанням захисних споруд, повинен негайно з'явитися в сховище і розставити особовий склад по постах; дати команду постам відключити систему опалення і включити вентиляційну установку в режимі чистої вентиляції; забезпечити прийом і розміщення людей та дотримання правил внутрішнього розпорядку [2].
Ланка обслуговує 3 пости (по 2 чол. на пост). Пост №1 організовується при основному вході. В період заповнення сховища за сигналом оповіщення один постовий, перебуваючи зовні, пропускає людей у сховище і слідкує за порядком; другий постовий, перебуваючи біля внутрішнього входу, рівномірно розподіляє потік людей. З отриманням сигналу або розпорядження про закриття дверей постові зачиняють їх і один залишається чергувати біля дверей, а другий допомагає налагоджувати порядок у сховищі. Пост №2 перевіряє і готує до роботи фільтровентиляційну установку, за розпорядженням коменданта сховища включає і обслуговує її. Пост №3 перед заповненням сховища включає освітлення в усіх приміщеннях, зачиняє ставні аварійних виходів і регулювальні заглушки витяжної вентиляції, перекриває при необхідності запірні пристрої транзитних комунікацій, потім слідкує за розміщенням людей і порядком у сховищі.
За сигналом «Закрити захисні споруди» або при заповненні сховища двері і ставні зачиняються і сховище постачається повітрям у режимі чистої вентиляції.
Люди, перебуваючи в сховищі, зобов'язані мати при собі запас продуктів харчування на 2 доби, а також необхідні особисті речі, документи та індивідуальні засоби захисту (протигази або респіратори). Забороняється приносити з собою легкозаймисті речовини або речовини із сильним запахом та громіздкі речі, приводити домашніх тварин, ходити без потреби по приміщеннях сховища, шуміти, курити і запалювати без потреби гасові лампи, свічки та інші подібні світильники. Люди зобов'язані виконувати всі вимоги коменданта і допомагати йому в підтриманні порядку [7].
Виведення людей зі сховища виконується за вказівкою коменданта і здійснюється особовим складом ланки обслуговування.
Відповідно до вимог «Норм проектування ІТЗ ЦО» усі захисні споруди повинні використовуватися в мирний час для потреб народного господарства й обслуговування населення, що істотно підвищує ефективність капітальних вкладень. Вони можуть використовуватися під приміщення: культурного і санітарно-побутового обслуговування населення (навчальні кабінети, гардероби, душові); виробничі — у тих випадках, якщо технологічні процеси не супроводжуються виділенням шкідливих для людей парів і газів і не вимагають природного освітлення; торгівлі і суспільного харчування; об'єктів спортивного призначення; складів різного призначення; гаражів для автомобілів тощо.
В усіх випадках повинні передбачатися заходи, які забезпечують своєчасне приведення захисних споруд у готовність до прийому тих, хто укривається.
Потреба в захисних спорудах визначається, виходячи з необхідності укриття всіх робітників та службовців за місцем їх роботи і за місцем проживання, усього непрацюючого населення — за місцем проживання, а також забезпечення укриття населення категорійованих міст у місцях можливого скупчення людей при евакуації і захисті формувань ЦО під час ведення рятувальних робіт.
До укриттів належать споруди спеціального (сховища, протирадіаційні укриття, найпростіші укриття) та неспеціального (герметичні приміщення, погреби, щілини тощо) призначення.
До всіх сховищ пред`являються певні вимоги: сховища повинні забезпечувати захист людей від усіх вражаючих факторів; будуватися на ділянках місцевості, які не затоплюються; мати входи і виходи з таким же ступенем захисту, що й основні приміщення, а на випадок обвалу — аварійні виходи; мати вільні підходи, де не повинно бути спалимих матеріалів або матеріалів, які сильно димлять; мати основні приміщення висотою не менше 2,2 м і рівень підлоги, який лежить вище рівня ґрунтових вод не менше ніж на 20 см.
Сховище вводиться в експлуатацію лише після приймання комісією, яка діє згідно з «Інструкцією з приймання і експлуатації сховищ Цивільної оборони».
На кожне сховище на об`єкті складають план, картку прив'язки і схему шляхів евакуації людей зі сховища.
1. Атаманюк В.Г. Гражданская оборона. – М.: Высш. шк., 1986.
2. Безопасность жизнедеятельности. Учебник / Под ред. Э.А. Арустамова. – М., 2000.
3. Безпека життєдіяльності. Підручник / За ред. Я. Бедрія. – Львів: Афіша, 1998.
4. Желібо Е.П. Безпека життєдіяльності.: Навчальний посібник. – К.: Каравела, 2001. – 320 с.
5. Лапін В.М. Безпека життєдіяльності людини: Навчальний посібник. - Л., 2000. - 186 с.
6. Пістун І.П. та інші. Безпека життєдіяльності. - Львів, 1995.
7. Шоботов В.М. Цивільна оборона: Навч.посібник. – К., 2004. – 439 с.
8. Шоботов В.М. Устойчивость работы промышленных объектов при чрезвычайных ситуациях. – ПГТУ, 1999.
|