| СОДЕРЖАНИЕ
Введение
1. Характеристика предприятия.
1.1 Состав оборудования теплопункта
2. Расчет электрических нагрузок оборудования.
Общие данные.
Основные параметры для расчета электрооборудования.
Расчет электрических нагрузок
3. Электроосвещения
Общие данные
Расчет электроосвещения
4. Защитное заземление
Общие данные
Расчет защитного заземления
Автоматическое управление электрооборудованием
Общая часть
Описание схемы управления насосами
Описание схемы регулирования
Описание схемы аварийной сигнализации
6. Экономическая часть.
Ценообразование и себестоимость в строительно-монтажном производстве
7. Электробезопасность
Список литературы
Введение
В настоящее время нельзя представить себе жизнь и деятельность современного человека без применения электричества. Электричество уже давно и прочно вошло во все отрасли народного хозяйства и в быт людей. Основное достоинство электрической энергии - относительная простота производства, передачи, дробления и преобразования.
В системе электроснабжения объектов можно выделить три вида электроустановок:
- по производству электроэнергии - электрические станции;
- по передаче, преобразованию и распределению электроэнергии – электрические
сети и подстанции;
- по потреблению электроэнергии в производственных и бытовых нуждах -приемники электроэнергии.
Электрической станцией называется предприятие, на котором вырабатывается электрическая энергия. На этих станциях различные виды энергии (энергия топлива, падающей воды, атомная и др.) с помощью электрических машин, называемых генераторами, преобразуется в электрическую энергию.
В зависимости от используемого вида первичной энергии все существующие электрические станции разделяются на следующие основные группы: тепловые, гидравлические, атомные, ветряные и др.
Приемником электроэнергии (электроприемников, токоприемником) называется электрическая часть производственной установки, получающая электроэнергию от источника и преобразующая ее в механическую, тепловую, химическую, световую энергию, в энергию электростатического и электромагнитного поля.
По технологическому назначению приемники электроэнергии классифицируются в зависимости от вида энергии, в который данный приемник преобразует электрическую энергию: электродвигатели приводов машин и механизмов; электротермические установки; электрохимические установки; установки электроосвещения; установки электростатического и электромагнитного поля, электрофильтры; устройства искровой обработки, устройства контроля и испытание изделий (рентгеновские аппараты, установки ультразвука и т.д.). Электроприемники характеризуются номинальными параметрами: напряжением, током, мощностью и др.
Совокупность электроприемников производственных установок цеха, корпуса, предприятия, присоединенных с помощью электрических сетей к общему пункту электропитания, называется электропотребителем.
Совокупность электрических станций, линий электропередачи, подстанций, тепловых сетей и приемников, объединенных общим и непрерывным процессом выработки, преобразования, распределения тепловой и электрической энергии, называется энергетической системой.
Единая энергетическая система (ЕЭС) объединяет энергетические системы отдельных районов, соединяя их линиями электропередачи (ЛЭП).
Часть энергетической системы, состоящая из генераторов, распределительных устройств, повышающих и понижающих подстанций, линий электрической сети и приемников электроэнергии, называют электроэнергетической системой.
Электрической сетью называется совокупность электроустановок для передачи и распределения электроэнергии, состоящая из подстанций и распределительных устройств, соединенных линиями электропередачи, и работающая на определенной территории.
Электрическая сеть объекта электроснабжения, называемая системой электроснабжения объекта, является продолжением электрической системы. Система электроснабжения объекта объединяет понижающие и преобразовательные подстанции, распределительные пункты, Электроприемники и ЛЭП.
Прием, преобразование и распределение электроэнергии происходят на подстанции - электроустановке, состоящей из трансформаторов или иных преобразователей электроэнергии, распределительных устройств, устройств управления, защиты, измерения и вспомогательных устройств.
Распределение поступающей электроэнергии без ее преобразования или трансформации выполняется на распределительных подстанциях (РП).
Электрические сети подразделяют по следующим признакам:
1. Напряжение сети. Сети могут быть напряжением до 1кВ - низковольтными, или низкого напряжения (НН), и выше 1кВ –
2. Высоковольтными, или высокого напряжения (ВН).
3. Род тока. Сети могут быть постоянного и переменного тока. Электрические сети выполняются в основном по системе трехфазного переменного тока, что является наиболее целесообразным, поскольку при этом может производится трансформация электроэнергии. При большом числе однофазных приемников от трехфазных сетей осуществляются однофазные ответвления. Принятая частота переменного тока в ЕЭС России равна 50 Гц.
4. Назначение. По характеру потребителей и от назначения территории, на которой они находятся, различают: сети в городах, сети промышленных предприятий, сети электрического транспорта, сети в сельской местности. Кроме того, имеются районные сети, предназначенные для соединения крупных электрических станций и подстанций на напряжении выше 35кВ; сети межсистемных связей, предназначенные для соединения крупных электроэнергетических систем на напряжении 330, 500 и 750кВ. Кроме того, применяют понятия: питающие и распределительные сети.
1. Характеристика предприятия
Настоящим проектом предусматривается выполнение внутреннего электроснабжения теплопункта. По степени надежности электроснабжения электроприемники теплопункта относятся ко второй категории надежности.
Проект предусматривает:
-устройство двух кабельных вводов 0,4кВ,
-установку распределительного щита ПР-11-8804 22 У 3 380/220В,
-установку щита освещения (ЩО) на 8 групп,
-прокладку кобелей к электроприемникам,
-монтаж розеточной сети для электроснабжения противонакипных аппаратов,
-монтаж сетевых насосов и насосов холодного водоснабжения,
-монтаж частотных преобразователей,
-установку понижающего трансформатора ЯТП-0,25 220/12В,
-монтаж электроустановочных изделий, прочего оборудования,
-монтаж сети освещения,
-выполнение заземления металлических корпусов оборудования и вводно,
-распределительного устройства (ВРУ).
Электроснабжение осуществляется по двум кабельным линиям от РУ-0,4 кВ ТП-1, кабелем ААБлу-1-4x
95. Ввод кабелей в теплопункт выполнен под фундаментом и через пол в металлических трубах, участки кабелей от пола до ВРУ проложены в кабель-каналах.
На вводе предусмотрена установка ВРУ-3-12. Для распределения электроэнергии и защиты электропроводки от токов перегрузки и коротких замыканий проектом предусмотрено применение силового шкафа ЩР типа ПР-11-8804 22УЗ 380/220В, с автоматами на отходящих линиях. Учет электроэнергии осуществляется электронными счетчиками типа ЦЭ 6803 В, включенным через трансформаторами тока ТК-20-150/5.В качестве пусковых устройств, приняты пускатели ПМЛ 4220, ПМЛ 1220. Распределительная сеть выполнена кабелем АВВГ-1-4x
25 -для сетевых насосов 1/1 и 1/2, кабелем АВВГ-1-4х10 - для электроснабжения кран-балки, кабелем АВВГ-1-4х
4 -на щит освещения, кабелем АВВГ-1-4х
2,5 -для насосов холодного водоснабжения, противонакипных аппаратов, АВВГ-1-3x
2,5 -для шкафа автоматизации, ВВГ-1-3x
2,5 -для дежурного освещения. Монтаж кабелей для сетевых насосов, насосов холодного водоснабжения, розеточной сети противонакипных аппаратов от пусковой аппаратуры до силовых электроприемников выполнена в стальных водогазопроводных трубах скрыто в подливке пола. Для монтажа ввода проводки в электронасосы использованы гибкие ввода К 1087-для электродвигателей 1/1 и 1/2, гибкие ввода К 1081- для электродвигателей 2/1 и 2/2.
Проектом предусмотрено рабочее и дежурное электроосвещение. Групповые и питающие сети электроосвещения выполняются кабелем АВВГ, прокладываемым по стенам и перекрытиям, на скобах. Светильники дежурного освещения на плане помечены знаком «Д». Для распределения электроэнергии в сети освещения использован шкаф освещения ШО типа ОЩВ-6А УХЛ 4 на 8 отходящих групп, защищенных предохранителями на 25А. Групповая сеть выполнена кабелем ВВГ-Зх2,5, проложенным открыто по стальной полосе. Светильники применены: для освещения помещения теплопункта, санузла - типа NX 6 200В - настенно-потолочные с лампами накаливания ЛОН 100, для освещения входных дверей теплопункта - NX 6 - 200А - настенно - потолочные с лампами накаливания, с защитной решеткой, для бытовки - типа R - 63 W – встраиваемые в подвесные потолки светильники с лампой накаливания 3 К- 60.
Электропроводка сети освещения для бытовки выполнена за подвесным потолком в гофрированной ПВХ трубе. Проводка освещения выполнена трехжильным кабелем ВВГпг расчетного сечения с медными жилами в оболочке из пластика пониженной горючести. Металлические корпуса светильников заземляются посредством дополнительного (третьего) проводника.
Проектом предусмотрено выполнение розеточной сети - кабелем ВВГ - 1 -3 х
2,5 - монтаж одной розетки РА 16 - 005 на 220 В с заземляющим контактом в комнате обслуживающего персонала, а также двух розеток РШ - ц - 20 - о - IP 43 в брызгозащищенном исполнении на напряжение 12 В. От щитка освещения предусмотрен монтаж понижающего трансформатора ЯПТ - 0,25 - 220/12 В, от него подключаются две розетки на 12 В.
В теплопункте предусмотрено выполнение заземляющего устройства. Система заземления TN - С - S. Все металлические части электрооборудования, нормально не находящиеся под напряжением, подлежат заземлению.
Все металлические нетоковедущие части электрооборудования, стальные трубы электропроводки присоединены к существующему магистральному контуру заземления с помощью полосовой стали для создания непрерывной электрической связи. Контур заземления внутри здания теплопункта выполнено стальной полосой сечением 40 х
4 и связаны с наружным контуром в двух местах. Выполнена система уравнивания потенциалов, соединенная на главной шине в ВРУ защитный проводник питающей линии, заземляющий проводник от контура заземления, металлические трубы коммуникаций, входящих в здание.
Вокруг теплопункта выполняется заглубленный наружный контур заземления. Контур выполняется из вертикальных заземлителей, угловой стали50х50><4, которые соединены между собой, прокладываемой в земляной траншее, полосой из Кругловой стали диаметром 12 мм, в непрерывный контур. Выводы контура заземления в здание теплопункта выполнена полосовой сталью 40x4, в двух местах.
1.1 Состав оборудования теплопункта
| Наименование
|
Тип оборудования
|
Уровень напряжения
|
Мощность, кВт
|
| ВРУ
|
ВРУ-3-12
|
380 В
|
70 кВт
|
| ЩО
|
Ощв-6 аухл4
|
220 В
|
2.2 кВт
|
| ЩР
|
ПР-11
|
380 В
|
57.8 кВт
|
| ЩА
|
|
220 В
|
1 кВт
|
| А1,А2
|
Преобразователь частоты пч-02-ттпт
|
380 В
|
12.5 кВА
|
| А3,А4
|
Преобразователь частоты пч-02-ттпт
|
380 В
|
50кВА
|
| 1/1
|
Насос сетевой подмес-откачка
|
380 В
|
22 кВт
|
| ½
|
Насос сетевой подмес-откачка
|
380 В
|
22 кВт
|
| 2/1
|
Насос холодного водоснабжения
|
380 В
|
2.2 кВт
|
| 2/2
|
Насос холодного водоснабжения
|
380 В
|
2.2 кВт
|
| 3/1
|
Противонакипный аппарат УЛА-2 М
|
220 В
|
25Вт
|
| 3/2
|
Противонакипный аппарат УЛА-2 М
|
220 В
|
25Вт
|
| 3/3
|
Противонакипный аппарат УЛА-2 М
|
220 В
|
25Вт
|
| ¾
|
Противонакипный аппарат УЛА-2 М
|
220 В
|
25Вт
|
| 3/5
|
Противонакипный аппарат УЛА-2 М
|
220 В
|
25Вт
|
| 3/6
|
Противонакипный аппарат УЛА-2 М
|
220 В
|
25Вт
|
| 5/1
|
Кран-балка
|
380 В
|
1.98кВт
|
| 9/1
|
Расходомерный
узел
|
220 В
|
4кВт
|
| шу-1/1 шу-1/2 шу-2/1
шу-2/2
|
Шкаф управления
насосами 1/1, 1/2,
2/1,2/2
|
220 В
|
|
2. Расчет электрических нагрузок оборудования
2.1 Общие сведения
Расчет электрических нагрузок необходим при выборе количества и мощности трансформаторов на трансформаторных подстанциях. Проверка токоведущих частей по нагреву и потери напряжения для расчета колебаний напряжений, для правильного выбора защитных устройств и компенсирующих устройств. Для вычисления расчетных нагрузок в узлах электрической сети до 1000 В. Необходимо вычислить следующие величины:
а) суммарные, номинальные активные и реактивные мощности силовых электроприемников по отдельным группам,
б) групповые коэффициенты использования и суммарные средние силовые нагрузки (активные и реактивные) за наиболее загруженную смену,
в) эффективное число электроприемников nэ, коэффициент максимума Km, максимальную активную мощность Рм, реактивную Qn и полную Sn мощности по отдельным группам,
г) расчетную мощность осветительных нагрузок,
д) максимальные значения Рм, реактивной Qn и полной Sn мощности по всей подстанции, где n - число электроприемников.
Групповая номинальная реактивная мощность Qn - сумма номинальных реактивных мощностей, группы электроприемников, приведенных к ПВ=1.
n
Qn = å qn (2.1)
1
При определении электрических нагрузок групп электрических приемников расчетной величиной является средняя мощность наиболее нагруженной смены.
Средняя активная или реактивная мощность за наиболее нагруженную смену определяется по расходу электрической энергии. Согласовано ПУЭ за расчетную активную мощность принята мощность получаемого минимума, который является расчетной величиной для выбора всех элементов электроснабжения по нагреву проводников, трансформаторов и аппаратуры.
Расчетная активная мощность Рр соответствует такой длительной неизменной нагрузки током 1р, которая эквивалентна ожидаемой изменяемой нагрузки по наиболее тяжелому тепловому действию, максимальной температуре или тепловому износу кабеля, либо трансформатора.
2.2 Основные параметры для расчета нагрузок электрооборудования
Основной параметр для расчета нагрузок при проектировании новых установок - коэффициент использования, величина которого зависит от режима эксплуатации всей установки. Коэффициентом использования за наиболее загруженную смену одного электроприемника Кили группы электрических приемников - называется отношении средней активной мощности одного электроприемника (или группы) к номинальной Ки
=Рср
/Рном
(2.2)
n n
Ки
= å и Рном
/ å (2.3)
1 1
где n - число подгрупп электроприемников, входящих в одну группу,
Рср
- средняя мощность подгруппы за наиболее нагруженную смену в кВт.
Коэффициент максимума активной мощности (Км
) - это отношение расчетного максимума активной мощности к ее среднему значению за наиболее за груженную смену: Км
= Рм
/ Рср
(2.4)
Коэффициентом спроса по активной мощности (Кс
) называется отношение расчетной активной мощности группы электроприемников к номинальной мощности этой группы: Кс
= Рм
/ Рном
= Ки
Км
(2.5)
Расчет электрических нагрузок методом коэффициента использования и максимума.
Указание по проектированию электроснабжения промышленных предприятий рекомендует определение нагрузок для расчета цеховых цепей и выборе трансформатора методом коэффициента использования и максимума. Расчетные коэффициенты Ки и Км получены в результате упорядочения диаграмм нагрузки по данным обследования ряда отраслей промышленности. Расчетные нагрузки (получасовые максимумы активной нагрузки) на всех ступенях распределительных и питающих сетей, включая трансформаторы и преобразователи, определяются по формуле:
Рм
= Км
х
Рср
= Км
К и Рном
(2. 6)
где Рср
- средняя мощность электроприемников за наиболее загруженную смену,
Рном
- суммарная номинальная активная мощность рабочих приемников в кВт,
Ки
- групповой коэффициент использования активной мощности. Км
- определяется по таблице, в зависимости от величины группового коэффициента использования и эффективного числа группы электроприемников.
Эффективным числом группы электроприемников пэ называют число, однородное по режиму работы электроприемников одинаковой мощности, которая обслуживает ту же величину расчетного максимума нагрузки, что и группы различные по мощности и режиму работы электроприемников
n
nэ
= 2å Рном
/ Рном.макс
(2.7)
1
В группе из пяти и более электроприемников эффективное число допускается считать равным тактическому значению m, при величине отношения
m = Рном. макс
/ Рном. мин
< 3
где Рном.макс
и Рном.мин
- номинальные активные мощности наибольшего и наименьшего электроприемников в группе.
В с группе m>3 и Ки ³ 0.2 nэ рекомендуется определять по формуле
n
nэ
=2åРном
/Рном.макс
(2.8)
1
где åРном
- суммарная номинальная мощность всех электроприемников в группе кВт, Рном. макс
- наибольший по мощности электроприемник данной группы кВт
2.3 Расчет электрических нагрузок
1. С группируем электроприемники по коэффициенту использования, произведем расчет номинальной и средней мощности. Коэффициент использования Ки и коэффициент мощности cos < p возьмем из таблицы согласно типа производства.
1.1 Найдем Рном
и Рср.для
электроприемника с переменным графиком нагрузки.
Кран - балка
Рном
5/1 - Рпасп л
ÖПВ (2.9)
где Рпасп
- активная паспортная мощность
ПВ - паспортная продолжительность включения
Рном
5/1 - номинальная активная мощность электроприемника
Рном 5/1= 1.98л Ö0.25= 0.99 [кВт]
Рном 5/1= 0.99 [кВт]
Рср= Ки (п Рном 5/1) (2.10)
Рср - средняя активная мощность кран - балки
Ки - паспортный коэффициент использования
Рср5/1= 0.2 (1-0.99)- 0.198 [кВт]
Рср5/1= 0.198 [кВт]
Qcp5/l=Pcp5/l-tg9 (2.11)
Qcp5/1= 0.198-1.07= 0.22[квар]
Qcp5/l=0.22[KBap]
1.2. С постоянным графиком нагрузки. Насос сетевой подмес - откачка рабочий Рном1/1=nРпасп (2.12)
где n - количество потребителей
Рном1/1= 1х
22= 22 [кВт]
Рном1/1= 22 [кВт]
Рср1/1=Ких
Рном1/1 (2.13)
Рср1/1= 0.7х
22= 15.4[кВт]
Рср1/1= 15.4[кВт]
Qcpl/1=Pcpl/1tg j (2.14)
Qcpl/1= 15.4х
0.75= 11.55[квар]
Qcpl/l=11.55[квp]
Насос сетевой подмес - откачка резервный
Рном1/2= nх
Рпасп
Рном1/2= 1х
22= 22 [кВт]
Рном1/2= 22 [кВт]
Рср1/2=Ких
Рном1/1
Рср1/2= 0.7х
22= 15.4[кВт]
Рср1/2= 15.4 [кВт]
Qcpl/2=Pcpl/lх
tg j
Qcpl/2= 15.4х
0.75= 11.55[квар]
Qcpl/2=11.55[квap]
Насос холодного водоснабжения рабочий
Рном2/1= nх
Рпасп
Рном2/1= 1х
2.2=2.2 [кВт]
Рном2/1= 2.2 [кВт]
Рср2/1= Ких
Рном2/1
Рср2/1= 0.7-2.2= 1.54 [кВт]
Рср2/1=1.54[кВт]
Qcp2/l=Pcp2/lх
tg j
Qcp2/1= 1.54х
0.75= 1.155[квар]
Qcp2/1= 1.155[квар]
Насос холодного водоснабжения резервный
Рном2/2= nх
Рпасп Рном2/2= 1х
2.2=2.2
Рном2/2= 2.2 [кВт] Рср2/2= КиРном2/2
Рср2/2= 0.7-2.2= 1.54[кВт]
Рср2/2=1.54[кВт]
Qcp2/2= Pcp2/2х
tg j Qcp2/2= 1.54-0.75= 1.155[квар] Qcp2/2= 1.155[квар]
Полученные данные занесем в таблицу № 1.
Таблица №1.
| Оборудование
|
Активная сменная мощность (кВт)
|
Реактивная сменная мощность (квар)
|
| Насос сетевой подмес – откачка рабочий
|
15.4
|
11.55
|
| Насос сетевой подмес – откачка рабочий
|
15.4
|
11.55
|
| Насос холодного водоснабжения рабочий
|
1.54
|
1.155
|
| Насос холодного водоснабжения резервный
|
1.54
|
1.155
|
| Кран - балка
|
0.198
|
0.22
|
| И того:
|
34.07
|
25.63
|
Данные для электроприемников с переменным и постоянным графиком нагрузки.
1.3 Итоговые данные по электроприемникам.
n
åРном= Рном 1/1+1/2+2/1+2/2+ Рном 5/1
1
n
å = 22+22+2.2+2.2+0.99= 49.39 [кВт]
1
n
åРср= Рср 1/1+1/2+2/1+2/2+ Рср5/1
1
n
å2= 15.4+15.4+1.54+1.54+0.198= 34.07[кВт]
1
n
å Qcp = Qcpl/l+l/2+2/l+2/2+Qcp5/l
1
n
å Qcp = 11.55+11.55+1.155+1.155+0.22= 25.63[квар]
1
Полученные данные занесем в таблицу№2.
| Оборудование
|
Кол-во
|
Установочная Р при ПВ = 100%
|
Коэффициент использования Ки
|
Тригонометрическая функция cosj tg<P
|
| |
|
1-го эл.пр
|
Общая рабочая ИРном
|
|
|
| Насос сетевой подмес -откачка рабочий
|
1
|
22
|
22
|
0.7
|
0.8/0.75
|
| Насос сетевой
подмес -
откачка
рабочий
|
1
|
22
|
22
|
0.7
|
0.8 /0.75
|
| Насос
холодного
водоснабжения
рабочий
|
1
|
2.2
|
2.2
|
0.7
|
0,8 /0.75
|
| Насос
холодного
водоснабжения
рабочий
|
1
|
2.2
|
2.2
|
0.7
|
0.8 /0.75
|
| Кран – балка ПВ- 25
|
1
|
1.98
|
0.99
|
0.2
|
0.7 /1.07
|
| И того:
|
5
________________________________
|
50.38
|
49.39
|
3
|
3.9 /4.07
|
2. Определим максимальные мощности.
n
Рmах= Кmax х
å Рср (2.15)
1
Рmax= 1.17x
34.07= 39.87 [кВт]
Рmax= 39.8 7 [кВт]
n
Qmax=åQcp (2.16)
1
Qmax= 25.63 [квар]
3. Определим полную максимальную мощность - Smax и Smax= Ö Ртах2
+ Imax2
(2.17)
Smax= Ö 39.872
+ 25.632
= Ö 1589.7 + 656.9= 47.40[кВА]
Smax= 47.40[кВА]
Imax= SmaxAÖ3.04 (2.18)
Imax= 47.40ЛÖ3.04= 47.40Ö0.7= 68(A)
Imax= 68(A)
4. Выбор сечения проводов и аппаратов защиты.
4.1. Находим номинальные токи. 1н= (Рнх
п)/(Ö3х
Uнх
соsj) (2.19)
1н1/1= (22х
1)/(Ö3х
0.4х
0.8)= 40[А]
1н1/2= (22х
1)/(Ö3х
0.4х
0.8)= 40[А]
1н2/1= (2.2х
l)/(Ö3х
0.4х
0.8)= 4[А]
1н2/2= (2.2х
1 )/(Ö3х
0.4х
0.8)= 4[А]
1н5/1= (1.98х
1)/(Ö3х
0.4х
0.7)= 4.1 [А]
4.2 Находим максимальные токи Imax=1.5х
Iн (2.20)
Imaxl/1= 1.5х
40= 60[А]
Imaxl/2= 1.5х
40= 60[А]
Imax2/1= 1.5х
4= 6[А]
Imax2/2=1.5х
4=6[A]
Imax5/1= 1.5х
4.1= 6.15ГА1
Расчет аппаратов зашиты 1ап.з= Imax/2.5 (2.21)
1ап.з 1/1= 60/2.5= 24[А]
1ап.з 1/2= 60/2.5= 24 [А]
1ап.з 2/1= 6/2.5= 2.4 [А]
1ап.з 2/2= 6/2.5= 2.4 [А]
1ап.з 5/1=6.15/2.5=2.46[А]
Находим сечение проводов.
1н1/1=40[А]
S1/1= 25мм2
1н 1/2= 40 [A]
S1/2=2 5 мм2
1н2/1=4[А]
S2/1=2.5mm2
1н2/2= 4 [A]
S2/2=2.5mm2
Ih5/1=4.1[A]
S5/1=10mm2
3.1 Общие данные
В соответствии со СНиП II 4 - 79 для освещения помещений, как правило, следует предусматривать газоразрядные лампы низкого и высокого давления (люминесцентные, ДРЛ, металлогенные, натриевые, ксеноновые). В случае невозможности или технико-экономической нецелесообразности применения газоразрядных источников света допускается использование ламп накаливания.
Одним из наиболее простых способов определения мощности ламп, необходимых для равномерного освещения какого-либо помещения, является расчет по методу удельной мощности. Удельной мощностью называется отношение установленной мощности ламп к величине освещаемой площади (Вт/м).
Сущность расчета освещения по методу удельной мощности заключается в том, что в зависимости от типа светильника и места его установки, высоты подвеса его над рабочей поверхностью, освещенности на горизонтальной поверхности Е и площади помещения 5 определяется значение удельной мощности w.
Если действительный коэффициент запаса отличается от указанного в табл., допускается пропорциональный пересчет значений удельной мощности. Удельную мощность (Вт/м2
) для ламп накаливания конструктивно-светотехнических схем светильников можно принимать в пределах для V, VI групп — в пределах Е – Е где Е—нормируемая освещенность для проектируемой работы.
Большие значения удельной мощности принимаются для помещений с меньшей площадью освещения. Задавшись числом светильников (с лампами накаливания и лампами ДРЛ), определяют мощность (Вт) одной лампы.
Если расчетная мощность лампы не равна стандартной мощности, то выбирается ближайшая по мощности большая стандартная лампа.
При люминесцентных лампах предварительно определяется число рядов светильников n, затем по соответствующей таблице находится значение удельной мощности w. Далее определяем число светильников в ряду.
N= wS / npx (3.1)
где p—мощность одной лампы, Вт;
х—количество ламп в светильнике.
Расстояние от стены до ближайшего светильника I=(0,25—0,3) L, когда работа проводится непосредственно у стены, и I= (0,4—0,5) L , когда у стены работа не проводится.
Относительное расстояние между светильниками с лампами накаливания для I—IV конструктивно-светотехнических схем светильников принимается L/h= 1,2-1,7. Выбор нормируемой освещенности осуществляется по таблице в зависимости от размера объекта различения, контраста объекта с фоном и коэффициента отражения фона (рабочей поверхности). Фон считается светлым при коэффициенте отражения поверхности более 0,4 (побеленные потолки, стены, чистый бетонный и светлый деревянный потолок); средним—при коэффициенте отражения поверхности от 0,2до 0.4 (бетонный потолок в грязных помещениях; деревянный потолок; бетонные стены с окнами; стены, оклеенные светлыми обоями); темным — при коэффициенте отражения поверхности менее 0,2 (стены и потолки в помещениях с большим количеством.
3.2 Расчет освещения.
1. Бойлерная.
А= 8.6м, В= 9м, S=77.4mх
Н=4.6м, Нр=4м, Е=50Лк
1.1 Находим удельную мощность
w= Е/3= 50/3= 16.6 [Вт/м]2
1.2 Принимаем к установке 13 светильников. Находим мощность одной лампы.
P=wS/N= 16.6 х
77.4/13=98.8 [Вт]
Принимаем к установке стандартные лампы накаливания мощностью по 100Вт
2. Бытовое помещение.
А=1.7, В= 1,95, S= 3.3мх
Н= Зм, Нр= 2,5м, Е= 50Лк
w=Е/3= 50/3= 16.6 [Вт/м|
Р= wS/N= 16.6-3.3/2= 27.39[Вт]
Принимаем к установке стандартные лампы накаливания мощностью по 40 Вт.
3. Сан.узел.
S=2.6 м2
, Н= 2.7м, Нр= 2,5м, Е= 50Лк
w=Е/3=30/3=10[Вт/м2
]
P=wS/N= 10х
2.6/1= 26 [Вт]
4. Защитное заземление
4.1 Общие данные
Защитное заземление - преднамеренное электрическое соединение с землей или ее эквивалентом металлических нетокопроводящих частей электроустановок, которые могут оказаться под напряжением.
Защитное заземление применяется в сетях напряжением до 1000 В переменного тока—трехфазные трехпроводные с изолированной нейтралью; однофазные двухпроводные, изолированные от земли; двухпроводные сети постоянного тока с изолированной средней точкой обмоток источника тока; в сетях выше 1000 В переменного и постоянного тока с любым режимом нейтрали.
В зависимости от места размещения заземлителей относительно заземляемого оборудования различают два типа заземляющих устройств: выносное и контурное.
При выносном заземляющем устройстве заземлитель вынесен за пределы площадки, на которой размещено заземляемое оборудование, или 'сосредоточен на некоторой части этой площадки.
При контурном заземляющем устройстве электроды заземлителя размещают по контуру (периметру) площадки, на которой находится заземляемое оборудование, а также внутри этой площадки.
В открытых электроустановках корпуса присоединяют непосредственно к заземлителю проводами. В зданиях прокладывается магистраль заземления, к которой присоединяют заземляющие провода. Магистраль заземления соединяют с заземлителем не менее чем в двух местах.
В качестве заземлителей в первую очередь следует использовать естественные заземлители в виде проложенных под землей металлических коммуникаций (за исключением трубопроводов для горючих и взрывчатых веществ, труб теплотрасс), металлических конструкций зданий, соединенных с землей, свинцовых оболочек кабелей, обсадных труб артезианских колодцев, скважин, шурфов и т.д.
В качестве естественных заземлителей подстанций и распределительных устройств рекомендуется использовать заземлители опор отходящих воздушных линий электропередачи, соединенные с заземляющим устройством подстанции или распределительным устройством с помощью грозозащитных тросов линий. Если сопротивление естественных заземлителей требуемому сопротивлению растеканию тока удовлетворяет, то устройство искусственных заземлителей не требуется.
Когда естественные заземлители отсутствуют или использование их не дает нужных результатов, применяют искусственные заземлители: стержни из угловой стали 1 размером 50x
50, 60x
60, 75X
75 с толщиной стенки не менее 4 мм, длиной 2,5 - 3 м; стальные трубы диаметром 50 - 60 мм, длиной 2,5 - 3 м с толщиной стенки не менее 3,5 мм; прутковая сталь диаметром не менее 10 мм, длиной до 10 м и более.
Заземлители забивают в ряд или по контуру на такую глубину, при которой от верхнего конца заземлителя до поверхности земли остается 0,5 - 0,8 м. Расстояние между вертикальными заземлителями должно быть не менее 2,5 - 3 м.
Для соединения вертикальных заземлителей между собой применяют стальные полосы толщиной не менее мм и сечением не менее 48 мм или стальной провод диаметром не менее 6 мм. Полосы (горизонтальные заземлители) соединяют с вертикальными заземлителями сваркой.
Магистрали заземления внутри зданий с электроустановками напряжением до 1000 В выполняют стальной полосой сечением не менее 100 мм или сталью круглого сечения той же проводимости. Ответвления от магистрали к электроустановкам выполняют стальной полосой сечением не менее 24 мм или круглой сталью диаметром не менее 5 мм.
Значения расчетных токов замыкания на землю принимаются по данным энергосистемы, либо путем расчетов.
Расчет заземления производится следующим образом. 1. В соответствии с ПУЭ устанавливается необходимое сопротивление заземления R3
1. Определяют путем замера, расчетом или на основе данных по работающим аналогичным заземлительным устройствам возможное сопротивление растеканию естественных заземлителей Re.
2. Если Re < Кз, то устройство искусственного заземления не требуется. Если Re > R3, то необходимо устройство искусственного заземления. Сопротивление (Ом) растекания искусственного заземления
Rh= R3Re/Re - R34. (4.1)
Далее расчет ведется по Rh. Определяют удельное сопротивление грунта р. При производстве расчетов эти значения должны умножаться на коэффициент сезонности, зависящий от климатический зон и вида заземлителя
Расчетное удельное сопротивление грунта для стержневых заземлителей (вертикальных заземлителей)
Ррасч
.в
=Rсртабл
; (4.2)
для протяженного заземлителя (горизонтальных полос)
Ррасч
.в
=R'сртабл
(4.3)
5. Определяют сопротивление растеканию одного вертикального заземлителя:
для стержневого круглого сечения (трубчатый или уголковый) в земле
Дв=0.366 ррасч. в
/ l х
(lg 2l/d + 1/2 lg х
4t + l/4t - l) (4.4)
при этом l > d, t 0 > 0,5 м;
для уголка с шириной полки b d= 0.95b.
Все размеры даны в метрах, а удельное сопротивление грунта в Омх
м.
6. Установив характер расположения заземлителей (в ряд или контуром), определяют число вертикальных заземлителей.
nв=Rв
/hв
х
Ru
(4.5)
где hв
— коэффициент использования вертикальных заземлителей, зависящий от количества заземлителей и расстояния между ними. Количество вертикальных заземлителей для определения n|в можно принять равным Rв
/Ru
7. При устройстве простых заземлителей в виде короткого ряда, вертикальных стержней расчет на этом можно закончить и не определять проводимость соединяющей полосы, поскольку длинна ее относительно не велика (в этом случае фактически величина сопротивления заземляющего устройства будет несколько завышена).
При устройстве заземлителей по контуру из ряда вертикальных заземлителей целесообразной учитывать и сопротивление растеканию полос (горизонтальный заземлитель). Для этого на площади установки заземления намечают, как будут размешены вертикальные заземлители пв, и определяют длину соединительной полосы (м) lг= 1.05 nва, где - а расстояние между вертикальными (обычно отношение расстояние между вертикальными заземлителями к их длине принимают равным аl= 1; 2; 3).
8. Определяют сопротивление растеканию горизонтального заземлителя. Для стержневого круглого сечения.
Rr= 0.366 ррасч
.г/l х
lg х l2
/dt (4.6)
Здесь l>d; l>4t Для полосы шириной b, d=0,5b. Действительное сопротивление (Ом) растекания горизонтального заземлителя с учетом коэффициента использования.
R'r= Rr/hг (4.7)
где hг —коэффициент использования горизонтального заземлителя.
9. Уточняется сопротивление растеканию заземлителей с учетом сопротивления горизонтального заземлителя.
R'r= R'r/hг
R'в= R'r х
Ru/ R'r - Ru (4.8)
n'в = Rв/hвR'в (4.9)
10. Определяют уточненное количество вертикальных заземлителей. Здесь n'в округляется в сторону увеличения.
4.2 Расчет защитного заземления
1. Определим удельное сопротивление грунта с учетом коэффициента сезонности по таблице, для вертикальных заземлителей Rрасч.в=RсRтабл.==1,45х
40 ==58 Омх
м, для горизонтального заземлителя Rрасч.г = R 'табл 3.5х
40 =140 Омх
м.
2. Сопротивление растеканию вертикального заземлителя
Rрасч.в/l (lg х
2х
l/d +1/2) = 0.366 х
58/2.5(lgх
2х
2.5/0.95х
0.5+1)2 lg х
4х
1.95+2.5/4- 1.95-2.5)= 18.4
Здесь d=0,95 b;
b—ширина полки уголка t' = to+0,51 =0,7 + 0,5х
2,5 =1,95 м.
3. Количество вертикальных заземлителей nв=Rв/hвRз = 18.4/0.7х
4=6.6
где Rз—необходимое сопротивление заземления по норме, Ом;
h — коэффициент использования вертикальных заземлителей по таблице равный 0,7. Считаем, что число труб 18,4/4»4.
Принимаем к установке семь уголков.
4. Длина горизонтального заземлителя (полосы) lг
=1,05nв а = 1,05х
7х
2,5=18,4 м. Принимаем /г
= 19 м.
5. Сопротивление растеканию горизонтального заземлителя
Rr
= 0,366 х
Rpacч.r/l х
lgх
l2
/dt = 0,366х
140/19х
lgl92
/0,5х
0,04х
0,7 = 11,8 Ом.
Здесь d = 0,5 b = 0,5 х
0,04.6.
6. Действительное сопротивление растекания горизонтального заземлителя с учетом коэффициента использования.
R' r = Rr/hr = 11,8/0,67 = 17,8 Ом
hв = 0,67
7. Сопротивление растеканию заземлителей с учетом сопротивления горизонтального заземлителя.
R'B
= R' r х
R3
/ R'r - Rз = 17,8х
4/17,8 - 4 = 5,2 Ом;
8. . Уточненное количество вертикальных заземлителей
n'B
= Rr/hr х
R'B
= 18,4/0,7 х
5,2 = 5,1
Принимаем к установке шесть вертикальных заземлителей.
5. Автоматическое управление электрооборудованием
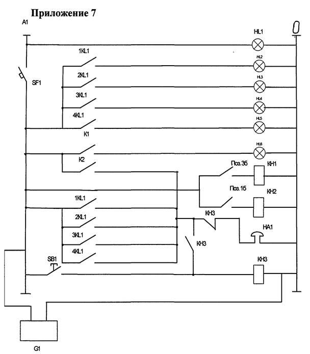
5.1 Общая часть
Проект предусматривает контроль технологических параметров, аварийную сигнализацию и автоматическое регулирование горячего водоснабжения (ГВС) и водоснабжения в системе отопления на теплопункте. Автоматическое регулирование выполнено по четырем направлениям:
1. поддержание стабильной температуры ГВС,
2. поддержание стабильной температуры в системе отопления в зависимости от температуры наружного воздуха по графику,
3. поддержание стабильного давления ГВС,
4. поддержание стабильного перепада давления в системе отопления. Схема регулирования температуры в системе отопления и ГВС выполнена на
базе микропроцессорных датчиков «Метран», микропроцессорного программного регулятора Термодат, исполнительных механизмов МЭО и тирристорных бесконтактных пускателях ПБР.
Схема регулирования давления в системе ГВС и перепада в системе отопления выполнена на базе микропроцессорных датчиков «Метран» и общепромышленных преобразователях частоты фирмы VESPER.
При неисправности оборудования в системе автоматического регулирования звенит звонок, на шкафу автоматики загорается соответствующая сигнальная лампа.
Преобразователи частоты и регулятор Термодат имеют интерфейсные выходы для связи и передачи информации на компьютер.
5.2 Описание схемы управления насосами.
Сигнал 4...20мА от датчика Метран поступает на преобразователь частоты EI - 7011. Поэтому сигналу преобразователь частоты определяет отклонение измеряемого параметра и снижает, либо увеличивает обороты вращения двигателя насоса.
При снижении давления воды в системе до предельно низких значений сигнал передается от электронного манометра ДМ - 2010 Сг на промежуточное реле КН, которое подает сигнал на преобразователь частоты для автоматического отключения насоса.
При этом сигнал с преобразователя частоты поступит на промежуточное реле KL, которое включит звонок и на шкафу автоматики высветится соответствующая сигнальная лампа красного цвета.
| Обозначение
|
Наименование
|
Количество
|
| SF1
|
Выключатель автоматический
|
1
|
| SB1
|
Кнопка управления "Стоп"
|
1
|
| SB2
|
Кнопка управления "Пуск"
|
1
|
| КМ1
|
Пускатель
|
1
|
| KL1
|
Реле РП-25, 220В, 50Гс, 4з+1р
|
1
|
| А
|
Преобразователь частоты EI-7011
|
1
|
| Поз. 4а
|
Датчик перепада давления Метран-100ДД-143 2-02-МП1-11-015-160кПа-16-42-СК-М20-БВН04-ТТТР14
|
1
|
| М
|
Двигатель электрический 4АМ180М4УЗ 380В,50Гс, п-1500 об/мин
|
1
|
5.3. Описание схемы регулирования. Регулятор Термодант имеет два канала регулирования:
1. температуры воды ГВС
2. регулирование регулирование температуры воды в системе отопления в зависимости от температуры наружного воздуха.
Сигнал от датчика температуры ГВС поступает на регулятор, который в зависимости от сигнала, подает команду на закрытие или закрытие регулирующего клапана, установленного на трубопроводе подачи воды от ТЭЦ перед водоподогревателем второй ступени. Температура воды ГВС поддерживается 5 5+0,1 °С. Регулирование температуры воды в системе отопления производится в соответствии с заданной программой сетевой воды и с ограничением температуры обработки. Прибор программируется в процессе наладки на срок до года в виде почасового графика.
Схема предусматривает ручное управление исполнительными механизмами при неисправности регулятора. Для этого необходимо на блоке ручного управления БРУ перевести рукоятку в положение, изображающее кисть руки. Управление исполнительным механизмом производится кнопками, расположенными на БРУ.
5.4 Описание схемы аварийной сигнализации.
Аппаратура аварийной сигнализации размешена в шкафу автоматики.
Сигнальная лампа HL1 «Наличие напряжения» с зеленой линзой загорается после включения автомата питания шкафа.
Сигнальные лампы HL2... HL6 с красной линзой включаются при поступлении сигналов о неисправности преобразователей частоты и регулятора Термодат. Кнопка SB1 отключает звуковой сигнал, но лампа неисправности остается включенной пока не будет устранена неисправность.
От автомата питания аварийной сигнализации SF5 подключен блок питания датчиков
| Обозначение
|
Наименование
| 1KL1...4KL1
|
Реле промежуточная РП-25-200В,50Гц,4з+1р
|
7
|
|
Количество
|
| Q1
|
Блок питания Метран-604-024-80-ОГМ-ТУ 4276-001-2160758-99
|
1
|
| НА1
|
Звонок электрический ЗВП-220
|
1
|
| HL1
|
Лампа светосигнальная ENR-22 240В, 5 0Гц линза зелёная
|
1
|
| HL2...HL6
|
Лампа светосигнальная ENR-22 240В,50Гц линза красная
|
5
|
| КН1...КНЗ
|
Реле промежуточная РП-25-200В,50Гц,4з+1р
|
3
|
| SB1
|
Кнопка управления "Грибок" AELA-22 толкатель красный, 1з+1рУ2001 АГИЕ.303652.001ТУ
|
1
|
| Поз. 16
|
Манометр электроконтактный сигнализирующий ДМ-20100-V, шк.О.. .4 кгс/см2
|
1
|
| Поз.Зб
|
Манометр электроконтактный сигнализирующий ДМ-2010Сг-У, шк.О...6 кгс/см2
|
1
|
7. Электробезопасность
7.1 Действие электрического тока на организм человека.
Опасность электрических поражений создает разнообразное оборудование предприятий бытового обслуживания: электрооборудование и электрифицированный инструмент, сварочные аппараты осветительные установки, электрический привод станочного оборудования и вентиляторов и т.п.
Основными причинами, вызывающими поражение электрическим током, являются непосредственное соприкосновение с открытыми токоведущими частями или проводами, изоляция которых повреждена; ошибочная подача напряжения на установку во время ее ремонта или осмотра; прикосновение к металлическим частям оборудования, случайно оказавшимся под напряжением;
воздействие шагового напряжения и напряжения прикосновения.
7.2 Виды поражений электрическим током.
Проходя через живой организм, электрический ток производит термическое, электролитическое и биологическое действия. Термическое действие проявляется в ожогах наружных и внутренних частей тела, нагреве кровеносных сосудов и крови и т. п., что вызывает в них серьезные функциональные расстройства. Электролитическое действие проявляется в разложении крови и других органических жидкостей, что ведет к серьезным нарушениям их физико-химических составов и ткани в целом. Биологическое действие выражается в раздражении и возбуждении живых тканей организма, что может сопровождаться непроизвольными судорожными сокращениями мышц, в том числе мышц сердца и легких. При этом могут возникать различные нарушения в организме, включая механические повреждения тканей, а также нарушения или даже полное прекращение деятельности органов дыхания и кровообращения. Различают два основных вида поражения организма: электрические травмы и электрические удары.
Электрические травмы — четко выраженные местные нарушения
электрической дуги. Обычно это поверхностные повреждения, т. е. поражения кожи, а иногда других мягких тканей, а также связок и костей. Опасность электрических травм обусловливается характером и степенью повреждения тканей, а также реакцией организма на это повреждение. Обычно травмы излечиваются, и работоспособность пострадавшего восстанавливается полностью или частично. Иногда (обычно при тяжелых ожогах) человек погибает. В таких случаях непосредственной причиной смерти является не электрический ток, а местное повреждение организма, вызванное током.
Электрический ожог — самая распространенная электрическая травма на предприятиях бытового обслуживания: ожоги возникают у большой части пострадавших от электрического тока (60 ... 65%), причем треть их сопровождается другими видами травм — электрическими знаками, металлизацией кожи и механическими повреждениями. Электрические знаки представляют собой четко очерченные пятна серого или бледно-желтого цвета на поверхности кожи человека. Часто знаки имеют круглую или овальную форму с углублением в центре; их размеры 1—5 мм. Бывают знаки в виде царапин, ран, порезов и ушибов, кровоизлияний под кожу, мозолей, а также могут напоминать фигуру молнии. Как правило, электрические знаки безболезненны, и лечение их заканчивается благополучно: с течением времени верхний слой кожи сходит и пораженное место приобретает первоначальный цвет, эластичность и чувствительность. Знаки возникают довольно часто (примерно у 20 % пострадавших от тока).
Металлизация кожи — проникновение в кожу мельчайших частичек расплавленного под действием электрической дуги металла. Пораженный участок кожи имеет шероховатую жесткую поверхность. Пострадавший ощущает напряжение кожи от присутствия в ней инородного тела, а в некоторых случаях испытывает боль от ожогов. Обычно с течением времени больная кожа сходит и пораженный участок приобретает нормальный вид. Весьма редки случаи металлизации при поражении глаз, лечение которых может оказаться длительным и сложным. В некоторых случаях пострадавший может лишиться зрения.
Металлизация кожи наблюдается при разрядах тока, носящих характер электрической дуги. Механические повреждения являются следствием непроизвольных сокращений мышц под действием тока, проходящего через человека. В результате могут произойти разрывы кожи, кровеносных сосудов и нервной ткани, а также вывихи суставов и даже переломы костей. Механические повреждения возникают в среднем у 3 % пострадавших от тока.
Электрический удар — возбуждение живых тканей электрическим током, проходящим через организм, сопровождающееся непроизвольными судорожными сокращениями мышц. В зависимости от исхода действия тока на организм электрические удары могут быть условно разделены на четыре ступени: 1 — судорожно"; сокращение мышц без потери сознания; 2 - судорожное сокращение мышц с потерей сознания, но с сохранившимися дыханием и работой сердца; 3 — потеря сознания и нарушение сердечной деятельности или дыхания (либо того и другого вместе), 4 - клиническая смерть.
Клиническая смерть — это переходный период от жизни к смерти, наступающий с момента прекращения деятельности сердца и легких. У человека, находящегося в состоянии клинической смерти, отсутствуют все признаки жизни: он не дышит, сердце его не работает, болевые раздражения не выбывают никаких реакций, зрачки глаз расширены и не реагируют на свет.
Однако в этот период жизнь в организме еще полностью не угасла, ибо ткани его умирают не все сразу, и не сразу угасают функции различных органов. Первыми начинают погибать очень чувствительные к кислородному голоданию клетки коры головного мозга, что наступает обычно через 4—5 мин, а при гибели здорового человека через 7— 8 мин.
Биологическая смерть — необратимое явление, характеризующееся прекращением биологических процессов в клетках и тканях организма и распадом белковых структур; она наступает по истечении периода клинической смерти. Причинами смерти от электрического тока могут быть прекращение работы сердца, прекращение дыхания и электрический шок. Прекращение сердечной деятельности является следствием воздействия тока на мышцу сердца. Такое воздействие может быть прямым, когда ток протекает непосредственно в области сердца, и рефлекторным, т. е. через центральную нервную систему, когда путь тока лежит вне этой области. В обоих случаях может произойти остановка сердца или его фибрилляция, т.е. хаотические быстрые и разновременные сокращения волокон сердечной мышцы, при которых сердце перестает работать как насос, в результате чего прекращается кровообращение.
Прекращение дыхания как первопричина смерти от электрического тока вызывается непосредственным или рефлекторным воздействием тока на мышцы грудной клетки, участвующие в процессе дыхания.
Электрический шок — своеобразная тяжелая нервно-рефлекторная реакция организма в ответ на сильное раздражение электрическим током, сопровождающаяся опасными расстройствами кровообращения, дыхания, обмена веществ и т. п. Шоковое состояние длится от нескольких десятков минут до суток. После этого может наступить или гибель организма, или полное выздоровление как результат своевременного активного лечебного вмешательства.
7.3 Электрическое сопротивление тела человека
Тело человека является проводником электрического тока. Разные ткани тела оказывают току разное сопротивление. Например, при частоте тока 50 Гц удельное объемное сопротивление. Ом-см, составит:
- сухой кожи 3х105
—2х105
;
- костей (без надкостницы) 1х105
— 2х105
;
- жировой ткани 3х103
—6х103
;
- мышечной ткани 150—300;
- крови 100-200;
- спинномозговой жидкости 50—60.
Как видно из этих цифр, кожа обладает большим удельным сопротивлением, что является главным фактором, определяющим сопротивление всего тела человека.
Кожа состоит из двух основных слоев: наружного и внутреннего. Наружный слой в свою очередь имеет несколько слоев, из которых верхний называется роговым и состоит из многих рядов ороговевших клеток. Роговой слой лишен кровеносных сосудов и нервов и имеет толщину от 0,05 до 0,2 мм. Его удельное сопротивление достигает 10е
Ом-см, что и определяет величину полного сопротивления R4 тела человека. Внутренний слой кожи является живой тканью; его электрическое сопротивление невелико.
Внутреннее сопротивление Rвн тела зависит от длины и поперечного сечения участка тела, по которому проходит ток, и составляет примерно 500—700 Ом. Обычно при переменном токе промышленной частоты сопротивление тела человека Rч принимают равным 1000 Ом.
В действительности это сопротивление — величина переменная, имеющая нелинейную зависимость от множества факторов, в том числе от состояния кожи, характеристик тока, параметров электрической сети, физиологических факторов и состояния окружающей среды. Состояние кожи очень сильно сказывается на величине сопротивления тела человека. Так, повреждение рогового слоя, в том числе порезы, царапины, ссадины и другие микротравмы, могут снизить полное, сопротивление тела до значения, близкого к величине внутреннего сопротивления, что, безусловно, увеличивает опасность поражения человека током.
7.4 Основные факторы, влияющие на исход поражения током.
Величина электрического тока, проходящего через тело человека, является основным фактором, обусловливающим исход поражения. Вместе с тем большое значение имеет длительность воздействия тока, его частота, а также некоторые другие факторы.
Человек начинает ощущать воздействие проходящего через него переменного тока с частотой 50 Гц при силе тока 0,6—1,5 мА и постоянного тока при его силе 5—7 мА. Этот ток называется пороговым ощутимым током. Большие токи вызывают судороги мышц и неприятные болезненные ощущения, которые с ростом тока усиливаются и распространяются на все большие участки тела. При 10—15 мА боль становится едва переносимой, а судороги мышц рук оказываются настолько значительными, что человек не в состоянии их преодолеть. В результате он не может разжать руку, в которой зажата токоведущая часть, не может отбросить от себя провод и т. п, т.е. он не в состоянии самостоятельно нарушить контакт с токоведущей частью. Такой же эффект производят и токи большей величины. Наименьший из них 10—15 мА при частоте 50 Гц (и 50—80 мА при постоянном токе) называется пороговым неотпускающим током.
Ток 25—50 мА при частоте 50 Гц воздействует на мышцы не только рук, но и грудной клетки, в результате чего дыхание сильно затрудняется. Длительное воздействие этого тока вызывает прекращение дыхания, после чего наступает смерть от удушья. Ток более 50 мА (вплоть до 100 мА) при частоте 50 Гц еще быстрее нарушает работу легких и сердца. Однако в этом случае, как и при меньших токах, первыми по времени поражаются легкие, а затем сердце. Переменный ток от 100 мА до 5 А при частоте 50 Гц и постоянный от 300 мА до 5 А действует непосредственно на мышцу сердца, что весьма опасно для жизни, поскольку спустя 1—2с с момента замыкания цени этого тока через человека может наступить не только нарушение дыхания, но и фибрилляция сердца. При этом прекращается кровообращение и в организме наблюдается недостаток кислорода. Все это в свою очередь приводит к прекращению дыхания, т.е. наступает смерть. Эти токи называются фибрилляционными, а наименьший из них — пороговым фибриляционным током.
Ток более 5А, как правило, фибрилляцию сердца не вызывает, а происходит немедленная остановка сердца, минуя состояние фибрилляции, а также паралич дыхания. Если действие тока было кратковременным и не вызывало повреждения сердца (в результате нагрева, ожога), то после отключения тока сердце, как правило, самостоятельно возобновляет нормальную деятельность. Дыхание при этом самостоятельно не восстанавливается, и требуется немедленная помощь пострадавшему в виде искусственного дыхания.
Длительность прохождения тока через живой организм существенно влияет на исход поражения: чем продолжительнее действие тока, тем больше вероятность тяжелого поражения или смертельного исхода.
Путь тока в теле пострадавшего играет существенную роль в исходе поражения. Если на пути тока оказываются жизненно важные органы — сердце, органы дыхания, головной мозг, то опасность поражения весьма велика, поскольку ток воздействует непосредственно на эти органы. Когда ток проходит по иным путям, то воздействие его на жизненно важные органы может быть лишь рефлекторным, благодаря чему вероятность тяжелого поражения резко снижается. Так как сопротивление кожи на разных участках различно, влияние пути тока на исход поражения зависит и от места приложения токоведущих частей к телу пострадавшего.
Возможных путей тока в теле человека очень много. Наиболее часто встречаются следующие: правая рука — ноги, левая рука —ноги, рука — рука и нога — нога. Опасность того или иного пути тока можно оценить по тяжести поражения, а также по значению тока, протекающего через сердце, по данной цепи. Так, например, статистика несчастных случаев, повлекших утрату трудоспособности более чем на три рабочих дня, показывает, что доля терявших сознание во время действия тока составляет при пути тока правая рука — ноги 87 %, левая рука — ноги 80 %, рука — рука 83 %, нога — нога 15 % .
Таким образом, наиболее опасным является путь правая рука — ноги, а наименее опасным — путь нога — нога.
Постоянный ток, как показывает практика эксплуатации электроустановок, примерно в 4—5 раз безопаснее, чем переменный ток промышленной частоты. Однако это справедливо для относительно небольших напряжений (от 250 до 500 В). При более высоких напряжениях опасность постоянного тока выше (рис. 8.2)
Увеличение частоты ведет к повышению опасности поражения током лишь в диапазоне частот 0—60 Гц; дальнейшее повышение частоты и рост тока, проходящего через человека, сопровождается снижением опасности поражения электроударом, полностью исчезающей при частоте 450—500 кГц (рис. 8.3). Правда, при этом сохраняется опасность ожогов.
Индивидуальные свойства человека играют заметную роль в исходе поражения. Установлено, что здоровые и физически крепкие люди легче переносят электроудары, чем больные и слабые. Повышенной восприимчивостью к электрическому току обладают лица, страдающие рядом заболеваний, в первую очередь болезнями кожи, сердечно-сосудистой системы, органов внутренней секреции, легких, нервными болезнями, и находящиеся в состоянии опьянения.
Правила техники безопасности предусматривают отбор по состоянию здоровья персонала для обслуживания действующих электроустановок. Кроме того, правила разрешают допускать к обслуживанию электроустановок людей не моложе 18 лет, имеющих определенные знания в области электробезопасности, соответствующие объему и условиям выполняемых ими работ.
7.5 Категории безопасности электрического тока.
Защитные системы от поражения током должны строиться исходя из безопасных для человека значений тока при данном пути и длительности его протекания и других факторов.
ГОСТ 12.1.038—82 устанавливает предельно допустимые уровни напряжения прикосновения и токи, протекающие через тело человека, предназначенные для проектирования способов и средств защиты людей при взаимодействии их с электроустановками производственного и бытового назначения постоянного и переменного тока частотой 50 и 400 Гц.
Предельно допустимые уровни напряжений прикосновения и токов установлены для путей тока от одной руки к другой и от руки к ногам.
Напряжения прикосновения и токи, протекающие через тело человека при нормальном (неаварийном) режиме электроустановки при продолжительности воздействия не более 10 мин в сутки, не должны превышать следующих значений:
Uпр, В Iч, мА
Переменный ток с частотой 50 Гц 2 0,3
То же 400 Гц 3 0,4
Постоянный ток 8 1
Список литературы
1. Алексеев А. Г. «Экономика, организация и планирование электромонтажных работ». М.: Высшая школа, 1975.
2. . Дьяков В.И. «Типовые расчеты поэлектрооборудованию». М.: Высшая школа, 1984.
3. Зевин М.Б., Парини Е.П. «Справочник молодого электромонтёра». М.: Энергоиздат, 1988.
4. . Конюхова Е.А. «Электроснабжение объектов». М.: Энергия, 1989.
5. Пышкина Э.П. «Охрана труда на предприятиях бытового обслуживания». М.: Энергоиздат, 1992.
6. Справочник по проектированию электроснабжения /Под редакцией В.И. Круповича, Ю.Г.Барыбина, М.Л.Самовера. М.: Высшая школа, 1994.
Приложение 1







Экономический расчёт
Ценообразование и себестоимость в строительно-монтажном производстве. Все продукты труда в социалистическом обществе обладают стоимостью и носят товарный характер. Закон стоимости при социалистическом способе производства используется во взаимоотношениях между хозяйственными организациями, в осуществлении хозяйственного расчета, материальном стимулировании работников и в других сферах материального производства.
Стоимость товара определяется общественно необходимыми затратами труда, которые включают овеществленный труд (стоимость материалов, машин и т. п.) и живой труд, вложенный в производство товаров. По закону расширенного воспроизводства живой труд включает общественно необходимый и прибавочный труд.
Стоимость, выраженная в денежной форме, является ценой продукта труда. В строительно-монтажном производстве ценообразование имеет некоторые особенности (в отличие от промышленного производства): большее разнообразие продукции строительства, зависимость величины затрат от местных условий, значительная продолжительность производственного цикла, участие в строительстве объектов многих общестроительных и специализированных организаций и др.
По этой причине единые цены (прейскуранты) на продукцию строительства не получили должного распространения. Цены на продукцию строительства определяются сметами, составляемыми раздельно на каждый объект и вид работ (общестроительные, механомонтажные, электромонтажные и др.). Сметная стоимость электромонтажных работ слагается из прямых затрат, накладных расходов и плановых накоплений.
Прямые затраты состоят из следующих элементов: основной заработной платы рабочих, занятых на строительно-монтажных работах; стоимости материалов, конструкций и деталей с учетом затрат, связанных с доставкой их от заводов-изготовителей до приобъектного склада; стоимости затрат по эксплуатации строительных машин и механизмов.
где 1,87 — коэффициент, учитывающий накладные расходы (87 % от основной заработной платы);
1,08 — коэффициент, учитывающий плановые накопления (8 % суммы прямых затрат и накладных расходов).
В основе экономических взаимоотношений между заказчиками и подрядчиками лежат договорная цена па строительство предприятий, пусковых комплексов и объектов. Они способствуют экономической заинтересованности организаций, участвующих в строительно-монтажном производстве. Договорная цена определяется заказчиком и подрядчиком с участием проектной организации и субподрядных организаций в соответствии с действующими нормативными документами по определению сметной стоимости строительства и является основой для заключения договоров подряда. В договорных ценах учитываются также и дополнительные затраты подрядчика. Основой для установления договорных цен являются сметные расчеты или расчетная стоимость строительства. Эти цены используются для определения объемов строительно-монтажных работ в титульных списках строек, планирования подрядных работ и материально-технических ресурсов, а также расчетов между заказчиками и подрядчиками и не подлежат изменению на весь период строительства.
Монтажные организации разрабатывают договорные цены на соответствующие комплексы выполняемых работ. Договорная цена на комплекс работ слагается из стоимости монтажных работ, подлежащих выполнению субподрядчиком на строящихся предприятиях, очередях, пусковых комплексах и объектах, а также из средств на покрытие лимитированных и прочих затрат, определенных на основе проектно-сметной документации и договорных цен, согласованных заказчиком, проектной организацией и генподрядчиком.
В договорную цену на комплекс работ включаются: стоимость монтажных работ, подлежащих выполнению субподрядчиком и предусмотренных в объектных (локальных) сметных расчетах и сметах, в том числе средства на покрытие лимитированных затрат (зимние удорожания, временные здания и сооружения и др.); часть прочих затрат, учтенных в сметной документации и относящаяся к комплексу работ субподрядчика; часть резерва средств на непредвиденные работы и затраты, начисляемые на стоимость строительно-монтажных работ и на прочие затраты.
Прочие затраты, связанные с применением аккордной оплаты труда, выплатой за выслугу лет и предоставлением дополнительных отпусков за непрерывный стаж работы, а также возмещением других видов прочих затрат субподрядчика, включаются в договорную цену комплекса работ на основании отдельных расчетов с использованием бухгалтерских данных субподрядчика за предыдущий период.
В ведомости договорной цены указывается договорная цена на комплекс работ, в том числе стоимость строительно-монтажных работ и прочих затрат, с выделением лимитированных и прочих затрат. На объекты и комплексы работ, характер и методы выполнения которых уточняются в процессе строительства, а также при хозяйственном способе ведения работ, договорные цены могут не устанавливаться.
Себестоимость строительно-монтажных работ является обобщающим показателем производственно-хозяйственной деятельности организации и представляют собой выраженные в денежной форме затраты на производство строительно-монтажных работ.
Чем эффективнее используются в процессе производства техника, материальные, трудовые и финансовые ресурсы, совершенные методы руководства производственно-хозяйственной деятельностью, тем в большей степени достигается снижение себестоимости монтажных работ.
В себестоимость работ включаются расходы на оплату труда работников, занятых на объекте строительства и затраты прошлого труда, перенесенные на монтажную продукцию (стоимость материалов, конструкций и других материально-технических ресурсов, амортизация основных фондов). Себестоимость строительно-монтажных работ выражается суммой денежных затрат на объект (подстанция, цех, линия электропередач и т. п.) или на весь комплекс работ, выполненных за тот или иной период (месяц, квартал, год).
Для сопоставимости фактических затрат со сметной стоимостью из фактических затрат исключаются расходы, возмещаемые заказчиком в порядке компенсации сверхсметной стоимости работ или услуг.
Фактическая себестоимость работ Сфс с учетом компенсации, получаемых от заказчиков, определяется по формуле, тыс. руб.:
Сфс = (Сем + К) - (Спн
+ Ссс) (6.4)
где Ссм — сметная стоимость работ;
К — сумма компенсаций, полученных от заказчиков на покрытие сверхсметных затрат;
Спн
— сумма плановых накоплений;
Ссс —сумма достигнутого снижения себестоимости работ.
Мероприятия по снижению себестоимости строительно-монтажных работ разрабатываются в плане технического развития и повышения эффективности производства строительно-монтажной организации. Общая экономическая эффективность всех мероприятий должна обеспечить выполнение задания по прибыли от производства монтажных работ.
Сводные расчетные данные по экономии от снижения себестоимости работ учитываются в смете затрат на производство, являющейся составной частью стройфинплана. Смета затрат определяет уровень себестоимости и размер ее снижения по сравнению со сметной стоимостью и фактическими затратами по отдельным статьям.
Суммы компенсаций на удорожающие факторы, получаемые организацией от заказчика и не предусмотренные сметной стоимостью работ (льготные коэффициенты на заработную плату рабочих, сверхсметные расходы по производственным командировкам, возмещение премиальных доплат рабочим по аккордно-премиальной системе и т. п.) прибавляются к себестоимости строительно-монтажных работ по соответствующим статьям сметы производства. Плановые суммы по отдельным статьям затрат принимаются по данным, исчисленным в соответствующих разделах стройфинплана (сумма основной заработной платы— на основании данных плана по труду, сумма затрат на материалы — в соответствии со структурой планируемых работ и т. д.).
Сумма накладных расходов определяется по смете (табл.3).
Таблица3. Смета затрат на производство строительно-монтажной организации
| №
п/п
|
Обоснование
|
Наименование
|
Ед. изм
|
Кол-во
|
Сметная стоимость руб.
|
| |
|
|
|
|
Ед.
|
общая
|
| 1
|
08-02-409-2
|
ВРУ-3-12
|
шт
|
1
|
256119
|
256119
|
| 2
|
08-02-148-1
|
Шкаф управления насосами 1/1, 1/2, 2/1,2/2
|
шт
|
4
|
6835
|
27340
|
| 3
|
08-02-399-1
|
Расходомерный узел
|
шт
|
1
|
13928
|
13928
|
| 4
|
08-03-591-1
|
Кран-балка
|
шт
|
1
|
12457
|
12457
|
| 5
|
08-03-591-8
|
ЩР
|
шт
|
1
|
15634
|
15634
|
| 6
|
08-02-144-4
|
Противонакипный аппарат УЛА-2 М
|
шт
|
6
|
16467
|
98802
|
| 7
|
08-03524-10
|
Насос холодного водоснабжения
|
шт
|
2
|
33728
|
67456
|
| 8
|
08-03-593-1
|
Насос сетевой подмес-откачка
|
шт
|
2
|
36104
|
72209
|
| Накладные расходы
|
12%
|
|
|
|
|
23517
|
| Итого:
|
|
|
|
|
|
587462
|
При расчете уровня себестоимости работ, а также экономической эффективности от внедрения тех или иных прогрессивных мероприятий накладные расходы подразделяют на условно-постоянные и условно-переменные части. Условно-постоянные накладные расходы учитывают затраты по содержанию административно-хозяйственного персонала, по содержанию помещений, командировочные, канцелярские и некоторые другие расходы, абсолютная величина которых не зависит от степени выполнения организацией утвержденного плана работ. Условно-переменные накладные расходы включают: заработную плату линейного производственно-технического персонала, расходы на бытовое обслуживание работников, организацию строительных площадок и некоторые другие расходы, абсолютная величина которых непосредственно зависит от изменения объема выполняемых работ по сравнению с планом.
|