| ТЕМА: Силове обладнання одноковшових екскаваторів
з гідроприводом 2-ї – 3-ї розмірних груп
ЗМІСТ
ВСТУП
1. ЗАГАЛЬНІ ВІДОМОСТІ ПРО НАСОСИ І ГІДРОДВИГУНИ
2. ШЕСТЕРІНЧАСТІ НАСОСИ І ГІДРОМОТОРИ
3. РОТОРНО-ПОРШНЕВІ НАСОСИ І ГІДРОМОТОРИ
4. ГІДРОЦИЛІНДРИ
ВИКОРИСТАНА ЛІТЕРАТУРА
ВСТУП
Система керування гідравлічного приводу екскаватора призначена для зміни напряму руху і регулювання швидкості вихідних ланок (штоків, валів) гідродвигунів, а також для запобігання конструкції екскаватора від перевантажень. Регулювання швидкості досягається зміною витрати рідини, що надходить у гідродвигун.
Основними елементами систем керування є регулюючі пристрої (клапани різного типу, гідророзподільники, дроселі й ін.), а також механічні шарнірно-підоймові й інші системи, за допомогою яких машиніст керує регулюючими пристроями.
Для керування роботою гідроприводу екскаватора використовують пристрої, за допомогою яких регулюють: тиск у лініях і агрегатах гідроприводу; напрямок руху потоку робочої рідини, у тому числі розподіл його між гідродвигунами; величину подачі (витрати) робочої рідини до гідродвигунів.
Деякі з вхідних у систему керування регулюючих пристроїв діють автоматично, інші знаходяться під контролем машиніста. Пристрою для регулювання тиску діють, як правило, автоматично. Пристроями, що регулюють напрямок руху і витрата робочої рідини, у більшості випадків керує машиніст. Зміна напряму руху і величини витрати робочої рідини, подаваної до гідродвигуна, визначає відповідну зміну напрямку і швидкості руху механізму екскаватора, що приводиться від цього гідродвигуна.
За принципом регулювання швидкості (витрати) розрізняють дросельне й об'ємне регулювання, причому в обох випадках воно може бути автоматичним або ручним.
У гідросистемах із дросельним регулюванням витрата рідини регулюється так називаними дросельними пристроями, що представляють собою гідравлічні опори, установлювані на шляху потоків рідини. До них можуть бути віднесені і розподільні пристрої (наприклад, гідророзподільники золотникового типу), у яких змінюється "площа перетину для проходу жидкости. Гідророзподільник використовують також для зміни напрямку потоку рідини і відповідно реверса руху робочого елемента.
Системи з дросельним регулюванням звичайно застосовують при використанні насосів постійної подачі і нереверсованих автоматично регульованих насосів для ручного регулювання швидкості вихідних ланок гідродвигунів незалежно від величини зовнішніх опорів їх рухові.
У гідросистемах з об'ємним регулюванням зміна витрати рідини забезпечується зміною робочого обсягу насоса, тобто його об'ємної подачі. Реверсування руху в закритих гідросистемах досягається зміною напрямку подачі рідини насосом. При цьому, що йдуть до гідродвигуна гідролінії високого і низького тиску міняються місцями.
На більшості екскаваторів з гідравлічним приводом застосовують нереверсивні регульовані насоси (з нереверсованимпотоком рідини), об'ємна подача яких змінюється автоматично в залежності від навантаження. Гідросистеми з такими насосами вимагають застосування гідророзподільників. Крім того, число встановлюваних на екскаваторі насосів звичайно менше числа двигунів, що приводяться від них. Тому потрібні розподільні пристрої, що направляють потік рідини від насоса до того або іншого гідродвигуна і використовувані також для дросельного регулювання цього потоку. Таким чином, на гідравлічних екскаваторах застосовують обидва види регулювання витрати: об'ємне (автоматично регульовані насоси) і дросельне (ручне керування гідророзподільниками) .
Серйозна увага приділяється зменшенню зусилля, необхідного для керування розподільними й іншими пристроями, що регулюють витрата і напрямок руху рідини.
Опір переміщенню золотника гідророзподільника залежить від розмірів золотника, його конструкції й умов роботи в системі гідроприводу. При механічному керуванні гідророзподільниками рух від рукояток пульта керування до золотників гідророзподільника передаються шарнирно-рычажнои механічною системою.
Механічне керування дає можливість без застосування яких-небудь додаткових пристроїв чітко керувати золотником гідророзподільника, утримуючи його в будь-якому проміжному положенні. Таким чином, машиніст може регулювати величину проходу робочої рідини, забезпечуючи за рахунок її дроселювання регулювання витрати і швидкості руху механізму.
На більшості екскаваторів установлені сполучені важелі керування шарнірного типу. Таким важелем можна керувати одночасно або у визначеній послідовності рухами двох елементів, наприклад стрілою і рукояттю, ковшем і поворотом платформи. Це дозволяє в процесі роботи екскаватора сполучати більше число операцій і створює сприятливі умови для роботи машиніста, тому що йому не приходиться переносити руку з одного важеля на іншій.
1. ЗАГАЛЬНІ ВІДОМОСТІ ПРО НАСОСИ І ГІДРОДВИГУНИ
Насос є частиною об'ємної гідравлічної передачі. Він перетворює механічну енергію в енергію потоку робочої рідини. Робоча рідина транспортується по трубопроводах до гідродвигуна, що перетворює енергію потоку рідини в механічну енергію відомої ланки гідродвигуна (вала гідромотора або штока гідроциліндра), що приводить у дію виконавчий механізм. На гідравлічних екскаваторах застосовують об'ємні насоси в основному двох типів: шестерінчасті і роторно-поршневі. Об'ємним називають насос, у якому рідке середовище переміщається шляхом періодичної зміни обсягу займаної нею камери, що поперемінно повідомляється з входом і виходом насоса.
До шестерінчастих насосів відносять зубцюваті насоси з робочими органами у видглядішестерень, що забезпечують геометричне замикання робочої камери і передавальний крітний момент. Роторно-поршневими називають роторно-поступальні насоси з робочими органами у видгляді поршнів або плунжерів.
Об'ємні гидродвигуни являють собою об'ємні гідромашини, призначені для перетворення енергії потоку робочого середовища в енергію вихідної ланки. Найбільше поширення на екскаваторах одержали гідродвигуни двох типів: гідроциліндри і гідромотори.
Гідроциліндром називають об'ємний гідродвигун зі зворотно-поступальним рухом вихідної ланки (штока або плунжера). Розрізняють гідроциліндри одно- і двосторонньої дії. У перших рух вихідної ланки під дією робочої рідини можливо тільки в одному напрямку, а в других - у двох протилежних напрямках.
Гідромотор - це об'ємний гидродвигун з необмеженим обертальним рухом вихідної ланки (вала).
Існують об'ємні гідромашини, які називаються насосами-моторами, що можуть працювати як у режимі об'ємного насоса, так і в режимі об'ємного гідромотора. Звичайно це бувають уніфіковані вироби, що використовують або в якості насоса, або як гідромотор.
На гідравлічних екскаваторах найбільше застосування одержали шестерінчасті і роторно-поршневі гідромотори.
У шестерінчастого гідромотора робочі камери утворені робочими поверхнями зубчастих коліс і корпуса, а в роторно-поршневого гідромотора - робочими поверхнями поршнів і циліндрів.
Основними технічними показниками насоса є об'ємна подача, тиск, потужність і ККД. Об'ємною подачею насоса називають відношення обсягу подаваного рідкого середовища вчасно.
Розрізняють тиск рідкого середовища на вході в насос, на виході з насоса і граничний тиск насоса. Граничним називають найбільший тиск на виході з насоса, на яке розрахована його конструкція.
Розрізняють потужність, споживану насосом, і корисну потужність насоса. Корисної називають потужність, що повідомляється насосом подаваній рідкому середовищу. Відношення корисної потужності до споживаної потужності насоса є ККД насоса.
Утрати насоса складаються з гідравлических, об'ємних і механічних, котрі оцінюють відповідно ККД. Гідравлічний ККД являє собою відношення корисної потужності насоса до суми корисної потужності і потужності, витраченої на подолання гідравлічних опорів у насосі. Об'ємним ККД називають відношення корисної потужності насоса до суми корисної потужності і потужності, загубленої з витоками. Механічний ККД насоса є величина, що виражає відносну частку механічних втрат у насосі.
Режим роботи насоса, що забезпечує задані технічні показники, називається номінальним. Оптимальним називають режим роботи насоса при найбільшому значенні ККД.
2. ШЕСТЕРІНЧАСТІ НАСОСИ І ГІДРОМОТОРИ
Шестерінчасті насоси бувають із зовнішнім і внутрішнім зачепленням. У насосі з зовнішнім зачепленням (Рис. 2.1.) при обертанні шестерень 1 і 2 у напрямку, зазначеному стрілками, рідина, укладена в западинах шестерень, переноситься з порожнини усмоктування в порожнину нагнітання і потім видавлюється в напірну лінію зубами шестерень, що вступають у зачеплення. Число зубів у шестерень приймають звичайно рівним 6...12. У порожнині усмоктування зуби виходять із зачеплення й обсяг, що звільняється, заповнюється рідиною. Потім процес повторюється.

Рис. 2.1. Схема шестерінчастого насоса з зовнішнім зачепленням:
1, 2 - шестерні, 3 - корпус
Об'ємний ККД в основному залежить від витоків рідини через зазори, утворені голівками зубів і корпусом насоса, а також між торцевими поверхнями шестерень і бічних стінок насоса. Крім того, додатково виникають витоку по лінії контакту зубів. Максимально об'ємний ККД досягає 0,8...0,95. Щоб зменшити витоку, прагнуть максимально зменшити зазори між шестірнями і корпусом насоса. При виготовленні зубів з високою точністю витоку по лінії їхнього контакту можуть бути зведені до нуля.
Насоси з внутрішнім зачепленням застосовують значно рідше. Вони компактніше, але складніше по конструкції і дорожче насосів із зовнішнім зачепленням.
На екскаваторах застосовують шестерінчасті насоси з зовнішнім зачепленням з тиском 10...14 Мпа.
По числу пар шестерень розрізняють односекційні (з одною парою шестерень) і багатосекційні (із двома парами шестерень і більше) насоси. На екскаваторах переважно застосовують односекційні насоси. В односекційному насосі (Рис. 2.2) ведуча 8 і відома 9 шестірні виготовлені заодно з валами й укладені в алюмінієвий корпус 7, що закривають кришкою 5, що прикріплюється болтами 10. Опорними підшипниками ковзання для валів є плаваючі втулки, 6, одночасно вони виконують роль упорних підшипників для торців шестерень 8 і 9. Положення однієї втулки щодо іншої фіксують лисками і дротом.

Рис. 2.2. Шестерінчастий насос у розрізі (а, б) і деталі насоса (в):
1, 2- кільця, 3 - отвір, 4 - ущільнення, 5 - кришка, 6 - втулки, 7- корпус насоса, 8, 9 - шестерні, 10 - болти, 11 - пластина, 12, 13 - кільця
Плаваючі втулки, автоматично притискаються до шестерень незалежно від ступеня зносу їхніх тертьових поверхонь подачею робочої рідини під тиском під торці втулок. Цим досягається високий об'ємний ККД насоса (0,94) і збільшується термін його служби. Щоб уникнути перекосів втулок через нерівномірне навантаження з боку усмоктувальної камери встановлена розвантажувальна пластина 11, обтягнута гумовим кільцем. Рідина, що потрапляє по валах шестерень, надходить через отвір 3 кришки й отвір шестірні 9 у порожнині, що з'єднані з камерою усмоктування. Гумові кільця 1 і 2, а також манжетне ущільнення 4 запобігають витокові рідини з корпуса насоса. Ущільнення закріплене в кришці опорним 12 і розрізним пружинним 13 кільцями.

Рис. 2.3. Односекційний шестерінчастий гідромотор:
1 - корпус, 2 - шайба, 3,5 - кришки, 4 - кільця, 6, 8, 10 - шестірні, 7 - осі, 9 - болти
На хвостовику вала шестірні 8 зроблені шліци для з'єднання насоса з двигуном за допомогою муфти. До бічних площин корпуса насоса болтами прикріплені патрубки, що з'єднують порожнини нагнітання й усмоктування з відповідними трубопроводами.
Насоси випускають як правого, так і лівого обертання і на їхніх корпусах указують: "Правий" або "Лівий". Щоб змінити напрямок обертання, змінюють місцями ведучу і ведену шестірні, повертають кришку на 180°, а втулки так, щоб змінилося положення лінії їхнього контакту по стикових площинах щодо нагнітальної й усмоктувальної площин.
Шестерінчастий гідромотор (Рис. 2.3.). Корпус 1 гідромотора зверху закритий кришкою 3, через порожнини А и Б якої підводиться робоча рідина, а через дренажну порожнину В - приділяються витоки. Гідромотор містить у собі три ведучі шестірні 8 (у розрізі видна одна шестірня), що вільно обертаються на осях 7 до, що приводять у рух відому шестірню 6, виготовлену заодно з валом. За допомогою шайби 2 розподіляється рідина, що надходить через порожнини А и Б. Нижня кришка 5 служить одночасно фланцем для кріплення гідромотора. Усі деталі гідромотора стягнуті по периметрі болтами 9.
Поверхня рознімання ущільнюється п'ятьма гумовими кільцями 4. На консольній частині веденої шестірні закріплена шестірня 10, що безпосередньо закріплюється з зубчастим колесом механізму, що приводиться. Такий гідромотор розвиває великий крітний момент, тому його називають високомоментним і використовують для безпосереднього приводу механізмів без редукторів, наприклад для привода механізму повороту платформи.
Шестерінчасті насоси і гідромотори відрізняються рядом переваг: прості по конструкції, малогабаритні, можуть працювати при високій частоті обертання. Повний ККД більшості шестерінчастих насосів у робочій зоні не перевищує 0,6...0,75, що менше повного ККД насосів інших типів. Крім того, шестерінчасті насоси мають невеликий термін служби при роботі з високим тиском, тому них рекомендується застосовувати в тих гідропередачах екскаваторів, де ККД не має істотного значення.
3. РОТОРНО-ПОРШНЕВІ НАСОСИ І ГІДРОМОТОРИ
Роторно-поршневі насоси і гідромотори широко застосовують у гідроприводах ряду екскаваторів як на начіпних, так і на багатьох повноповоротних машинах. Найбільше поширення одержали роторно-поршневі насоси двох типів: Аксіально-поршневі і радіально-поршневі.
Аксіально-поршневі насоси і гідромотори. Їхньою кінематичною основою служить кривошипно-повзунковий механізм, у якому циліндр переміщається паралельно своєї осі, а поршень рухається разом з циліндром і одночасно внаслідок обертання вала кривошипа переміщається щодо циліндра. При повороті вала кривошипа на кут Ф (Рис. 3.1, а) поршень переміщається разом з циліндром на відстань а і щодо циліндра на с. Поворот площини обертання вала кривошипа навколо осі в (Рис. 3.1, б) на кут р" приводить також до переміщення крапки А, у якій палець кривошипа шарнірно з'єднаний зі штоком поршня.
Якщо замість одного взяти кілька циліндрів і розташувати них по окружності блоку або барабана, а кривошип замінити диском, вісь якого повернена щодо осі циліндрів на кут у, причому (3 + У = 90°, то -площина обертання диска збіжиться з площиною обертання вала кривошипа. Тоді буде отримана принципова схема Аксіально-поршневого насоса (Рис. 3.1, в), у якого поршні переміщаються при наявності кута в між віссю блоку циліндрів і віссю ведучого вала.
Насос складається з розподільного диска 1, що обертається блоку 2, поршнів 3, штоків 4 і похилий диски 5, шарнірно з'єднаного з центральним шипом. У диску 1 зроблені дугові вікна 7 (Рис. 3.1, г), через які рідина засмоктується і нагнітається поршнями. Між вікнами передбачені перемички шириною Ь, що відокремлюють порожнину усмоктування від порожнини нагнітання. При обертанні блоку отвору 8 циліндрів з'єднуються або з порожниною усмоктування, або з порожниною нагнітання. При зміні напрямку обертання блоку функції порожнин міняються. Для зменшення витоків рідини торцеву поверхню блоку ретельно притирають до диска 1. Диск 5 обертається від вала 6, а разом з диском обертається блок циліндрів.
Кут у звичайно приймають 12."15°, а іноді 30°. Якщо кут у постійний, то подача насоса постійна. При зміні в процесі роботи кута змінюється хід поршнів 3 на один оборот ротора і відповідно змінюється подача насоса.

Рис. 3.1. Схеми аксіально-поршневого насоса:
а - дії поршня, б-роботи насоса, в-конструктивна, г-дії нерухомого розподільного диска; 1, 5 - диски, 2 -обертовий блок, 3 - поршень, 4 - шток, 6 - вал,
7 - вікно, .8 -отвір; а - довжина повного перетину дугового вікна

Рис. 3.2. Схема регульованого аксіально-поршневого насоса:
1 - пружина, 2 - поршень, 3- шайба, 4 - плунжер, 5 - вал
В автоматичному регульованому Аксіально-поршневом насосі (Рис. 3.2.) регулятором подачі є шайба 3, зв'язана з валом 5 і з'єднана з поршнем 2. На поршень з однієї сторони діє пружина V, а з іншого боку - тиск у напірній гідролінії. При обертанні вала шайба переміщає плунжери 4, що засмоктують робочу рідину і нагнітають неї в гідролінію. Подача насоса залежить від нахилу шайби, тобто від тиску в напірній гідролінії, що змінюється, у свою чергу, від зовнішнього опору. Для насосів невеликої потужності подачу насоса можна також регулювати вручну шляхом зміни нахилу шайби, для більш могутніх насосів застосовують спеціальний підсилювальний пристрій.
Аксіально-поршневі гідромотори улаштовані так само, як і насоси. Розрізняють Аксіально-поршневі насоси і гідромотори з похилим блоком і похилим диском.
На одноковшевих екскаваторах последние не застосовують.
Нерегульований Аксіально-поршневий насос-гідромотор з похилим блоком (Рис. 3.3.). Блок 3 циліндрів одержує обертання від вала 1 через універсальний шарнір 2. Вал приводиться в рух від двигуна і спирається на три шарикопідшипника. Поршні 8 зв'язані з валом штоками 10, кульові голівки яких завальцовані у фланцевій Частині вала. Блок циліндрів, що обертається на шарикопідшипнику 9, розташований стосовно вала під кутом 30° і притиснутий пружиною 7 до розподільного диска 6, що цим же зусиллям притискається до кришки 5, через вікна в якій підводиться і приділяється робоча рідина. Манжетне ущільнення 11 у передній кришці перешкоджає витоку олії з неробочої порожнини насоса.
У такого насоса вісь блоку циліндрів розташована під кутом до осі ведучого вала, що і визначає його назву - з похилим блоком. На відміну від його в аксіальних насосів з похилим диском вісь блоку циліндрів збігається з віссю ведучого вала, а під кутом до нього розташована вісь диска, з яким шарнірно зв'язані штоки поршнів.
Аксіально-поршневі регульовані і нерегульовані насоси і гідромотори, широко застосовувані на вітчизняних екскаваторах, відрізняються уніфікованою конструкцією секції, що качає, (Рис. 3.4, а). Опорами ведучого вала 1 служать три шарикопідшипника: два радіально-упорних 13 і один радіальний 14. Від осьового переміщення внутрішні кільця підшипників утримуються двома пружинними кільцями 15, втулкою 3 і запірним кільцем 2. У передній кришці 16 установлене манжетне ущільнення 17, що спирається на втулку 18. У сферичні гнезда фланця вала входять сім шатунів 11, що разом з центральним шипом 5 притиснуті до фланця вала штампованою пластиною 4. На шипі штифтом 10 зафіксований блок 7 циліндрів, зовнішня поверхня якого спирається на розподільний диск 8. Опорами шипа служать з однієї сторони сферична голівка, а з іншого боку - бронзова, втулка 9, запресована в диск. Усередині блоку циліндра знаходяться сім поршнів 12, завальцованных на шатунах. Попереднє притиснення блоку циліндрів до диска досягається тарілчастими пружинами 6.

Рис. 3.3. Аксіально-поршневой нерегульований насос-гідромотор з похилим блоком:
1- вал, 2 - шарнір, 3 - блок циліндрів, 4- вікно, 5 - кришка, 6 - диск,
7 - пружина, 8- поршень, 9-шарикопідшипник, 10- шток, 11- ущільнення
Коли вісь вала збігається з віссю шипа (як показано на малюнку), поршні при обертанні вала не роблять зворотно-поступального руху і не роблять усмоктування і нагнітання робочої рідини.
У нерегульованого насоса блок циліндрів повернуть так, що вісь шипа складає деякий кут з віссю вала (Рис. 3.4, б). Тому при обертанні блоку поршні всмоктують і нагнітають рідина через канали диска. При зміні розміру і напрямок нахилу блоку циліндрів змінюються потужність і напрям потоку робочої рідини. Якщо зафіксувати кут нахилу блоку циліндрів, то насос стає нерегульованим.

Рис. 3.4. Аксіально-поршневой уніфікований насос-гідромотор:
а - уніфікована секція, що качає, б - нерегульований насос-гідромотор; 1 - вал, 2- кільце, 3, 9, 18- втулки, 4- пластина, 5 - шип, 6 - тарілчасті пружини, 7 - блок циліндрів, 8 - диск, 10 - штифт, 11 -шатун, 12- поршень, 13, 14 - шарикоподшипники, 15 - кільця, 16, 20 - передня і задня кришки, 17 - ущільнення, 19-корпус Рис. 94. Регульований Аксіально-поршневой насос:
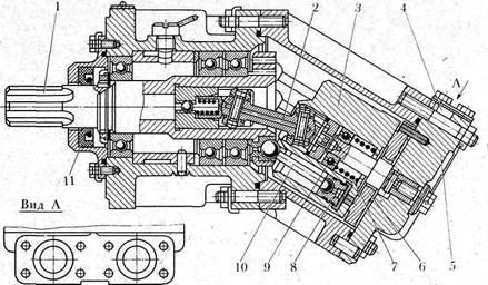
На екскаваторах ЭО-3322Д, ЭО-3323, ЭО-4321А, ЭО-4121Б и ЭО-4124 установлені регульовані аксіально-поршневі насоси, що складаються з двох уніфікованих секцій, що качають, змонтованих в одному корпусі. Такі насоси (Рис. 3.5.) використовують для створення двох потоків робочої рідини. Повне використання потужності приводного двигуна забезпечується за допомогою убудованого сумматора потужності, який розподіляє потужність між споживачами таким чином, що сума цих потужностей залишається постійної і рівної встановленої потужності приводу. Вал 5 (Рис. 3.5, а) одержує обертання від приводного двигуна і через редуктор 6 передає рух валам секцій, що качають.
Поворотні корпуси 1 і 7 секцій, що качають, установлені на підшипниках і можуть повертатися навколо вертикальної осі на кут 25°, чим досягається зміна подачі насоса. Обоє корпуси 1 і 7 жорстко зв'язані між собою траверсою 4 регулятори і можуть повертатися тільки синхронно під впливом регулятора потужності.
 
Рис. 3.5. Здвоєний аксіально-поршневой насос із сумматором потужності:
а - гідравлічна схема, б -загальний вид; 1, 7 – поворотні корпуси, 2 - золотник,
3 - комплект із двох пружин, 4 - траверси, 5 - вал насоса, 6 - редуктор,
8 – обмежник ходу, 9 - цапфа блоку циліндрів, 10 - тяга регулятора, 11- гвинт установки мінімальної витрати, 12 - шайба
Переваги аксіально-поршневых насосів і гідромоторів: компактність, високий ККД при великому тиску, порівняно мала инерционность, значна енергоємність на одиницю маси (у деяких высокооборотных конструкціях до 12 квт/кг).
Недоліки цих насосів і гідромоторів: необхідність у тонкій фільтрації робочої рідини, складність виготовлення і труднощі забезпечення тривалого терміну служби деяких деталей (наприклад, підшипника блоку циліндрів у насосів із золотниковим розподільником)
Радіально-поршневі насоси (рис, 3.6.) і гідромотори. Основою насоса є кривошипно-повзунковий механізм, у якого роль шатуна виконує статор 1, співвісний осі а циліндри зроблені в роторі 2. При обертанні ротора навколо осі Ог, що має стосовно осі О ексцентриситет е, поршень робить обертальний Рух разом з ротором і зворотно-поступальний рух щодо ротора.
Рідина підводиться під поршень і бтводится відтіля по двох каналах 3, зробленим уздовж осі ротора. Рідина витісняється (нагнітається) при обертанні поршня від крапки А к крапці С и при переміщенні його до центра (осі) Ог. При роботі необхідно, щоб поршні були притиснуті до статора. Досягається це або під дією пружин, що поміщаються під поршень, або за допомогою повзунів, що переміщаються в пазах статора, або за рахунок допоміжного насоса, що підкачує, завдяки якому поршні притискаються до статора в порожнині усмоктування насоса.

У гідромоторі аналогічного типу поршні притискаються тиском рідини, подводимой під поршні.
Якщо в насосі змінити розмір ексцентриситету е шляхом переміщення статора, буде змінена дія порожнин усмоктування і нагнітання на зворотне. Зміна ексцентриситету викликає відповідна зміна подачі насоса.
Радіально-поршневі насоси застосовують, для створення тиску до 25 Мпа і подачі від 5 до 500 л/хв при частоті обертання ротора від 6000 до 1500 у хвилину.
Радіально-поршневі гідромотори аналогічні по пристрої насосам і відрізняються призначенням і принципом дії.
4. ГІДРОЦИЛІНДРИ
У гідроциліндрів вихідною (рухливою) ланкою може бути як шток або плунжер, так і корпус.
Основні параметри гідроциліндрів: внутрішній діаметр, діаметр штока, хід поршня і максимальний тиск, що визначає його експлуатаційну характеристику і конструкцію, зокрема, тип застосовуваних ущільнень, а також вимоги до якості обробки і чистоті внутрішньої поверхні гідроциліндра і зовнішньої поверхні штока.
Гідроциліндр однобічної дії (Рис. 4.1, а). Його особливість полягає в тім, що зусилля на вихідній ланці (наприклад, штоку), що виникає при нагнітанні в робочу порожнину гідроциліндра рідини під тиском, може бути спрямовано тільки в одну сторону (робітник хід). У протилежному напрямку вихідна ланка переміщається (витісняючи при цьому рідина з гідроциліндра) тільки під впливом поворотної пружини 6 або іншої зовнішньої сили, наприклад сили ваги. Поршневі гідроциліндри однобічної дії на екскаваторах застосовують звичайно в системах керування і для приводу деяких допоміжних механізмів.
Гідроциліндри двосторонньої дії (Рис. 4.1, б, в) мають дві робочі порожнини, тому зусилля на вихідній ланці і його переміщенні можуть бути спрямовані в обидва боки в залежності від того, у яку з порожнин нагнітається робоча рідина (протилежна порожнина при цьому з'єднується зі зливом).

Рис. 4.1. Схема гідроциліндра одно- (а) і двосторонньої дії з одно- (б) і двостороннім (в) штоком:
1 - корпус, 2- шток, 3 - штуцер, 4 - поршень, 5-манжети, 6 - поворотна пружина, 7, 8-ущільнення

Рис. 4.2. Тверде (а...в) і шарнірне (м, д) кріплення корпуса гідроциліндра за корпус (а, г), задню (б, д) і передню (в) кришки
Найбільш поширені в екскаваторах з гідроприводом гідроциліндри двосторонньої дії з однобічним штоком; гідроциліндри з двостороннім штоком (Рис. 4.1, в) застосовують в основному для приводу повороту робочого устаткування деяких начіпних екскаваторів, причому рухливою ланкою є корпус гідроциліндра. Зовнішній кінець штока звичайно кріплять шарнірно.
Схеми різних варіантів кріплення до нерухомих елементів конструкції корпуса гідроциліндра показані на Рис. 4.2. Тверде кріплення (Рис. 4.2, а...в) застосовують в основному для невеликих гідроциліндрів системи керування, в екскаваторобудуванні частіше використовують шарнірне кріплення (Рис. 4.2, г, д).
В обох місцях шарнірного кріплення гідроциліндрів робочого устаткування - у корпуса і штока - застосовують сферичні підшипники ковзання. Ці підшипники допускають поворот (на невеликий кут) пальця в будь-якій площині, забезпечують вільний монтаж і демонтаж шарнірного з'єднання і виключають заклинювання його при невеликих перекосах через неточність виготовлення елементів робочого устаткування.
Гідроциліндр (Рис. 4.3.) на тиск 16 Мпа, використовуваний для робочого устаткування екскаватора ЭО-3322Д, складається з наступних основних частин: власне гідроциліндра (гільзи 19 із привареної до неї задньою кришкою), нагвинченої на гільзу передньої кришки 9 з отвором під шток, штока 18 з вушком 2 і поршні 15. У вушку, угвинченої в зовнішній торець штока, і у вушку задньої кришки гідроциліндра встановлені за допомогою пружинних кілець сферичні підшипники 1.
Робоча рідина подається в поршневу і штокову порожнини гідроциліндра відповідно через отвори Б и А. Герметичний поділ поршневої і штокової порожнин і передача зусилля від тиску в робочій порожнині на шток створюються поршнем з манжетами 14 і ущільнювальним кільцем 13. Поршень кріплять на внутрішньому кінці штока гайкою 16, фиксируемой шплінтом 17. Манжети утримуються від осьового переміщення по поршні манжетотримачами 12. Передня кришка фіксується на різьбленні гільзи циліндра контргайкою 10. Запресована в кришці втулка 21 служить направляючої для штока.
Витокам зі штокової порожнини гідроциліндра перешкоджають встановлене в проточці кришки 9 ущільнювальне кільце 8, а також манжета 6 і ущільнювальні кільця 4 і 5 у втулці. Від осьового переміщення при русі штока манжета 6 утримується манжетотримачем 7. З боку зовнішнього торця встановлений брудознімач 3, що утримується гайкою 22, укрученої у внутрішнє різьблення кришки.

Рис. 4.3. Гідроциліндр екскаватора ЭО-3322Д:
1 - сферичний підшипник, 2 - вушко штока, 3 - брудознімач, 4, 5, 8, 13- ущільнювальні кільця, 6, 14 манжети, 7, 12 - манжетодержатели, 9- передня кришка, 10 - контргайка, 11-демпфер, 15 - поршень, 16 - гайка поршня, 17 - шплінт, 18 - шток, 19 - гільза гідроциліндра з задньою кришкою, 20 - крайка кришки, 21-втулка передньої кришки, 22 - гайка брудознімача
На штоку поруч з поршнем установлений демпфер 11, що зм'якшує удар поршня в передню кришку наприкінці його повного ходу. Наприкінці ходу штока щілина між крайкою 20 кришки і конічною поверхнею демпфера, через яку робоча рідина вичавлюється поршнем зі штокової порожнини в отвір А, зменшується. При цьому поршень загальмовується за рахунок дроселювання оливи через зменшувану щілину.
Перелік використаної літератури
1. Беркман И.Л., Раннев А.В., Рейш А.К. Одноковшовые строительные экскаваторы: Учеб. для сред. ПТУ — 3-е изд., перераб. и доп. — М.: Высш. шк., 1986. — 272 с: ил. — (Профтехобразование) 75 к.
2. Лауш П.В. Техническое обслуживание и ремонт машин. – К.: Висшая школа, 1989. – 350с.
3. Полянський С.К. Будівельно-дорожні та вантажопідіймальні машини. – К.: Техніка, 2001. – 624с.
4. http://maxi-exkavator.ru
5. http://stroy-technics.ru
|