Расчет грузоподъемных машин
ВВЕДЕНИЕ
Грузоподъемные машины являются составной частью каждого производства и играют важную роль в механизации погрузочных работ.
Курсовое проектирование грузоподъемных машин – первая самостоятельная разработка машины в целом с взаимосвязанными механизмами, способствующая дальнейшему развитию у студентов конструкторских навыков. При работе над проектом возникает много вопросов по выбору схемы и параметров механизмов, их компоновки, последовательности расчета и т.д. В методических указаниях приведены необходимые рекомендации и нормативные данные, некоторые справочные материалы и последовательность расчета.
Расчетную часть проекта выполняют в виде пояснительной записки, которая должна содержать: задание на проект; введение; схемы механизмов тележки с описанием их назначения, устройства и особенностей; расчет механизмов, узлов и деталей с приведением расчетных схем и обоснованием принятых параметров и допускаемых напряжений (расчеты сопровождают ссылками на литературу); список использованной литературы; оглавление, содержащее наименование всех основных разделов записки (помещают в конце ее).
Пояснительную записку выполняют на листах писчей бумаги формата А4 (297 .
210) в соответствии с ЕСКД. Текст пишут чернилами, схемы и эскизы выполняют в карандаше под линейку с проставлением всех размеров и обозначений. При использовании стандартных и нормализованных узлов в записке приводят их характеристику.
В аналитических расчетах сначала записывают формулу в буквенных выражениях, а затем подставляют числовые значения и записывают результаты. Промежуточные вычисления не приводят. Все символы, входящие в формулы, должны иметь объяснения в тексте. Ссылки на литературные источники, стандарты и нормали заключают в квадратные скобки, эти ссылки должны соответствовать прилагаемому в конце записки списку литературы.
МЕХАНИЗМ ПОДЪЕМА
Последовательность расчета
1. Принять схему механизма, вычертить его с заданным типом крюковой подвески (приложения, рис П.1), привести его описание.
2. Выбрать канат, блоки, барабан, крюк, упорный подшипник (устанавливается под гайку крюка).
3. Составить эскиз крюковой подвески и рассчитать ее элементы – траверсу, ось блоков, подшипники блоков и серьгу (рис. П.2).
4. Выполнить кинематический и силовой расчет привода механизма: выбрать двигатель, редуктор, тормоз, муфты, проверить двигатель на нагрев по среднеквадратичному моменту с учетом графика загрузки механизма (рис.П.5) и двигателя (рис.П.6).
5. Определить размеры барабана и проверить на прочность его элементы.
Методика расчета
Задано: грузоподъемность (т), высота подъема (м), скорость подъема (м .
с-1
), количество ветвей полиспаста , режим работы, тип крюковой подвески.
1.
Схема механизма[1]
(рис.1)
Электродвигатель 4 переменного тока соединяется через вал – вставку 3 с помощью зубчатых муфт с двухступенчатым редуктором 1. Редукторная полумуфта 2 вала вставки используется как тормозной шкив нормально замкнутого колодочного тормоза. Выходной вал редуктора соединятся с барабаном 5 также зубчатой муфтой, у которой одна из полумуфт выполняется как одно целое с валом редуктора, а вторая – крепится непосредственно к барабану. На барабан навивается канат со сдвоенного полиспаста.
2.
Канат, блок, крюк, гайка крюка и упорный подшипник
Кратность полиспаста

где - количество канатов полиспаста, наматываемых на барабан; для сдвоенного полиспаста .
КПД полиспаста[2]
,
где - КПД блока; принимаем = [1, табл.2.1.].
Максимальное натяжение каната

Расчетная разрывная сила
,
где - коэффициент запаса прочности; по правилам[3]
Госгортехнадзора [1, табл. 2.3] при режиме работы. Выбираем канат [1, табл. ] типа конструкции ГОСТ :диаметр каната = мм, разрывная сила = при маркировочной группе .
Условное обозначение: канат [1, с. 56].
Диаметр блока (барабана)
,
где - коэффициент долговечности каната; принимаем [1,табл.2.7]при режиме работы.
Выбираем [ , табл. П.1] диаметр блока по дну ручья , при длине ступицы мм.
Выбираем[4]
диаметр барабана (по дну канавок) мм [ ].
Для номинальной грузоподъемности т и режиме работы выбираем [ , табл.П.2] однорогий крюк по ГОСТ с размерами: , , , , мм, резьба .
Высота гайки крюкаиз
условия прочности на смятие резьбы
=
где и - параметры резьбы; - допускаемое[5]
напряжение; для резьбы , , мм [2, табл.14], = МПа [];
конструктивных[6]
соображений =
принимаем = мм [3]
Наружный диаметр гайки

принимаем мм [3]
Расчетная нагрузка на упорный подшипник
,
где - коэффициент безопасности, принимаем[7]

Выбираем[8]
[2, табл. 15] шарикоподшипник упорный одинарный ГОСТ 6874-75: , , мм, кН.
3.
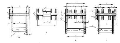
Крюковая подвеска[9]
Нормальная подвеска состоит из блоков 2, оси блоков 1, траверсы 4 и серег 3 (рис. 2).
3.1 Конструктивные размеры[10]
:
Ширина траверсы

где - наружный диаметр упорного подшипника
принимаем мм [3]
диаметр[11]
отверстия

принимаем мм
длина[12]
траверсы 
принимаем = мм
пролет траверсы
,
где - толщина серьги; принимаем = мм [табл. П.3]
принимаем = мм
длина консоли

принимаем = мм.
Расстояния


принимаем , мм
3.2 Траверса
Для изготовления выбираем сталь по ГОСТ : , , МПа (табл.4)
Допускаемое напряжение изгиба при пульсирующем цикле изменения напряжений
,
где К – коэффициент концентрации напряжений; - запас прочности; принимаем[13]
К= [2, табл. 15], (табл. П.5)
Реакции опор
 
Изгибающие моменты в сечении
АА 
ББ 
Высота траверсы из расчета на изгиб

принимаем мм [3]
Диаметр цапфы из расчета на
изгиб 
смятие ,
где - допускаемое напряжение; принимаем[14]
= МПа.
принимаем[15]
= мм.
3.3 Ось блоков
Для изготовления применяем[16]
сталь по ГОСТ : = , , МПа (табл.П.4).
Реакции опор Н.
Изгибающие моменты[17]
Диаметр[18]
оси 
принимаем = мм
Подшипники блоков
Радиальная нагрузка на подшипник
,
где - число блоков подвески; = .
Эквивалентная нагрузка

где - нагрузки, соответствующие времени их действия за весь срок службы подшипника ; принимаем , , , (рис. П.2).
Приведенная нагрузка
,
где - коэффициент радиальной нагрузки, - кинематический коэффициент вращения, - температурный коэффициент; принимаем при действии только радиальной нагрузки , при вращении наружного кольца подшипника , при температуре  
Частота[19]
вращения блоков
, мин-1
Требуемая[20]
динамическая грузоподъемность шарикового однорядного подшипника
,
где - срок[21]
службы подшипника; [1, с.19].
Выбираем[22]
шарикоподшипник радиальный однорядный : , , мм, С = кН [2].
3.4 Серьга
Для изготовления серьги выбираем[23]
сталь по ГОСТ : , , МПа (табл. П.4.).
Допускаемое напряжение на растяжение 
Допускаемое напряжение на смятие МПа
ширина серьги ;
принимаем мм [3]
высота проушины ;
принимаем мм [3]
Напряжение растяжения
,
что меньше (больше) МПа.
Напряжение в проушине[24]
,
где - давление в зоне контакта[25]
(оси, цапфы) и серьги; принимаем МПа.
4.
Привод механизма
4.1 Двигатель
Расчетная мощность
,
где - КПД механизма; принимаем[26]
[1, табл.1.18].
Выбираем[27]
электродвигатель ; номинальная мощность при ПВ = % кВт, частота вращения мин-1
, момент инерции ротора = кг×м2
, максимальный (пусковой) момент  , размер , диаметр вала мм [].
Условное обозначение: двигатель [1, с. 38].
4.2 Редуктор
Частота вращения барабана[28]
, мин-1
Передаточное отношение

Минимально возможное суммарное межосевое расстояние редуктора
,
где - габаритный размер барабана с учетом узла крепления каната на барабане; принимаем при = = мм [1, табл.ІІІ. 2.1].
Выбираем[29]
редуктор : межосевое расстояние мм, передаточное число , мощность на быстроходном валу при режиме работы и частоте вращения мин-1
кВт, диаметр быстроходного вала мм [ ], размеры выходного вала с зубчатым венцом , , , модуль мм, число зубьев = [2, табл.6].
Условное обозначение: редуктор [1, с.41].
Предельно допустимый момент редуктора

где к – коэффициент режима работы; принимаем прирежиме работы к = [1, с.41].
Средний пусковой момент двигателя
,
где - номинальный момент двигателя; , Н .
м
Таким образом, принятый редуктор[30]
условиям перегрузки в период пуска
Фактическая скорость подъема груза
, 
Отклонение[31]
от заданной скорости

4.3 Тормоз
Статический момент при торможении

Тормозной момент
,
где - коэффициент запаса торможения; принимаем = при режиме работы [1, табл.2.9].
Выбираем[32]
тормоз с тормозным моментом Н×м [ ].
4.4 Муфты вала – вставки
Расчетный момент
,
где - коэффициенты, учитывающие соответственно степень ответственности механизма и режима работы, - номинальный момент на валу двигателя; принимаем [1, табл.1.35] для механизма подъема , при режиме работы .
Выбираем[33]
муфту зубчатую с тормозным шкивом (табл.П.6.): момент [Т] = Н×м, диаметр тормозного шкива , диаметр отверстия шкива , диаметр отверстия полумуфты мм, момент инерции  .
Условное обозначение: муфта зубчатая с тормозным шкивом [1, с.41…43].
Выбираем[34]
муфту зубчатую типа МЗП (табл.П.7) по ГОСТ : момент  , диаметр отверстия , мм, момент инерции  .
Условное обозначение: муфта зубчатая МЗП [1, с.41…43].
4.5 Проверка электродвигателя на нагрев
4.5.1
Кран работает с грузовым электромагнитом. В этом случае подъемная сила электромагнита

Выбираем[35]
грузовой электромагнит типа [табл. П.8]: подъемная сила кН, масса = т.
Полезная номинальная грузоподъемность

В соответствии с графиком загрузки механизма подъема (рис. П.5)


,
где - относительная[36]
масса груза; для режимаработы , , .
КПД[37]
механизма [1, рис. 1.2]

при 
при 
Угловая скорость вала двигателя

Статический момент[38]
на валу двигателя при подъеме груза
, 
При опускании груза
, 
Момент инерции движущихся масс, приведенный к валу двигателя,
, 
где - коэффициент, учитывающий моменты инерции масс механизма, вращающихся медленнее, чем вал двигателя; принимаем[39]
.
Время пуска[40]
при
подъеме груза

опускании груза

Результаты расчета сведены в таблицу
| Показатель |
Обозначение |
Единица |
Результаты при массе, кг |
 |
 |
 |
| КПД |
 |
- |
| Момент при подъеме |
 |
 |
| Момент инерции |
 |
 |
| Время пуска при подъеме |
 |
С |
| Момент при опускании |
 |
 |
| Время пуска при опускании |
 |
С |
Среднеквадратичный момент
,
где - суммарное время пуска в течении одного цикла, - время установившегося движения, - коэффициент, учитывающий ухудшение условий охлаждения двигателя при пуске, - общее время установившегося движения; принимаем для закрытого двигателя [1, с.36], (здесь Н – высота подъема груза), с учетом графика загрузки электродвигателя (рис. П.6)
,
,

Эквивалентная мощность[41]
, кВт
, кВт
Ускорение[42]
при пуске, м .
с-2
, 
Время[43]
торможения при опускании номинального груза
, с
Путь торможения [1, табл. 1.22]

Замедление при торможении
, 
4.5.2
Кран работает без магнита. В этом случае и , , , .
Далее расчет выполнить по приведенной выше методике (П.4.5.1.).
5.
Узел барабана (Рис. 3)
Размеры:
диаметр[44]
по дну канавок мм.
шаг нарезки мм [1, табл. 2.8.].
длина участка барабана для узла крепления конца каната 3
длина нарезки на половине барабана
.
Принимаем мм.
длина[45]
участка между нарезками =
Расчетная длина барабана
.
Принимаем[46]
мм.
Свободные участки по краям барабана

5.1 Сварной барабан
Изготовляем из стали ГОСТ : , МПа (табл. П.4.)
Толщина[47]
стенки из расчета на сжатие
,
где - допускаемое напряжение; [1, с.62].
Толщина стенки из конструктивных соображений

принимаем[48]
мм [3].
5.1.1 Эскизная[49]
компановка (рис. 3)
По диаметру расточки мм (табл.П.9) выходного вала редуктора выбираем[50]
радиальный сферический двухрядный подшипник [2, табл.] : , , , мм, , кН. Совмещаем на общей оси середину подшипника, зубчатого венца вала редуктора 2 и венца 1 барабана [2, табл.13]. Торец барабана оказывается на расстоянии мм [1, табл. ІІІ.2.1] от этой оси.
Основные размеры[51]




Принимаем мм
Из компоновки 
5.1.2 Прочность барабана
Рассматриваем барабан как балочку на шарнирно-подвижных опорах А и В, к которой приложены силы[52]
.
Реакции опор (по уравнениям статики)
 
 
Проверка 
Изгибающие моменты 
Крутящие моменты .
Эквивалентный момент


Эквивалентное напряжение[53]
в стенке
 ,
где - эквивалентный момент сопротивления поперечного сечения барабана изгибу

Здесь 
5.1.3 Прочность полуоси
Выполняем для правой (по рис.3) полуоси, имеющей большие осевые размеры. Выбираем материал сталь ГОСТ с пределом текучести МПа (табл. П.4.)
Изгибающий момент в сечении АА

Напряжение изгиба
 
5.1.4 Прочность сварного шва
 
где - катет шва; принимаем .
5.1.5 Долговечность опор
Проверяем для опоры В, т.к. этот подшипник вращается[54]
.
Частота вращения[55]
барабана
, мин-1
Требуемая динамическая грузоподъемность
 кН
где - см. п. 3.4.
5.1.6 Крепление конца каната
Выполняем прижимной планкой с полукруглой канавкой [2, табл. 8] для каната диаметром мм. Планка крепится винтом М из стали ( МПа.)
Натяжение каната в месте крепления[56]
,
где - коэффициент трения между канатом и барабаном, - угол обхвата барабана неприкосновенными витками; принимаем , [1, с.63].
Сила затяжки винта
,
где - число болтов в креплении, - коэффициент трения между канатом и планкой, - угол обхвата барабана витком крепления каната; принимаем[57]
, , [1, с.63].
Сила, изгибающая винт,

Суммарное напряжение в каждом винте[58]
,
где - коэффициент надежности крепления, - расстояние от головки винта до барабана, - внутренний диаметр резьбы винта; принимаем , мм, .
5.2 Литой барабан
Изготавливаем из серого чугуна ГОСТ (табл. П.4) с пределом прочности сжатия МПа.
Толщина стенки из расчета на сжатие
,
где - допускаемое напряжение; для чугуна .
Толщина[59]
стенки из условия технологии изготовления литых барабанов

Принимаем[60]
мм [3].
5.2.1 Эскизная компановка[61]
(рис. ).
По диаметру расточки мм (табл.П.9) выходного вала редуктора[62]
выбираем[63]
: , , , мм, , кН. Совмещаем на общей оси середину подшипника, зубчатого венца 1 вала редуктора и венца 2 барабана [2, табл.13].
Основные размеры[64]




принимаем мм.
Из компоновки , = , , , мм.
5.2.2 Прочность барабана
Рассматриваем барабан как балочку на шарнирно-подвижных опорах А и В, расположенных по середине ступиц барабана.
Реакции опор
 
 
Проверка 
Изгибающие моменты

Крутящие моменты

Эквивалентные моменты


Эквивалентное напряжение[65]
в стенке
 ,
где - эквивалентный момент сопротивления поперечного сечения барабана изгибу
,
где 
5.2.3 Прочность оси
Для изготовления принимаем сталь ГОСТ с пределом текучести МПа [ ].
Реакции опор


Проверка 
Изгибающие моменты


Расчетное напряжение[66]
 т
,
где - диаметр оси.
МЕХАНИЗМ ПЕРЕДВИЖЕНИЯ ТЕЛЕЖКИ
Последовательность расчета
1. Выбор схемы механизма, ее описание.
2. Выбор массы тележки, ходовых колес и определение сопротивления передвижению.
3. Выбор электродвигателя, редуктора, муфт, тормоза.
4. Проверка двигателя на пусковой режим и устойчивость процесса пуска.
5. Проверка двигателя на нагрев.
6. Расчет ходовых колес.
Если по условиям пуска получаются неприемлемые время пуска и ускорение, принять более мощный двигатель, проверить пригодность ранее принятых редуктора (по и ) и тормоза (по ).
Методика расчета
Задано: грузоподъемность (т), скорость передвижения ( ), режим работы.
1.
Схема[67]
механизма (рис.4).
Электродвигатель через муфту соединен с вертикальным редуктором ВК. Выходной вал редуктора муфтами и промежуточными валами соединен с ходовыми колесами.
2.
Сопротивление передвижению
Масса тележки [1. с. 13].
Наибольшая нагрузка на одно колесо

где - количество колес тележки; принимаем = 4.
Выбираем[68]
[1, табл.III.2.3] при заданной скорости передвижения  и режиме работы колесо : диаметр мм, допускаемая нагрузка кН, тип рельса . В опорах колеса установлены подшипники[69]
(табл.П.10) с внутренним диаметром мм; диаметр реборд мм (табл.П.10).
Сопротивление передвижению с номинальным грузом
, кН,
где - коэффициент трения в опорах колеса, - коэффициент трения качения колеса по рельсу, - коэффициент, учитывающий трение реборд о рельс, - уклон пути; принимаем [1, с.33], мм при мм и рельсе[70]
с головкой [1, табл.1.28], при подшипниках качения [1, с.33], [1, табл. 2.10].
3.
Выбор элементов привода
3.1 Электродвигатель
Статическая мощность привода
, кВт ,
где - КПД механизма передвижения; принимаем [1, табл. 1.18]. Выбираем[71]
[1, табл.ІІІ.3.5] двигатель : номинальная мощность при ПВ = % кВт, частота вращения мин-1
, максимальный (пусковой) момент  , момент инерции редуктора  , мощность при ПВ = 25% кВт, диаметр вала , высота центров мм [1, табл. ІІІ.3.6].
Условное обозначение: [1, с.38].
3.2. Редуктор
Частота вращения ходовых колес
, мин-1
Передаточное отношение привода

Минимально возможное суммарное межосевое расстояние редуктора

Выбираем[72]
[ ] редуктор : передающая мощность кВт при режиме работы, частота вращения мин-1
. передаточное число , диаметр входного вала мм [ ], диаметр выходного вала мм [ ].
Фактическая скорость передвижения
, 
3.3 Муфта на быстроходном валу
Номинальный момент на валу

Расчетный момент
,
где - коэффициент, учитывающий степень ответственности механизма, - коэффициент, учитывающий режим работы; принимаем [1, табл.1.35] , .
Выбираем[73]
муфту [ ]: номинальный момент  , момент инерции  , диаметр отверстий и мм.
3.4 Муфта на тихоходном валу
Расчетный момент
,
где - момент на валу редуктора.
,
где - КПД редуктора; принимаем . [1, табл. 1.18]
Выбираем муфту [ ] ;  ,  , , мм.
3.5 Тормоз
Максимально допустимое замедление при движении тележки без груза

где - число приводимых колес, - коэффициент сцепления ходовых колес с рельсами; принимаем , [1, с.33].
Время торможения

Сопротивление[74]
передвижению тележки без груза при торможении

Тормозной момент при движении без груза

Выбираем[75]
тормоз с тормозным моментом  , который следует отрегулировать до .
Рекомендуемая длина пути торможения [1, табл. 1.23],
где .
Фактическая длина пути торможения

4.
Проверка пускового режима двигателя
Максимально допустимое ускорение при пуске

где - минимально допустимое значение коэффициента запаса сцепления; принимаем [1, табл. 1.27].
Наименьшее допускаемое время пуска

Средний пусковой момент двигателя

где - минимальная кратность пускового момента; принимаем = [1, с.35].
Сопротивление передвижению при работе без груза

Статический момент при работе без груза

Момент инерции вращающихся масс привода

Фактическое время[76]
пуска при работе без груза

Фактическое ускорение[77]
при пуске и работе без груза

Фактический запас[78]
сцепления приводных колес с рельсами при работе без груза

5.
Проверка[79]
двигателя на нагрев
Статический момент на валу двигателя при номинальной нагрузке

Коэффициент перегрузки двигателя

Перегрузочная способность двигателя

Момент инерции движущихся масс, приведенный к валу двигателя

Время пуска

где - относительное время пуска[80]
; принимаем при и [ ], .
Среднее время рабочей операции
,
где - средний путь[81]
передвижения тележки.
Расчетный коэффициент .
Эквивалентная по нагреву мощность[82]
при ПВ = 25%.

где - коэффициент, учитывающий относительную продолжительность включения, - коэффициент[83]
влияния пускового момента на эквивалентную мощность; принимаем [1, табл. 1.32] при режиме работы, при [1, рис. 1.6, кривая ].
6.
Узел ходовых колес
Нагрузка[84]
на одно колесо

Расчетная нагрузка

где - коэффициент режима работы, - коэффициент, учитывающий переменность нагрузки; принимаем [5, табл. 34],

Напряжение смятия [5, с. 116]
Подшипники опор[85]
.
СПИСОК ЛИТЕРАТУРЫ
1. Кузьмин А.В., Марон Ф.Л. Справочник по расчетам механизмов подъемно-транспортных машин.-Мн.: Высшая школа, 1983-350 с., ил.
2. Погорелов С.В. Методические указания по конструктированию узлов тележки электромостового крана – Запорожье: ЗИИ, 1990-72 с., ил.
3. ГОСТ 6636-69 «Нормальные линейные размеры».
4. Перель Л.Я. Подшипники качения. Справочник – М.: Машиностроение, 1983-543 с., ил.
5. Расчеты грузоподъемных и транспортирующих машин. Иванченко Ф.К. и др. – К.: Выща школа, 1978-576 с., ил.
ПРИЛОЖЕНИЕ
Таблица П.1
Размеры канатных блоков, мм
| Диаметр каната |
Диаметр по дну канавки |
Длина ступицы |
Диаметр каната |
Диаметр по дну канавки |
Длина ступицы |
| От 11 до 14 |
320-400
450
|
60
70
|
Свыше 14 до 20 |
320, 400, 450
500, 560, 630
|
70
80
|
Таблица П.2
Крюки однорогие (ГОСТ 6627-74)
Таблица П.3
Толщина серьги
Грузоподъемность , т |
5.0 |
6.3 |
8.0 |
10.0 |
12.5 |
16.0 |
20 |
25 |
Толщина серьги , мм |
10 |
12 |
14 |
16 |
16 |
18 |
20 |
24 |
Таблица П.4
Механические свойства материалов, МПа
| Материал |
Предел прочности  |
Предел текучести  |
Предел выносливости  |
| СЧ 15-32 |
150 |
- |
- |
| СЧ 18-36 |
180 |
- |
- |
| ГОСТ 1050-74 |
| 20 |
420…500 |
250 |
170…220 |
| 45 |
610…750 |
360 |
250…340 |
| ГОСТ 4543-61 |
| 40 |
730…1050 |
650…900 |
320…480 |
| ГОСТ 380-60 |
| Ст 3 |
380…470 |
210…240 |
- |
| Ст 5 |
500…620 |
260…280 |
- |
Таблица П.5
Запас прочности .
| Тип крана |
Режим работы |
| Легкий |
Средний |
Тяжелый |
| Крюковой |
1.4 |
1.6 |
1.7 |
| Магнитный |
1.3 |
1.5 |
1.6 |
Таблица П.6
Муфты зубчатые с тормозным шкивом
| Параметры |
Диаметр тормозного шкива, мм |
| 200 |
300 |
400 |
500 |
| Предельный момент [Т], Нм |
700 |
3150 |
5600 |
8000 |
Момент инерции ,
кг м2
|
0.0763 |
0.471 |
1.375 |
3.56 |
Диаметр отверстия, мм
шкива 
полумуфты 
|
50…69.5
40…55
|
50…69.5
40…55
|
60…89.5
55
|
90
65
|
Таблица П.7
Муфта зубчатая типа МЗП ГОСТ 5006-55
| Номер муфты |
Диаметр отверстия полумуфты, не более, мм |
Предельный момент [Т],
Н . м
|
Момент инерции 
кг . м2
|
Зубчатой  |
 |
| 1 |
40 |
60 |
700 |
0.061 |
| 2 |
50 |
70 |
1400 |
0.1195 |
| 3 |
60 |
90 |
3150 |
0.2215 |
| 4 |
75 |
100 |
5600 |
0.458 |
| 5 |
90 |
120 |
8000 |
0.891 |
Таблица П.8
Масса и подъемная сила электромагнитов
| Тип электромагнита |
Масса , т |
Подъемная сила , кН |
| М22 |
0.55 |
60.0 |
| М42 |
1.56 |
160.0 |
| М62 |
5.20 |
300.0 |
| М62 Б |
3.50 |
200.0 |
| ПМ 15 |
1.55 |
100.0 |
Таблица П.9
Диаметр и предельная консольная нагрузка выходного вала редуктора типа Ц2
Суммарное межосевое расстояние , мм |
Диаметр , мм |
Консольная нагрузка ’ (кН) при режиме работы |
| Легкий |
средний |
тяжелый |
| 250 |
75 |
12 |
18 |
12.5 |
| 300 |
80 |
20 |
22.5 |
14 |
| 350 |
110 |
32 |
25 |
18 |
| 400 |
110 |
32 |
25 |
20 |
| 500 |
150 |
50 |
40 |
25 |
| 650 |
160 |
63 |
71 |
45 |
| 750 |
200 |
100 |
125 |
63 |
Таблица П.10
Подшипники радиальные сферические двухрядные опор ходовых колес
Диаметр колеса  |
160 |
200 |
250 |
320 |
400 |
500 |
560 |
630 |
| Подшипник |
1607 |
1609 |
3610 |
3612 |
3616 |
3620 |
3622 |
3624 |
Диаметр реборд колеса , мм |
190 |
230 |
290 |
360 |
450 |
550 |
600 |
680 |
Таблица П.11
Редуктор типа ВКН
| Типоразмер редуктора |
Диаметр быстроходного вала |
Передаточное число |
Максимальная мощность (кВт) на быстроходном валу при разных режимах работы |
мин-1 |
мин-1 |
| л |
с |
т |
л |
с |
Т |
| ВКН-280 |
25 |
10 |
4.3 |
2.0 |
1.8 |
6.0 |
2.0 |
1.9 |
| 16 |
3.0 |
1.4 |
1.2 |
4.0 |
1.7 |
1.5 |
| 31.5 |
1.4 |
1.0 |
0.9 |
1.9 |
1.0 |
0.9 |
| 50 |
0.9 |
0.7 |
0.6 |
1.0 |
0.8 |
0.7 |
| ВКН-320 |
25 |
12.5 |
6.5 |
3.1 |
2.7 |
8.1 |
3.4 |
3.0 |
| 20 |
3.6 |
2.4 |
1.8 |
5.6 |
2.8 |
2.2 |
| 40 |
2.5 |
1.7 |
1.2 |
2.8 |
1.8 |
1.2 |
| 63 |
1.2 |
0.9 |
0.7 |
1.7 |
1.1 |
0.7 |
| ВКН-420 |
25 |
16 |
7.8 |
5.0 |
4.8 |
9.1 |
6.0 |
6.5 |
| 25 |
5.0 |
3.5 |
3.0 |
6.1 |
4.9 |
4.4 |
| 50 |
2.8 |
2.1 |
1.6 |
3.5 |
2.8 |
2.2 |
| 80 |
2.3 |
1.8 |
1.3 |
3.1 |
2.2 |
1.7 |
| 125 |
1.6 |
1.2 |
1.0 |
1.7 |
1.4 |
1.2 |
| ВКН-480 |
30 |
20 |
11.7 |
7.3 |
4.8 |
14.4 |
9.0 |
6.3 |
| 31.5 |
8.3 |
5.0 |
4.0 |
10.3 |
6.6 |
4.8 |
| 63 |
4.7 |
3.4 |
2.5 |
5.9 |
4.1 |
3.0 |
| 100 |
3.3 |
3.3 |
2.2 |
4.1 |
3.0 |
2.7 |
| ВНК-560 |
35 |
20 |
19.9 |
13.3 |
9.7 |
23.1 |
16.6 |
12.1 |
| 25 |
15.5 |
10.6 |
8.2 |
21.9 |
14.1 |
10.3 |
| 40 |
10.7 |
7.8 |
6.5 |
13.9 |
10.0 |
7.9 |
| 50 |
8.8 |
6.5 |
5.5 |
12.1 |
8.6 |
6.7 |
| 50 |
5.9 |
4.4 |
3.9 |
7.8 |
5.5 |
4.8 |

Рисунок П.2 Эскизная компоновка подвески (а), расчетные схемы (б, в, г) и схемы подвесок типа 1 (А), 2 (Б), 3 (В), 4 (Г): 1-ось блоков, 2-блок, 3-серьга, 4-траверса.
Рисунок П.5 Типовые графики загрузки механизма подъема груза: а, б, в – соответственно для легкого, среднего и тяжелого режимов работы
Рисунок П.6 График загрузки электродвигателя механизма подъема в течении цикла

Рисунок П.7 Механизмы передвижения тележки с центральным расположением редуктора типа ВК (а) и ВКН (б): 1-электродвигателб, 2-муфта с тормозным шкивом, 3-вертикальный редуктор, 4-муфта, 5-ходовое колесо, 6-рельс, 7-тормозной шкив.
[1]
В схеме на рис. 1 показать свой вариант полиспаста. Схема механизма подъема и варианты полиспастов приведены на рис. П.1.
[2]
Эта формула справедлива при . При других значениях количество слагаемых в числителе равно кратности полиспаста.
[3]
Указать, при каком режиме работы. Выбрать канат по условию желательно при маркировочных группах 1568 и 1764 МПа.
[4]
Выбрать из ряда 260, 335, 400 и 510 мм, по условию 
[5]
Для стали по стали  МПа
[6]
Для метрической резьбы из конструктивных соображений 
[7]
Для механизма подъема , передвижения 
[8]
Выбрать по условиям (крюка), 
[9]
На рис. 2 показать свой вариант подвески (рис.П.2), расчетные схемы элементов и эпюры механизмов
[10]
Рассчитать для заданной подвески. Размеры принять по ГОСТ 6636-69 [3]
[11]
Здесь - диаметр шейки крюка
[12]
Длина зависит от типа крюковой подвески (рис.2): с одной стороны , с другой для третьего и четвертого типа подвесок здесь надо разместить блоки; принимать зазор между блоками , между блоками и серьгой мм.
[13]
Указать для какого крана принимаем « »
[14]
При отсутствии заедания = 60…65 МПа
[15]
Принять большее значение [3]. Для подвески II типа – кратное «5».
[16]
Можно применять тот же материал, что для траверсы. Если принята другая сталь, привести расчет 
[17]
Рассчитать для заданного типа подвески. Привести расчетную схему.
[18]
Расчет выполнить для наибольшего момента; результат округлить до кратного пяти.
[19]
Согласовать размерность скорости и диаметров
[20]
Если мин-1
, расчет выполнить при 10 мин-1
.
[21]
Указать при каком режиме работы и сроке службы в часах
[22]
Выбрать при условиях . Или d=dц
для подвески II типа.
[23]
См. расчет траверсы
[24]
Здесь - больше из и 
[25]
Указать, что находится в контакте с серьгой
[26]
Указать при каких подшипниках.
[27]
Выбрать двигатель MTF [1, табл.ІІІ, 3.5] или МТН [2, табл.2]. По условию (ближайшее меньшее). Для легкого режима принять ПВ = 15, среднего 25, тяжелого 40%
[28]
Диаметр барабана - см. п.2.5. Согласовать размерности скорости и диаметров.
[29]
Выбрать редуктор Ц2 [1, табл.ІІІ. 4.2], [2, табл.4] или типа РМ. По условиям , , - ближайшее большее к 
[30]
Если условие не выполняется, принять более мощный редуктор. Здесь указать «удовлетворяет» или «не удовлетворяет».
[31]
Допускается .
[32]
Выбрать тормоз ТКГ [1, табл. ІІІ.5.13] или ТКТ [1, табл. ІІІ.5.11]. По условию .
[33]
Выбрать по условию , диаметр согласовать с диаметром муфты с тормозным шкивом, с валом редуктора.
[34]
Выбрать по условию , диаметр согласовать с диаметром вала двигателя.
[35]
Выбирать по условию .
[36]
Значения относительной массы приведены на оси ординат (рис. П. 5).
[37]
На рис. 1.2 выбрать кривую, соответствующую .
[38]
Рассчитать аналогично для масс и ,ТП
, ТОП
, J
.
[39]
Принимать 
[40]
Рассчитать аналогично при и , t
П
, t
ОП
.
[41]
Если , двигатель удовлетворяет условию нагрева
[42]
Сравнить с рекомендуемым [1, табл.1.25]. Для магнитных кранов . Здесь t – меньшее из времени пуска (tП
).
[43]
Значение и - см. п.4.3.
[44]
Значение , см. п.2
.3
Определяется по осям крайних блоков крюковой подвески
[46]
Выбрать длину L из ряда 1200, 1300, 1420, 1800 и 2300 мм по условию L³L’
[47]
Здесь F – см. п.2.
[48]
Принять большее из двух значений
[49]
См. рис. П.3. Выполнить в масштабе на миллиметровке.
[50]
Выбрать шарикоподшипник [2, табл. 9] или роликоподшипник [2, табл. 10].
[51]
Размеры l
3
, l
9
, b
2
– см. выбор редуктора, толщина буртика a
1
=5…15 мм.
1
См. п. 2
[53]
Определяется по наибольшему 
[54]
Эквивалентная и приведенная нагрузка определяются по методике п. 3.4. Здесь , для роликоподшипника.
[55]
Согласовать размерности скорости и диаметров.
[56]
Здесь - см. п.2.
[57]
Число планок не менее двух .
[58]
Принять - см. рис. 2.5. [1]. Если  , увеличить число планок .
[59]
В этом случае толщина д.б. не менее 12 мм
[60]
Принять большее из двух значений
[61]
Компоновку выполнить в масштабе. Эскиз барабана – см. рис. П.4
[62]
Указать тип редуктора (см. п.4.2)
[63]
Выбрать шарико- или роликоподшипник [2, табл. 9 или 10].
[64]
Размеры и - см. выбор редуктора, зазор мм, С – см. [2, табл. 12].
[65]
Определяется по большему .
[66]
Здесь М – большее значение из и .
[67]
Здесь рассматривается механизм с редуктором ВК (см. рис. П.7, а). Можно применить механизм с редуктором ВКН (навесного типа) – см. рис. П.7, б.
[68]
Выбрать при скорости .
[69]
Указать вид подшипника.
[70]
Указать, с плоской или выпуклой головкой
[71]
Выбрать по условию 
[72]
Выбрать в зависимости от применяемой схемы механизме редуктора ВК [ 5, прил.LXIV] или ВКН (табл.П.11 или [5, прил.LXII] по условиям , - ближайшее к передаточному отношению , диаметр выходного вала [2, табл.27 или 28], [5, прил. LXI или LXIII].
[73]
Выбрать по условию , диаметры согласовать с диаметрами двигателя и редуктора [1, табл. III.5.6]. (табл. П.6, П.7).
[74]
Это случай крана с грузовым электромагнитном; для крана без магнита .
[75]
Можно выбрать тормоз ТКТ [1, табл. ІІІ.5.11] или ТКГ [1, табл. ІІІ.5.13] по условию .
[76]
Сравнить с рекомендуемым [1, табл. 1.19]. Если результат существенно отличается, принять более мощный двигатель и повторить расчет по п.4. Затем проверить пригодность ранее принятого редуктора и тормоза.
[77]
Сравнить с .
[78]
Сравнить с ранее принятым .
[79]
По методике номинального режима работы [5. с.112]. Можно выполнить по методике, рассмотренной в разделе «Механизм подъема».
[80]
Выбрать по [1, рис. 1.4 или 1.5].
[81]
Принимаем м.
[82]
Сравнить и принятого двигателя. Если , двигатель удовлетворяет условием нагрева.
[83]
По [1, рис. 1.16] указать по какой кривой определяется .
[84]
См.п.2
[85]
Выполнить проверку аналогично п.5.1.5 «Механизм подъема»
|