| Міністерство освіти і науки України
Сумський державний університет
МЕТОДИЧНІ ВКАЗІВКИ
до виконання контрольної роботи
з курсу "Основи охорони праці
"
для студентів усіх спеціальностей заочної форми навчання
Укладач А.Ф. Денисенко
Відповідальний за випускЛ.Д. Пляцук
Декан заочного факультетуВ.Я. Стороженко
Суми Вид-во СумДУ 2005
Зміст
1. Місце і значення навчальної дисципліни
2. Методичні вказівки до виконання контрольної роботи
3. Програма курсу
4. Контрольні питання за програмою курсу
5. Задачі з курсу
Додатки
Список літератури
1
.
Місце і значення навчальної дисципліни
"Основи охорони праці" - нормативна дисципліна, яка вивчається у вищих закладах освіти з метою формування у майбутніх спеціалістів чи магістрів необхідного їм у подальшій професійній діяльності рівня знань та вмінь з правових та організаційних питань охорони праці, з питань гігієни праці, виробничої санітарії, техніки безпеки та пожежної безпеки, визначених відповідними державними стандартами освіти, а також формування активної позиції щодо практичної реалізації принципу пріоритетності охорони життя та здоров'я працівників відносно результатів виробничої діяльності.
2. Методичні вказівки до виконання контрольної роботи
Контрольна робота складається з відповідей на чотири теоретичні питання і розв’язання чотирьох задач. Кожне питання і кожна задача мають десять варіантів (1,2,3,4,5,6,7,8,9,0). Контрольне питання виконується за варіантом, номер якого збігається з передостанньою цифрою шифру студента. Контрольна задача розв’язується за варіантом, номер якого збігається з останньою цифрою навчального шифру студента.
Вивчення курсу "Основи охорони праці" здійснюється за рекомендованим підручниками та нормативними документами, включаючи дані методичні вказівки та матеріали оглядових лекцій. При вивченні курсу бажано коротко конспектувати основні положення. Послідовність вивчення дисципліни викладена в програмі.
3. Програма курсу
Курс "Основи охорони праці" складається з чотирьох розділів:
1 Правові та організаційні питання охорони праці.
2 Основи фізіології, гігієни праці та виробничої санітарії.
3 Основи техніки безпеки.
4 Пожежна безпека.
Детальний зміст дисципліни має такий вигляд:
| Пор.
ном.
|
Найменування розділу, теми
|
Обсяг, годин
|
Посилання на літ.
|
| Вступ. Значення питань охорони праці. Зміст курсу "Основи охорони праці". Зв’язок курсу з профілюючими дисциплінами, ергономікою, психологією праці, фізіологією, досягнення науки і техніки у галузі охорони праці. Технічний прогрес і охорона праці. Небезпечні та шкідливі виробничі фактори. Класифікація причин травматизму та профзахворювань
|
0,5
|
| 1
|
Правові та організаційні питання охорони праці
|
1,5
|
2
|
[1,c.5-29]
|
| 1.1
|
Законодавча та нормативна база України про охорону праці. Основні керівні матеріали в галузі ОП
|
| 1.2
|
Державне управління охороною праці та організація ОП на виробництві
|
| 1.3
|
Навчання з питань ОП
|
| 1.4
|
Державний нагляд та громадський контроль в галузі ОП
|
| 1.5
|
Розслідування та облік нещасних випадків, профзахворювань та аварій на виробництві
|
| 1.6
|
Аналіз, прогнозування, профілактика травматизму та профзахворювань на виробництві
|
| 2
|
Основи фізіології гігієни праці та виробничої санітарії
|
12
|
3
|
[1, c.30-100; 2, c.5-45]
|
| 2.1
|
Загальні положення. Відповідальність за невиконання санітарних норм умов праці та проживання населення. Праця з використанням засобів обчислювальної техніки. Загальний підхід до оцінки умов праці та забезпечення умов праці, що відповідають нормативним
|
1
|
| 2.2
|
Повітря робочої зони. Основні параметри мікроклімату. Нормування параметрів мікроклімату (ГОСТ 12.1.005-88). Причини та характер забруднення повітряного середовища у виробничих умовах. Класифікація шкідливих факторів, що забруднюють повітряне середовище. Профзахворювання та отруєння від дії шкідливих речовин у повітрі виробничих приміщень. Допустимі концентрації шкідливих домішок у повітрі робочої зони (ГОСТ 12.1.005-88). Заходи щодо оздоровлення повітряного середовища
|
| 2.3
|
Вентиляція виробничих приміщень. Технічні та санітарно-гігієнічні вимоги до систем вентиляції. Принципи улаштування природної та механічної вентиляції. Припливна та витяжна вентиляція, кондиціонування повітря. Улаштування місцевої вентиляції. Принципи розрахунку систем вентиляції. Очищення повітря від пилу та газів. Гравітаційні, центробіжні, інерційні пиловіддільники. Фільтри пористі, масляні, електричні, ультразвукові. Експлуатація вентиляційних систем. Системи опалення та вимоги до них. Вимірювання параметрів мікроклімату, вміст шкідливих газоподібних речовин у повітрі, запиленість. Засоби індивідуального захисту очей та органів дихання: фільтрувального типу, ізолюючого типу. Спецодяг. Газотеплозахисні костюми. Захисні пасти
|
2
|
| 2.4
|
Освітлення виробничих приміщень. Види та системи виробничого освітлення. Вимоги до виробничого освітлення. Джерела штучного освітлення. Вимоги техніки безпеки до світлотехнічних виробів. Нормування та розрахунок штучного освітлення (СНиП ІІ-4-79). Улаштування природного освітлення. Нормування та розрахунок природного освітлення (СниП ІІ-4-79). Засоби індивідуального захисту органів зору. Експлуатація освітлювальних установок. Контроль освітлення у виробничих умовах
|
2
|
| 2.5
|
Вібрація. Основні джерела вібрацій. Причини виникнення, фізичні характеристики вібрацій. Основні рівняння: процес коливання, відношення між силовим впливом та амплітудою віброшвидкості. Дія вібрації на людину, вібраційна хвороба. Санітарно-гігієнічні та технічні норми вібрацій (ГОСТ 12.1.012-90). Загальні методи боротьби із шкідливим впливом вібрації. Організація праці робітників вібронебезпечних професій. Засоби індивідуального захисту від шкідливого впливу вібрацій. Вимірювання вібрацій та вібровимірювальна апаратура
|
2
|
| 2.6
|
Шум, ультразвук та інфразвук. Основні джерела шуму. Звуковий тиск та інтенсивність звуку; зв’язок рівня звукового тиску з рівнем інтенсивності. Частота звуку. Класифікація шумів. Дія шуму на організм людини. Нормування постійних та непостійних шумів (ГОСТ 12.1.003-83). Шумові характеристики машин. Акустичні принципи проектування цехів. Захисні заходи
|
2
|
| 2.7
|
Іонізуюче випромінювання. Види, біологічний вплив. Норми радіаційної безпеки. Засоби індивідуального захисту від іонізуючого випромінювання. Дозиметричний контроль
|
1
|
| 2.8
|
Електромагнітні поля, електромагнітні випромінювання. Нормування електромагнітних полів (ГОСТ 12.1.006-84). Методи захисту від їх впливу. Особливості впливу та нормування постійних електромагнітних та електричних полів. Захист від лазерного випромінювання. Засоби індивідуального захисту від електромагнітних полів
|
1
|
| 2.9
|
Випромінювання оптичного діапазону. Дія на організм людини. Нормування, заходи захисту. Перша допомога при ураженні лазерним випромінюванням
|
| 2.10
|
Загальні санітарно-гігієнічні вимоги до розміщення підприємств, виробничих та допоміжних приміщень. Санітарно-захисна зона. Розміщення виробничих будівель на території промислового підприємства
|
| 3
|
Основи техніки безпеки
|
4
|
1
|
[2, c.46-77; 3, с. 380-406]
|
| 3.1
|
Загальні вимоги безпеки до технологічного обладнання та процесів. Вимоги безпеки. Небезпечні зони обладнання. Основні вимоги безпеки, що ставляться до експлуатації машин
|
| 3.2
|
Безпека при експлуатації систем під тиском та кріогенної техніки. Герметичні установки
|
| 3.3
|
Безпека вантажопідйомних робіт і робіт на транспорті
|
| 3.4
|
Електробезпека. Електромагнетизм в промисловості. Дія електричного струму на людину та види ураження. Види електричних мереж. Заходи з електробезпеки. Засоби індивідуального захисту від ураження електричним струмом
|
| 4
|
Пожежна безпека
|
2
|
[2, c.78-93]
|
| 4.1
|
Основні поняття та значення пожежної безпеки. Основні нормативні документи. Причини пожеж
|
| 4.2
|
Пожежонебезпечні властивості матеріалів та речовин. Поняття про процес горіння. Параметри, що визначають пожежну небезпеку газів, рідин та твердих речовин. Причина та характер пожеж на підприємствах машинобудівної промисловості
|
| 4.3
|
Пожежовибухонебезпечність об’єкта. Відповідність зовнішнього та внутрішнього протипожежного водопостачання. Норми
|
| 4.4
|
Системи запобігання пожеж. Пожежна безпека вогневих робіт
|
| 4.5
|
Система пожежного захисту. Основні заходи з профілактики пожеж. Класифікація виробництв за пожежною небезпекою. Вогнегасні речовини та засоби пожежогасіння. Особливості гасіння електричного обладнання, що знаходиться під напругою
|
| 4.6
|
Система організаційно-технічних заходів. Організація пожежної охорони промислового підприємства. Відомча пожежна охорона
|
| 5
|
Економічні питання охорони праці
|
| Всього
|
20
|
6
|
4. Контрольні питання за програмою курсу
Блок питань 1
1 Значення питань охорони праці в суспільстві.
2 Нормування та контроль у галузі охорони праці. Система стандартів безпеки праці.
3 Історія розвитку наукових основ охорони праці.
4 Навчання працівників безпечних способів праці. Зміст та види інструктажів, хто і коли їх проводить.
5 Нещасні випадки, що пов’язані з виробництвом. Порядок їх розслідування, спеціальне розслідування.
6 Порядок розслідування професійних захворювань.
7 Причини виробничого травматизму, методи його аналізу, показники травматизму.
8 Відповідальність власника за невиконання нормативних вимог охорони праці. Державний нагляд та громадський контроль.
9 Закон України «Про охорону праці».
0 Закон України «Про обов’язкове державне соціальне страхування від нещасних випадків на виробництві та професійних захворювань, що спричинили втрату працездатності».
Блок питань 2
1 Причини забруднення і характер впливу повітря робочої зони на працівників. Нормування вмісту шкідливих речовин в повітрі.
2 Метеорологічні умови у виробничих приміщеннях. Нормування параметрів мікроклімату.
3 Принцип улаштування і розрахунок природної вентиляції.
4 Принцип улаштування і розрахунок штучної вентиляції.
5 Нормування і розрахунок природного освітлення.
6 Фізичні та фізіологічні параметри шуму. Дія на організм людини. Методи нормування.
7 Параметри, які характеризують вібрацію. Дія на організм людини. Нормування.
8 Методи захисту від шуму та вібрації.
9 Характеристика, дія на організм людини, нормування та захист від електромагнітних полів.
0 Характеристика, дія на організм людини, нормування та захист від іонізуючого випромінювання.
Блок питань 3
1 Фактори, які визначають наслідки ураження електричним струмом людини. Види уражень.
2 Сутність захисного заземлення, норми допустимого опору, порядок розрахунку.
3 Сутність та улаштування занулення, сфера застосування та вимоги до нього.
4 Явища, які виникають при стіканні електричного струму в землю. Напруга кроку та дотику.
5 Основні ізолювальні електрозахисні засоби для роботи в електроустановках. Правила користування та терміни випробувань.
6 Класифікація приміщень за ступенем небезпеки ураження електричним струмом.
7 Аналіз небезпеки ураження людини в існуючих електричних мережах.
8 Надання першої допомоги людині при ураженні її електричним струмом.
9 Безпека експлуатації герметичних систем, що працюють під тиском.
0 Небезпечні зони устаткування. Класифікація та призначення засобів захисту.
Блок питань 4
1 Параметри, що визначають пожежну небезпеку горючих газів, рідин та твердих речовин.
2 Поняття про процеси горіння та вибуху.
3 Класифікація приміщень за ступенем вибухопожежонебезпеки у відповідності до Правил улаштування електроустановок (ПУЕ).
4 Класифікація приміщень за ступенем пожежної небезпеки у відповідності до ОНТП 24-86.
5 Пожежна профілактика при проектуванні і будівництві промислових підприємств.
6 Вогнегасні речовини та засоби пожежогасіння.
7 Основні методи пожежогасіння.
8 Протипожежні вимоги щодо забезпечення вимушеної евакуації людей з будівель.
9 Організація пожежної охорони промислових підприємств.
0 Улаштування і розрахунок блискавкозахисту будівель і споруд.
6. Задачі з курсу
Задача 1
Оцінити ефективність природної вентиляції приміщення економічного відділу. Вихідні дані взяти за варіантом, номер якого збігається з останньою цифрою шифру студента.
Таблиця 6.1 – Вихідні дані до задачі 1
| Показник
|
Варіант
|
| 1
|
2
|
3
|
4
|
5
|
6
|
7
|
8
|
9
|
0
|
| Габарити приміщення:
|
| - довжина
|
8,0
|
7,0
|
7,8
|
7,4
|
7,2
|
8,6
|
7,2
|
7,9
|
8,0
|
7,4
|
| - ширина
|
6,0
|
5,8
|
5,4
|
6,0
|
5,0
|
5,4
|
5,8
|
6,4
|
6,2
|
5,6
|
| - висота
|
3,2
|
3,5
|
3,0
|
3,4
|
3,2
|
3,6
|
4,0
|
3,8
|
4,0
|
3,2
|
| Кількість працюючих
|
5
|
4
|
4
|
5
|
3
|
6
|
5
|
6
|
6
|
4
|
| Розмір кватирки, Fкв
, м2
|
0,25
|
0,3
|
0,23
|
0,25
|
0,24
|
0,27
|
0,21
|
0,24
|
0,23
|
0,26
|
| Розмір дверей Sдв
, м2
|
1,6
|
1,8
|
2,0
|
1,65
|
1,68
|
1,7
|
1,85
|
1,89
|
1,75
|
1,6
|
| Висота від центру дверей до центру кватирки
|
1,7
|
2
|
1,5
|
1,9
|
1,7
|
1,9
|
2,2
|
2,0
|
1,9
|
1,7
|
Вказівки до розв’язання задачі
Якщо об’єм робочого приміщення, що припадає на кожного працюючого, менше 20 м3
, необхідний повітрообмін повинен складати не менше L' = 30 м3
/год на одну особу. При об’ємі 20 м3
і більше на одного процюючого повітрообмін повинен складати не менше L' = 20 м3
/год. При об’ємі 40 м3
і більше на одного працюючого за наявності в приміщенні вікон та дверей повітрообмін не лімітується.
Таким чином, необхідний повітрообмін Lн
обчислюється за формулою
,м3
/год,(6.1)
де n - кількість працюючих.
Фактичний повітрообмін у відділі здійснюється за допомогою природної вентиляції як неорганізовано – через різні нещільності у віконних і дверних прорізах, так і організовано - через кватирку у віконному прорізі.
Фактичний повітрообмін Lф
, м3
/год, обчислюється за формулою
,(6.2)
де Fкв
- площа кватирки, через яку буде виходити повітря, м2
;
Vп
- швидкість виходу повітря через кватирку, м/с. Її можна розрахувати за формулою
,(6.3)
де g - прискорення вільного падіння, g =9,8 м/с;
∆Н2
- тепловий напір, під дією якого буде виходити повітря з кватирки, кг/м2
:
,(6.4)
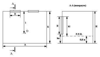
де h2
- висота від площини рівних тисків до центру кватирки (рис. 6.1).
Її можна визначити з наступного співвідношення: відстані від площини рівних тисків до центрів нижніх і верхніх прорізів відповідно h1
та h2
, обернено пропорційні квадратам площ цих прорізів Sдв
та Fкв
, тобто
.
З геометричних розмірів приміщення h1
+h2
=h,
де h – висота між центрами нижніх та верхніх прорізів.
Таким чином, з системи двох рівнянь з двома невідомими знаходимо h2
(дивись рис. 6.1).

Рисунок 6.1 – Схема розрахунку природної вентиляції
γз
та γвн
- відповідно об'ємна вага повітря зовні та всередині приміщення, кГс/м3
.
Об'ємна вага повітря визначається за формулою
,(6.5)
де Рб
- барометричний тиск, мм рт.ст., в розрахунках береться таким: Рб
= 750 мм рт.ст.;
Т - температура повітря у градусах Кельвіна.
Для економічного відділу, в якому виконується легка робота відповідно до ГОСТу 12.1.005-88 для теплого періоду року, температура повітря повинна бути не вище +28˚С, або T=301 К, для холодного періоду року відповідно t=17˚С, або T=290 К.
Для повітря зовні приміщення температура визначається за СНиП 2.04.05-91:
для теплого періоду: t = 24˚С, T = 297 К;
для холодного періоду: t = -11˚С, T = 262 К.
Визначивши фактичний повітрообмін і порівнявши його з необхідним, можна зробити висновок про ефективність природної вентиляції у відділі. Якщо виявиться, що вона не ефективна, тобто Lф
< Lн
, або Lф
набагато більше Lн
, необхідно дати рекомендації з поліпшення вентиляції і перевірити їх дієвість розрахунками. Зокрема, якщо у холодному періоді року фактичний повітрообмін набагато перевищує необхідний, що може викликати переохолодження працюючих, можна рекомендувати скорочення часу провітрювання приміщення пропорційно перевищенню фактичного повітрообміну над необхідним.
Задача 2
Перевірити достатність природного освітлення у відділі. Вихідні дані наведені у таблиці 6.2.
Таблиця 6.2 – Вихідні дані до задачі 2
| Показник
|
Варіант
|
| 1
|
2
|
3
|
4
|
5
|
6
|
7
|
8
|
9
|
0
|
| Габарити приміщення:
|
| - довжина
|
8,0
|
7,0
|
7,8
|
7,4
|
7,2
|
8,6
|
7,2
|
7,9
|
8,0
|
7,4
|
| - ширина
|
6,0
|
5,8
|
5,4
|
6,0
|
5,0
|
5,4
|
5,8
|
6,4
|
6,2
|
5,6
|
| - висота
|
3,2
|
3,5
|
3,0
|
3,4
|
3,2
|
3,6
|
4,0
|
3,8
|
4,0
|
3,2
|
| Розміри віконного прорізу
- висота
|
2,5
|
2,0
|
1,8
|
2,1
|
1,9
|
2,4
|
2,8
|
2,6
|
2,5
|
2,2
|
| - ширина
|
2,0
|
1,6
|
2,0
|
2,3
|
1,5
|
2,2
|
2,0
|
2,4
|
2,0
|
1,8
|
| Кількість вікон
|
2
|
3
|
2
|
2
|
3
|
2
|
2
|
2
|
3
|
3
|
| Висота від підлоги до підвіконня, м
|
0,8
|
1,2
|
1,0
|
0,8
|
0,9
|
0,7
|
0,7
|
0,75
|
0,8
|
0,8
|
| Вікна розташовані вздовж
більшої стіни
|
+
|
+
|
+
|
+
|
+
|
+
|
| меншої стіни
|
+
|
+
|
+
|
+
|
| Середньозважений коефіцієнт відбиття внутрішніх поверхонь
|
0,5
|
0,4
|
0,4
|
0,4
|
0,5
|
0,5
|
0,4
|
0,5
|
0,4
|
0,4
|
| Найбільша відстань від вікна робочого місця, м
|
5
|
6
|
4,4
|
6,6
|
6
|
4
|
6
|
5,4
|
5
|
4,5
|
Таблиця 6.3 – Значення коефіцієнта r1
при боковому однобічному освітленні
| Відношення глибини приміщення до висоти від рівня умовної робочої поверхні до верху вікна
|
Відношення відстані розрахункової точки від зовнішньої стіни до глибини приміщення
|
Середньозважений коефіцієнт відбиття стелі, стін, підлоги, rср
|
| rср
= 0,5
|
rср
= 0,4
|
| Відношення довжини приміщення до його глибини
|
| 0,5
|
1
|
2 і більше
|
0,5
|
1
|
2 і більше
|
| 1
|
2
|
3
|
4
|
5
|
6
|
7
|
8
|
| Від 1 до 1,5
|
0,1
|
1,05
|
1,05
|
1,05
|
1,05
|
1,05
|
1
|
| 0,5
|
1,4
|
1,3
|
1,2
|
1,2
|
1,15
|
1,1
|
| 1
|
2,1
|
| Від 1,5 до 2,5
|
0,1
|
1,05
|
1,05
|
1,05
|
1,05
|
1,05
|
1,05
|
| 0,3
|
1,3
|
1,2
|
1,1
|
1,2
|
1,15
|
1,1
|
| 0,5
|
1,85
|
1,6
|
1,3
|
1,5
|
1,35
|
1,2
|
| 0,7
|
2,45
|
2,15
|
1,7
|
2,0
|
1,7
|
1,4
|
| 1
|
3,8
|
3,3
|
2,4
|
2,8
|
2,4
|
1,8
|
| Від 2,5 до 3,5
|
0,1
|
1,1
|
1,05
|
1,05
|
1,05
|
1,1
|
1
|
| 0,2
|
1,15
|
1,1
|
1,05
|
1,1
|
1
|
1
|
| 0,3
|
1,2
|
1,65
|
1,1
|
1,15
|
1,1
|
1
|
| 0,4
|
1,35
|
1,25
|
1,2
|
1,2
|
1,15
|
1,1
|
1
|
2
|
3
|
4
|
5
|
6
|
7
|
8
|
| 0,5
|
1,6
|
1,45
|
1,3
|
1,35
|
1,25
|
1,2
|
| 0,6
|
2
|
1,75
|
1,45
|
1,6
|
1,45
|
1,3
|
| 0,7
|
2,6
|
2,2
|
1,7
|
1,9
|
1,7
|
1,4
|
| 0,8
|
3,6
|
3,1
|
2,4
|
2,35
|
2
|
1,55
|
| 0,9
|
5,3
|
4,2
|
3
|
2,9
|
2,45
|
1,9
|
| 1,0
|
7,2
|
5,4
|
4,3
|
3,6
|
3,1
|
2,4
|
| Більше 3,5
|
0,1
|
1,2
|
1,15
|
1,1
|
1,1
|
1,1
|
1,95
|
| 0,2
|
1,4
|
1,3
|
1,2
|
1,2
|
1,15
|
1,1
|
| 0,3
|
1,75
|
1,5
|
1,3
|
1,4
|
1,3
|
1,2
|
| 0,4
|
2,4
|
2,1
|
1,6
|
1,6
|
1,4
|
1,3
|
| 0,5
|
3,4
|
2,9
|
2,5
|
2
|
1,8
|
1,5
|
| 0,6
|
4,6
|
3,8
|
3,1
|
2,4
|
2,1
|
1,8
|
| 0,7
|
6
|
4,7
|
3,7
|
2,9
|
2,6
|
2,1
|
| 0,8
|
7,4
|
5,8
|
4,7
|
3,4
|
2,9
|
2,4
|
| 0,9
|
9
|
7,1
|
5,6
|
4,3
|
3,6
|
3
|
| 1,0
|
10
|
7,3
|
5,7
|
5
|
4,1
|
3,5
|
Вказівки до розв’язання задачі
При дослідженні достатності природного освітлення необхідно відповісти на запитання: чи відповідає фактичне значення природного освітлення нормативному за СНиП II-4-79.
Перш за все студент-дипломник повинен скласти розрахункову схему, дотримуючись пропорції розмірів або вибраного масштабу, на якій відобразити (рис. 6.2):
- габаритні розміри приміщення: довжину, ширину, висоту;
- розміри вікон: ширину, висоту, їх кількість;
- розміщення вікон за висотою приміщення: висоту від підлоги до підвіконня та відносно рівня робочої поверхні, яка розміщена на висоті 0,8 м від підлоги;
- відстань від вікна до розрахункової точки, яка вибирається на робочому місці, найбільш віддаленому від вікна.

Рисунок 6.2 – Схема розрахунку природного освітлення
Нормоване значення коефіцієнта природного освітлення (КПО) для четвертого світлового поясу України, еIV
, визначається, %, за формулою
,(6.6)
де енІІІ
- нормоване значення КПО для III світлового поясу за СНиП II-4-79. Для більшості адміністративно-управлінських приміщень, у яких виконуються роботи III розряду (середньої точності), для бокового освітлення
енІІІ
= 1,5%;
m - коефіцієнт світлового клімату (для України m = 0,9);
c - коефіцієнт сонячності. Для географічної широти м. Суми розташоване в межах 0,75-1,0.
Фактичне значення коефіцієнта природного освітлення для досліджуваного приміщення можна вивести з формули
,(6.7)
Звідки
,(6.8)
де So
– площа усіх вікон у приміщенні, м2
;
Sn
– площа підлоги приміщення, м2
;
τo
– загальний коефіцієнт світлопроникності віконного прорізу. Для віконних прорізів адміністративно-управлінських будівель, які не обладнані сонцезахисними пристроями, to
= 0,5;
r1
- коефіцієнт, який враховує відбиття світла від внутрішніх поверхонь приміщення. Його значення залежить від розмірів приміщення (довжини і ширини), глибини приміщення (відстані від вікна до протилежної йому стінки), висоти від верху вікна до рівня робочої поверхні ,відстані розрахункової точки від вікна, середньозваженого коефіцієнта відбиття світла від стін, стелі, підлоги, ρсг
. Для світлих приміщень із світлими меблями ρсг
можна орієнтовно взяти таким, що дорівнює 0,5, для темних – 0,3, для посередніх між ними – 0,4. Значення коефіцієнта r1
береться із таблиці 6.3;
ηo
– світлова характеристика вікна вибирається з таблиці 6.4;
Кбуд
– коефіцієнт, що враховує затемнення вікон іншими будинками, якщо будинків немає, то Кбуд
= 1;
Кз
– коефіцієнт запасу береться в межах Кз
= 1,3 – 1,5.
Таблиця 6.4 – Значення світлової характеристики h0
світлових прорізів при бічному освітленні
| Відношення довжини приміщення до його глибини
|
Значення світлової характеристики h0
при відношенні глибини приміщення до його висоти від рівня умовної робочої поверхні до верху вікна
|
| 1
|
1,5
|
2
|
3
|
4
|
5
|
7,5
|
10
|
| 4 та більше
|
6,5
|
7
|
7,5
|
8
|
9
|
10
|
11
|
12,5
|
| 3
|
7,5
|
6
|
8,5
|
9,6
|
10
|
11
|
12,5
|
14
|
| 2
|
8,5
|
9
|
9,5
|
10,5
|
11,35
|
15
|
17
|
17
|
| 1,5
|
9,5
|
10,5
|
13
|
15
|
17
|
19
|
21
|
23
|
| 1
|
11
|
15
|
16
|
18
|
21
|
23
|
26,5
|
29
|
| 0,5
|
18
|
23
|
31
|
37
|
45
|
54
|
66
|
—
|
Порівнюючи значення нормованого коефіцієнта природного освітлення і фактичного освітлення можна зробити висновок про необхідність додаткових заходів щодо поліпшення природного освітлення у досліджуваному приміщенні. Ефективність природного освітлення перевірити відповідними розрахунками.
Задача 3
Дослідити достатність штучного освітлення відділу. Габаритні розміри приміщення взяти аналогічно до задачі 1. Недостатні для розрахунку дані в таблиці 6.5 взяти самостійно та обґрунтовано з довідника: Кнорринг Г.М. Справочная книга для проектирования электрического освещения. - М.: Энергия, 1976.
Таблиця 6.5 – Вихідні дані до задачі 3
| Показник
|
Варіант
|
| 1
|
2
|
3
|
4
|
5
|
6
|
7
|
8
|
9
|
0
|
| Вид джерела світла
|
л/р
|
л/л
|
л/р
|
л/л
|
л/л
|
л/р
|
л/р
|
л/л
|
л/р
|
л/л
|
| Система освітлення
|
з
|
з/к
|
з/к
|
з
|
з
|
з/к
|
з/к
|
з
|
з
|
з/к
|
| Кількість світильників
|
9
|
8
|
6
|
8
|
10
|
9
|
8
|
10
|
9
|
8
|
| Кількість ламп у світильнику
|
2
|
2
|
1
|
4
|
2
|
3
|
1
|
2
|
3
|
2
|
| Потужність однієї лампи, Вт
|
60
|
30
|
75
|
40
|
40
|
100
|
75
|
40
|
100
|
30
|
| Примітка. л/р – лампа розжарювання; л/л – лампа люмінесцентна; з – загальна; з/к – загальна в системі комбінованого
|
Таблиця 6.6 – Технічні характеристики існуючих джерел штучного світла
| Лампи розжарювання
|
Люмінесцентні лампи
|
| Тип
|
Світловий потік, Fл
, лм
|
Тип
|
Світловий потік, Fл
, лм
|
| В-125-135-15*
|
135
|
ЛДЦ 20
|
820
|
| В 215-225-15
|
105
|
ЛД 20
|
920
|
| Б 125-135-40
|
485
|
ЛБ 20
|
1180
|
| Б 120-230-40
|
460
|
ЛДУ 30
|
1450
|
| БК 125-135-100
|
1630
|
ЛД 30
|
1640
|
| БК 215-225-100
|
1450
|
ЛБ 30
|
2100
|
| Г 125-135-150
|
2280
|
ЛДУ 40
|
2100
|
| Г 215-225-150
|
2090
|
ЛД 40
|
2340
|
| Г 125-135-300
|
4900
|
ЛБ 40
|
3120
|
| Г 215-225-300
|
4610
|
ЛДУ 80
|
3740
|
| Г 125-135-1000
|
19100
|
ЛД 80
|
4070
|
| Г 215-225-1000
|
19600
|
ЛБ 80
|
5220
|
| * Перші два числа показують діапазон допустимої напруги, В, третє – потужність, Вт.
|
Вказівки до розв’язання задачі
Для оцінки ефективності штучного освітлення в приміщенні необхідно порівняти значення фактичного освітлення та нормованого значення за СНиП ІІ-4-79.
Нормоване значення освітлення для економічного відділу при загальному освітленні за СНиП ІІ-4-79 складає при використанні газорозрядних ламп – 300 лк, при використанні ламп накалювання – 200 лк.
При комбінованому освітленні частка загального освітлення в системі комбінованого повинна складати 10% норми для комбінованого освітлення, але не менше 150 лк при використанні люмінесцентних ламп або не менше 50 лк при використанні ламп розжарювання.
Значення фактичного освітлення, лк, у відділі можна знайти за допомогою методу коефіцієнта використання світлового потоку з формули
,(6.9)
Звідки
, лк,(6.10)
де Fл
– світловий потік однієї лампи, лм. (дивись табл. 6.6);
ηв
– коефіцієнт використання світлового потоку. Для світильників, які використовуються в адміністративних будівлях для традиційних розмірів приміщення і кольорового оздоблення, може набувати значення в межах ηв
= 0,4 – 0,6;
N – кількість світильників, шт. Задану у вихідних даних кількість світильників необхідно розмістити рівномірно по площі приміщення, по можливості по сторонах квадрата, виконуючи такі умови: сторона квадрата L = 1,4 Hp
, де Hp
– висота підвісу світильника над робочою площиною, яку можна визначити як різницю між висотою приміщення і стандартною висотою розміщення над підлогою робочої площини, що дорівнює 0,8 м, та висотою підвісу світильника hпід
= 0,1 – 0,4 м. Відстань від світильника до стіни бажано витримувати в межах l = 0,3 0,5L;
n – кількість ламп у світильнику, шт.;
S – площа приміщення, м2
;
k – коефіцієнт запасу, k = 1,5 – 2;
z – коефіцієнт нерівномірності освітлення: для ламп розжарювання z = 1,15; для люмінесцентних ламп z = 1,1.
Порівнюючи нормативне значення освітленості з фактичним, зробіть висновок про ефективність штучного освітлення у відділі.
Допустимим відхиленням фактичного освітлення від нормативного є +20% - -10%.
Якщо освітлення недостатнє, запропонуйте заходи щодо його покращання. Дієвість запропонованих заходів необхідно підтвердити розрахунками.
Розміщення світильників у приміщенні показати на рис. 6.3.

Рисунок 6.3 – Схема розміщення світильників
Задача 4
Розрахувати заземлення для стаціонарної установки. Заземлювачі заглиблені і розміщені в один ряд (глибина закладання t = 80 см)
Рисунок 6.4 – Схема заземлення
Вказівки до розв’язання задачі
1 У відповідності до вимог пуе визначається допустимий опір розтіканню струму в заземленні Rз
. Для мереж з напругою до 1000 В можна взяти Rз
= 4 Ом.
2 Визначається питомий опір ґрунту ,який рекомендовано для розрахунків, rтабл.
, Ом×см (додаток А).
3 Визначаються підвищувальні коефіцієнти для труб вертикальних заземлювачів КП.Т
та для з’єднувальної полоси КП.С
, які враховують зміну опору ґрунту в різні пори року залежно від наявності опадів (додаток Б).
4 Визначається питомий розрахунковий опір ґрунту для вертикальних електродів (труб або стриженів) rрозр.т
з урахуванням несприятливих умов за допомогою підвищувального коефіцієнта:
, Ом×см.
5 Визначається питомий розрахунковий опір ґрунту для горизонтального заземлювача (з’єднувальної смуги):
, Ом×см.
6 Визначається відстань від поверхні землі до середини вертикального заземлювача (див. рис. 6.4)
, см,
де hз
– глибина заглиблення труб, см;
lТ
– довжина вертикального заземлювача.
7 Визначається опір розтіканню струму для одиночного вертикального заземлювача, який розташований нижче від поверхні землі
, Ом.
8 Визначається необхідна кількість вертикальних заземлювачів без урахування коефіцієнта екранування

9 Визначається відстань між вертикальними заземлювачами hст.
із співвідношення . Для стаціонарних заглиблених заземлювачів це співвідношення береться таким: С = 1.
, см.
10 Визначаємо коефіцієнт екранування труб при числі труб nТ
та відношенні (додаток В).
11 Визначається необхідна кількість вертикальних заземлювачів з урахуванням коефіцієнта екранування:
.
12 Визначається розрахунковий опір розтіканню струму при взятому числі вертикальних заземлювачів nТ.Е
:
.
13 Визначається довжина з’єднувальної смуги
, см.
14 Визначається опір розтіканню струму в з’єднувальній смузі:
, Ом,
де hз
– глибина заглиблення вертикальних заземлювачів, см;
bС
– ширина з’єднувальної смуги, см.
15 Визначається коефіцієнт екранування hЕ.З.С
для з’єднувальної смуги (додаток Г)
16 Визначається розрахунковий опір для розтікання електричного струму в з’єднувальній смузі з урахуванням коефіцієнта екранування:
.
17 Визначається загальний розрахунковий теоретичний опір розтіканню струму від вертикальних заземлювачів та з’єднувальної смуги:

Остаточний результат повинен бути близьким до значень Rз
.
Додатки
Додаток А
Приблизні значення питомих опорів ґрунтів, rтабл.
| Грунт
|
Значення, які рекомендуються для розрахунків, Ом×см
|
| Пісок
|
70000
|
| Супісок
|
30000
|
| Суглинок
|
10000
|
| Глина
|
400
|
| Чорнозем
|
200
|
| Торф
|
200
|
Додаток Б
Значення підвищувальних коефіцієнтів КП.Т
, КП.С
за кліматичними зонами
| Кліматична зона
|
Тип заземлювачів
|
| Горизонтально прокладені заземлювачі (полосові та ін.) при глибині від поверхні ґрунту hг
=0,8 м, КП.С
|
Стрижневі вертикально встановлені заземлювачі при глибині від поверхні землі hb
=0.5-0.8 м, КП.
T
|
| І
|
4.5-7
|
1.8-2
|
| ІІ
|
3.5-4.5
|
1.6-1.8
|
| ІІІ
|
2.5-4
|
1.4-1.6
|
| ІV
|
1.5-2
|
1.2-1.4
|
Додаток В
Коефіцієнт екранування вертикальних заземлювачів
| Кількість вертикальних заземлювачів, nT
, шт.
|
Коефіцієнт екранування вертикальних заземлювачів, hЕ.Т
|
Коефіцієнт екранування з’єднувальних смуг, hЕ.
З.С
|
| 2
|
0,85
|
—
|
| 3
|
0,78
|
—
|
| 5
|
0,7
|
| 10
|
0,59
|
| 15
|
0,55
|
| 20
|
0,49
|
| 40
|
0,41
|
| 60
|
0,39
|
| 100
|
0,36
|
Додаток Г
Коефіцієнт екранування з’єднувальних смуг hЕ.З.С
при розташуванні заземлювачів в ряд (чисельник) чи по чотирикутному контуру (знаменник)
| Кількість вертикальних заземлювачів
|
4
|
5
|
6
|
10
|
20
|
30
|
50
|
60
|
100
|
| Коефіцієнт екранування з’єднувальних смуг hЕ.З.С
|

|

|

|

|

|

|

|

|

|
Список літератури
Основна література
1. Денисенко А.Ф. Основи охорони праці: Конспект лекцій в 2-х ч.
2. Юдин Е.Я. Охрана труда в машиностроении. – М.: Машиностроение, 1983.
3. Русак О.Н. Справочная книга по охране труда в машиностроении. – Л.: Машиностроение, 1984.
Додаткова література
4. Долин П.А. Справочник по технике безопасности. – М.: Энергоиздат, 1984.
5. Белов С.В. Средства защиты в машиностроении. – М.: Машиностроение, 1989.
6. Макаров Г.В. Охрана труда в химической промышленности. – М.: Химия, 1989.
7. Денисенко Г.Ф. Охрана труда. – М.: Высшая школа, 1985.
8. Охрана труда и социальное страхование. Журнал.
9. Охрана труда. Журнал.
10. Безопасность труда в промышленности. Журнал.
Науково-методична література видавництва СумДУ
11. Методичні вказівки до ситуаційної гри «Розслідування нещасного випадку з робітницею бухгалтерії».
12. М.в. «Розслідування нещасного випадку з робітницею госп. частини».
13. М.в. «Розслідування нещасного випадку з робітником слюсарем».
14. М.в. «Розслідування нещасного випадку з робітником штампувальником».
15. М.в. до лабораторної роботи з курсу «Охорона праці» «Оздоровлення повітряного середовища».
16. М.в. до лабораторної роботи «Дослідження штучного освітлення виробничих приміщень. Штучне освітлення».
17. М.в. до лабораторної роботи «Дослідження природного освітлення виробничих приміщень. Природне освітлення».
18. М.в. «Дослідження електричного поля заземленого електроду та виникнення крокової напруги».
19. М.в. «Дослідження параметрів виробничого шуму та визначення ефективності звукоізоляції».
20. М.в. «Дослідження вібрацій та методи боротьби з ними».
21. М.в. до виконання обов’язкового домашнього завдання з курсу «Основи охорони праці».
|