| СОДЕРЖАНИЕ
Введение…………………………………………………………………....3
1. Груз, понятие груза……………………………………………………..5
2. Транспортная характеристика груза………………………………...…8
3. Объемно-массовые показатели………………………………….…….11
4. Тара, упаковка, маркировка……….……..………………………….…12
5 Способы складирования ……………………………………………….16
6 Режим хранения………………………………………………………....19
7 Способ погрузки, разгрузки …………………………………………...21
8 Способ перевозки……………………………………………………… 22
9 Полная масса и грузоподъемность АТС……………………………. 25
10 Осевая нагрузка………………………………………………………. 26
11 Тип АТС………………………………………………………………. 28
11.1 Классификация подвижного состава АТС………………………... 28
12.2 АТС в составе автопоезда………………………………………….. 31
12.2.1 Тягач (бортовой, седельный) ……………………………………..31
12.2.2 Прицеп, полуприцеп ……………………………………………...31
13 Средства технического оснащения АТС, их классификационные признаки …………………………………………………………………………32
13.1 Поддон………………………………………………………………..32
13.2 Контейнер…………………………………………………………….35
13.3 Технические средства пакетирования ……………………………..36
14. Схема размещения грузовых мест в кузове АТС…………………...38
15. Принципиальная схеме размещения груза, АТС и ПРМ в грузопункте………………………………………………………………………40
16. Тип ПРМ………………………………………………………………41
17. Принципиальная схема ПРМ и процесса погрузки, разгрузки………………………………………………………………………....42
Список использованных источников……………………………………43
Введение
Повышение эффективности и качества перевозок грузов является одной из важнейших комплексных проблем на автомобильном транспорте. Качество перевозок грузов автомобильным транспортом зависит от совокупности свойств автотранспортной системы (экономических, технических, организационных, социальных и экологических параметров и показателей), характеризующих полезность ее производственных процессов и возможностей при их реализации удовлетворять потребность страны в перевозках. Наиболее важными показателями качества перевозки грузов автомобильным транспортом являются своевременность выполнения перевозок, сохранность количества и потребительских свойств грузов и экономичность системы доставки. Своевременность выполнения перевозок зависит от своевременности вывоза грузов от грузоотправителя и сроков доставки грузов грузополучателю. Влияние этих показателей на размеры затрат грузоотправителей зависит не только от форм их материально-технического снабжения (складские либо кооперативные поставки, монтаж «с колес» и т.п.), но и от подверженности грузов естественной убыли и порчи. Так, например, при складской форме доставки грузов своевременность выполнения перевозок оказывает определяющее влияние на размеры запасов годовой продукции у грузоотправителей, средств в обороте и производственных запасов продукции у грузополучателей. Размеры запасов зачастую превышают объективную потребность, поскольку предполагается с их помощью исключить возможность сбоев в основном производстве грузоотправителей и грузополучателей при непредвиденных обстоятельствах.
В случае кооперативных поставок и монтаже «с колес» от своевременности доставки грузов зависят темпы и ритмичность производственных процессов у грузополучателей.
Сохранность грузов, его потребительских свойств и экономичность ставки зависят от того, на каких типах подвижного состава осуществляются перевозки грузов. Следовательно, транспортные средства должны соответствовать видам грузов (фургоны, самосвалы, цистерны и т.п.), обеспечивать наибольшую сохранность грузов (например, перевозка цемента целесообразна не в полужесткой таре, а в автоцементовозе, муки -не в мягкой таре, а в муковозе) и механизированное выполнение погрузочно-разгрузочных операций.
Своевременность выполнения перевозок зависит от своевременности вывоза грузов от грузоотправителя, срока и своевременности доставки грузов грузополучателю. Влияние этих показателей на размеры затрат клиентуры зависит не только от форм их материально-технического снабжения и подверженности грузов естественной убыли и порчи, но и от способов погрузки и разгрузки. При сравнительно удовлетворительных технико-эксплуатационных и экономических показателях использования транспортных средств непосредственно в самом процессе движения подвижной состав весьма неэффективно используется при перегрузочных операциях, как правило, из-за сверхнормативных простоев. Это особенно остро ощущается при перевозке тарно-штучных грузов в торговле. Так, например, на каждую тонну грузов широкого потребления приходится в среднем 50-60 тарных мест. Следовательно, при перевозке 1 млн. т грузов в торговую сеть необходимо выполнить 50-60 млн. тарно-грузовых операций. Для повышения эффективности перевозок применяют различные типы кузовов, оборудования, при использовании которых можно сократить непроизводительные простои подвижного состава под погрузкой и разгрузкой.
Условия погрузки, разгрузки и перевозки грузов отражают транспортно-технологические схемы перевозок, позволяющие выявить на любой стадии транспортного процесса недостатки, затраты материальных и трудовых ресурсов и дать рекомендации по повышению эффективности использования транспортных средств и подъемно-транспортных механизмов.
1 Груз, понятие груза
На разных этапах экономического цикла схема «производство – транспортировка – потребление - результат труда» каждый раз предстает в новом качестве. На первом этапе (производство) материальным результатом общественного труда является продукт, обладающий стоимостью и потребительской стоимостью. Продукт полностью или частично может быть использован ля продажи или потребления в другом месте. В этом случае он становится товаром. На втором этапе с момента передачи транспорту для пространственного перемещения продукт обретает новое качество: он становится грузом, то есть объектом транспортировки. На третьем этапе, то есть при реализации потребительской стоимости, груз (товарная часть продукта) опять выступает в роли только продукта.
Стоимость продукта слагается из стоимости его изготовления и стоимости транспортировки. Потребительская стоимость максимальная, так как она может быть реализована в полной мере. Следовательно, в экономическом цикле «производство – транспортировка – потребление» материальный результат труда последовательно выступает в разных качествах по схеме «продукт – товар – груз - продукт». Эта схема замкнут, если на последнем этапе потребительская стоимость погашается потребителем, или не замкнута, если потребительская стоимость используется для расширенного воспроизводства.
В процессе перемещения груза основными участниками производственного процесса (транспортировки) становятся не производитель и потребитель продукта, а грузовладелец и транспортное предприятие со своими обслуживающими организациями. Объективно транспортировка повышает стоимость продукта для потребителя. Поэтому сокращать транспортные издержки следует не в ущерб сохранности, своевременности и безопасности доставки груза.
Все полезные свойства продукта, которые характеризуют его потребительскую стоимость, являются существенными на начальном и конечном этапе экономического цикла. На промежуточном этапе цикла (транспортировка) продукт становится грузом и многие потребительные свойства, характеризующие его как товар, оказываются несущественными, так как не влияют на процесс транспортировки. На первый план при этом выступают те свойства товара, которые связаны с процессом транспортировки и составляют транспортную характеристику груза.
Классификация грузов автомобильного транспорта.
Все грузы, доставляемые автомобильным транспортом, подразделяются на одиннадцать групп.
Первая – тарно-упаковочные и штучные грузы. Это грузы в мешках, кулях, бумажных мешках и пакетах, в кипах, тюках, в деревянных, фанерных
коробках, корзинах, клетках, бидонах, в связках и без упаковки ( в том числе штучные грузы – толь, рубероид, шифер, битум, кирпич, кроме
огнеупорного, паркет, планки в пачках и связках и др.) массой нетто до 250 кг за исключением металлов, лесных грузов; катно-бочковые грузы в металлических, деревянных и фанерных бочках, барабанах, цилиндрах, рулонах, на катушках и в бухтах до 500 кг.
Вторая – говядина и мясо других видов крупного рогатого скота в разрубе, а полутуши и четверти, баранина и телятина в тушах, свинина в разрубе на полутуши.
Третья – хлебобулочные изделия. Это хлеб подовой, булочные и мелкоштучные изделия, уложенные в специальные лотки.
Четвертая – тяжеловесные грузы. Это грузы в упаковке и без упаковки, В том числе машины, контейнеры, железобетонные изделия и другие массой места более 250 кг (кроме металлов и лесных грузов); катно-бочковые грузы в бочках, барабанах, цилиндрах, катушках, в рулонах и бухтах более 500 кг.
Пятая – металлы и металлические изделия. Это металлы всякие (в том числе металлолом) и металлические изделия, перевозимые без упаковки и в металлической упаковке (толстолистовой металл в пачках и др.) независимо от массы одного места, за исключением тяжеловесных станин, машин, станков, относящихся к тяжеловесным грузам.
Шестая – лесные грузы. Это лес круглый любого диаметра, телеграфные и телефонные столбы, шпалы, брусья, дрова, рудничная стойка, пропсы, балансы, пиломатериалы всех размеров, изделия из дерева (детали домов, фанера, паркет, клепа, пленки, дощечки россыпью).
Седьмая – огнеупорные грузы. Это все виды изделий из огнеупорных материалов – шамотные, динасовые, магнезитовые, хромомагнезитовые, высокоглинистые и другие, предназначенные для кладки металлургических и нагревательных печей.
Восьмая – зерновые грузы россыпью. Это тяжеловесное зерно (рожь, пшеница, просо, кукуруза в зерне, горох, бобы, вика, фасоль, соя, чечевица, лен, горчица, рапс, кунжут); легковесное зерно (гречиха, овес, ячмень, рис необрушенный, клещевина); подсолнечное и хлопковое семя, отходы, отруби, комбикорм, шрот, кукуруза в початках.
Девятая – овощные грузы россыпью. Это картофель, свекла, морковь, лук репчатый, капуста качанная, репа, редька, арбузы, дыни, тыквы и др.
Десятая – навалочные грузы. Это различные сыпучие материалы (песок, гравий, щебень, галька, уголь, кокс, руда и др.), которые перевозятся без упаковки (навалом, насыпью) и хранятся в штабелях, кучах, отвалах и др.
Одиннадцатая группа – наливные грузы. Это нефтепродукты, растительные масла, химические продукты (кислоты, щелочи, лаки, краски, и др.), пищевые продукты (молоко, питьевая вода), спирты, прочие технические жидкости.
Различают также четыре характерные разновидности груза.
Навалочные и насыпные грузы (песок, гравий и т.п.), перевозимые без
упаковки. Используемые для их переработки погрузочно-разгрузочные механизмы имеют в основном однотипную конструкцию. Поэтому требования к транспортным средствам с точки зрения их приспособленности
к погрузке и выгрузке также являются одинаковыми.
Тарно-штучные грузы (грузы в мешках, тюках, ящиках и в другой таре и упаковке), перевозка которых связана с формированием отдельных грузовых мест. Погрузка и выгрузка этих грузов частично связана с большими затратами ручного труда и с использованием однотипных погрузочно0разгрузочных механизмов.
Наливные и газообразные грузы перевозятся в кузовах определенного типа, представляющих собой одну упаковку.
Негабаритные грузы и грузы большой массы требуют применения мощных стационарных и передвижных перегрузочных механизмов.
В работе рассматривается тип груза – навалочные грузы
(щебень).
2 Транспортная характеристика груза
Основными факторами, влияющими на выбор типа подвижного состава и его параметры, являются вид груза и его транспортная характеристика.
Транспортной характеристикой груза называется свойство товара, которое проявляется в процессе транспортировки и определяет этот процесс. В транспортную характеристику входят:физико-химические свойства, объемно-массовые показатели, тара, упаковка, режим хранения, перевозки, перегрузки. Совокупность конкретных качественных и количественных показателей транспортной характеристики груза называется транспортным состоянием груза.
Вид груза с соответствующей средней плотностью является важнейшим признаком при выборе типа кузова, поскольку соблюдение принципа «груз- соответствующий тип кузова» способствует повышению степени сохранности грузов на автомобильном транспорте.
На автомобильном транспорте грузы могут перевозиться в различной таре, в упаковке без тары или частично затаренные. Тара бывает мягкая (тюки, мешки), стеклянная (банки, бутылки), деревянная (ящики, бочки), металлическая (бочки, фляги) и др.
Грузы могут иметь различные внешние очертания. Например, грузы в таре или без нее, имеющие прямоугольную или квадратную форму, требуют применения прямоугольных кузовов в поперечном и продольном направлениях. Грузы специфической формы требуют установки специальных стоек для их крепления. В некоторых случаях такие кузова должны иметь и разгрузочное оборудование для снятия груза в условиях, когда отсутствуют погрузочно-разгрузочные средства у клиентуры.
Габаритные размеры грузов определяют внутренние параметры кузовов, погрузочную высоту и компоновку шасси транспортного средства в целом. Негабаритные грузы определяют типы рам кузовов, количество опор, состав транспортного средства и их базу. Масса неделимых грузов является одним из основных признаков, на основе которого устанавливается грузоподъемность транспортного средства.
По физическому состоянию грузы делятся на: твердые, сохраняющие свой объем в процессе перевозок; жидкие и криогенные, обладающие текучестью; газообразные.
По приспособленности к выполнению погрузочно-разгрузочных работ грузы делятся четыре характерные группы: навалочные и насыпные грузы; тарно-штучные грузы; наливные и газообразные грузы; негабаритные грузы и грузы большой массы.
Некоторая часть грузов очень восприимчива к динамическим нагрузкам. Такие грузы требуют применения мягкого покрытия внутри кузова или подвески грузов.
Положение центра тяжести для неделимых и тяжелых грузов определяет общую компоновку транспортного средства, погрузочную высоту и устройства для крепления груза.
По производственным, технологическим причинам обслуживаемой клиентуры грузы могут требовать срочной или несрочной доставки. Срочные грузы влияют на выбор кузова, который должен быть приспособлен к быстрой и механизированной погрузке и выгрузке, а также транспортного средства с соответствующими тягово-скоростными качествами.
Стоимость груза влияет на конструкцию кузова, который должен обеспечивать безопасность перевозки.
Размеры перевозок грузов устанавливают грузоподъемности транспортных средств, что в конечном итоге определяет уровень рентабельности перевозок грузов.
3 Объемно-массовые показатели
Грузовое место характеризуется габаритными размерами: длиной, шириной, высотой, произведение которых дает габаритный объем места и массы места брутто. Удельный объем грузового места (м3
/т) это отношение его габаритного объема к массе брутто.
Отношение суммы габаритных объемов грузовых мест и их суммой массе брутто определяет собой удельный объем груза (м3
/т).
При штабелировании между грузовыми местами неизбежно оставляют свободное пространство, в результате чего объем штабеля превышает сумму объемов мест, составляющих штабель. Это приращение учитывается коэффициентом укладки груза, рассчитываемым как отношение объема штабеля к сумме габаритных объемов грузовых мест.
При укладки ровными рядами коэффициент укладки грузов применяемой формы и катно-бочковых можно выразить как произведение линейных коэффициентов укладки груза. Линейных коэффициентов укладки груза представляют собой отношение линейных размеров штабеля (длины, ширины, высоты) к соответствующей сумме размеров грузовых мест; они зависят от отношения линейных размеров свободных пространств между местами груза по длине, ширине и высоте к соответствующим размерам грузового места (длине, ширине, высоте).
4 Тара, упаковка, маркировка грузов
Тарой называют промышленное изделие, в которое помещают продукцию для ее сохранности при транспортировке. Тара делится на потребительскую и транспортную.
В потребительскую тару (бутылки, коробки, банки) расфасовывают товары для доставки потребителю.
Транспортная тара служит для упаковки грузов в потребительской таре, а также неупакованных. Основное назначение тары – защита содержимого, главным образом, от механических повреждений при транспортировке.
По способности противостоять внешним механическим воздействиям тара бывает жесткая, способная сохранять форму в наполненном или порожнем виде; хрупкая, способная в порожнем виде сохранять форму; мягкая, без содержимого принимающая первоначальную плоскую форму. По материалу изготовления тара бывает: деревянная, картонно-бумажная, металлическая, стеклянная, текстильная, из синтетических материалов. По сроку службы – разовая, многооборотная. Грузовым местом называется единица тары с содержимым или несколько таких единиц, составляющих одно целое при транспортировке.Прочность тары должна быть достаточной для того, чтобы не было ее поломок и остаточных деформаций при соответствующей высоте штабелирования грузовых мест.Тара грузовых мест массой 2 т и более должна иметь приспособление (рамы) для выполнения погрузочно-разгрузочных работ и крепления на транспорте. В нормативной документации по перевозке грузов тара шифруется цифровым и буквенным кодом. Кодовое число определяет вид тары, буква – род материала. Первая группа - цифра определяет транспортную тару, последняя – потребительскую.В качестве транспортной тары для папирос применяют прочные, чистые, не имеющие постороннего запаха ящики из гофрированного картона или фанеры.
В случае при перевозке латекса тара имеет шифр – 03Ж, что обозначает бочки из белой жести. Упаковочные материалы (древесина, бумага, картон, ткани и др.) предназначены совместно с тарой, защищать груз в потребительской и транспортной таре или в контейнере от механических повреждений, физико-химических и биологических воздействий. При транспортировке груз испытывает следующие воздействия: механические – удары, толчки, статистические нагрузки, вибрацию, трение; гидрометеорологические – атмосферные осадки, влажность воздуха, колебания температуры; биологические – деятельность микроорганизмов.
Маркировкой называют различные надписи, рисунки, знаки и условные обозначения, которые наносятся на грузовые места.
Нанесение транспортной маркировки на грузовые места обусловлено требованиями к основным из которых относятся (ГОСТ14192 –77):
- Обеспечение сохранности груза при перегрузке транспортировании и хранении посредством нанесения на грузовые места манипуляционных знаков, а в некоторых случаях – предупредительных надписей;
- Установление взаимосвязи между грузом и сопровождающими его транспортными документами;
- Соблюдение особых условий транспортировки и хранения груза.
Транспортная маркировка должна содержать манипуляционные знаки, основные, дополнительные и информационные знаки. Манипуляционные знаки – это изображение, указывающее на способ обращения с грузом. Допускается применять предупредительные надписи типа «Штабелирование в два ряда», «Осторожно хрупкое», «На верх не ставить».
Основные надписи содержат:
- Полное или условное, зарегистрированное в установленном порядке наименование грузополучателя;
- Число грузовых мест в партии и порядковый номер места внутри партии указывается дробно (в числителе порядковый номер места в партии, в знаменателе - число мест в партии).
-
Наименование пункта назначения с указанием в случае необходимости станции или порта перегрузки.
Дополнительные надписи содержат:
- Полное или условное зарегистрированное в установленном порядке наименование грузополучателя;
- Наименование пункта отправителя с указанием железнодорожной станции отправителя и сокращенное наименование дороги отправителя.
Информационные надписи содержат:
- Массу брутто и нетто грузового места (кг);
- Габаритные размеры грузового места (мм): длинна, ширина, высота или диаметр и высота;
Объем грузового места (м3
).
По назначению маркировка делится на товарную, отправительскую, транспортную и специальную.
Товарную маркировку наносит изготовитель тары на изделие или потребительскую тару. В товарную маркировку входят сведения, интересующие потребителя и относящиеся к содержанию товара, его качеству и др.
Отправительская маркировка должна содержать реквизиты, определяющие принадлежность грузовых мест к определенной партии груза, следующие по накладной: дробь, числитель которой представляет собой номер места и знаки отправителя, а заменитель – число мест; наименование отправителя и получателя; пункты отправления, перевалки (при смешанном сообщении), назначения.
Транспортная транспортировка наносится отправителем на все грузовые места независимо от отправительской маркировки в виде дроби: в числителе – порядковый номер, под которым отправка зарегистрирована в книге отправления; в знаменателе – число грузовых мест данной отправки. Наличие и правильность отправительской и транспортной маркировок проверяют путем сопоставления с данными грузовых документов.
Специальная маркировка наносится отправителем на грузовые места, если они требуют особого общения при погрузо-разгрузочных работах, перевозке и хранении и представляет собой условные знаки или короткие надписи.
Примеры маркировки приведены на рисунке 5.1

Рисунок 5.1 – Маркировка грузов (манипуляционный знак «Скоропортящийся груз» печатается синей краской, «Тропическая упаковка» - красной)
5 Способы складирования
Складирование грузов вызвано имеющимися в практике неравномерностями циклов производства, транспортировок и потребления материальных ценностей. Склады различных типов создаются в начале и в конце транспортных грузопотоков или производственных процессов для временного накапливания грузов и своевременного снабжения производства материалами в нужных количествах.
Временное накапливание груза обусловлено характером производства и транспорта. Оно позволяет преодолевать временные, пространственные, количественные и качественные несоответствия между наличием и потребностью в материалах в процессе производства и потребления.
Склады промышленных предприятий представляют собой неотъемлемую часть общего и организационного процесса производства. Они влияют на общий ритм и организацию производства, внутризаводские грузопотоки, простои внешнего транспорта на грузовых фронтах предприятия, его компоновку и т.д.
По назначению склады промышленных предприятий подразделяются на следующие: склады материально-технического снабжения, склады готовой продукции, производственно технологические склады.
Склады материально-технические относятся к группе общезаводских и имеют целью снабжение производственных участков и цехов исходным сырьем, материалами, заготовками, полуфабрикатами и комплектующими изделиями, поступающими по внешней кооперации с других промышленных предприятий того же региона или других городов.
Склады материально-технического снабжения промышленных предприятий очень разнообразны по номенклатуре хранящихся и перерабатываемых грузов, характеру строительной части, физическим условиям среды, уровню механизации и автомобилизации и другим характеристикам.
Особенность этих складов состоит и также в том, что они входят, с одной стороны, в систему складского хозяйства промышленного предприятия и связаны с технологией основного производства, а с другой – в состав общей структуры материально-технического снабжения того региона, в котором находится промышленное предприятие, т.е. в региональную инфраструктуру.
К складам материально-технического обеспечения можно отнести все общезаводские склады, через которые предприятие получает сырье, материалы, изделия, заготовки, необходимые для производства. Особенностями этих складов являются назначение и характер перерабатываемых грузов.
По роду и параметрам перерабатываемых грузов склады материально-
технического снабжения делятся на следующие четыре группы: склады сыпучих грузов (песок, уголь, руда и т.д.); склады товарно-штучных грузов
(разнообразные грузы в ящиках, бочках, мешках и т. д.); склады длинномерных грузов (круглый лес, пиломатериалы, металлопрокат сортовой и листовой); склады крупногабаритных грузов (оборудование, контейнеры, железобетонные изделия).
Склады материально-технического снабжения выполняют следующие функции: прием продукции производственно-технического назначения по количеству и качеству от предприятий изготовителей и транспортных организаций; погрузку и разгрузку с транспортных средств; заказ автомобильного транспорта для централизованного вывоза грузов потребителям; хранение грузов в соответствии с требуемыми нормами от момента прибытия до выдачи на транспорт для доставки потребителям; отборку, комплектацию и выдачу материалов по заявкам потребителям; оформление документов на принимаемые и выдаваемые со склада грузы; учет и отчетность по приемке, выдаче и наличию грузов на складе; периодическую инвентаризацию складских запасов грузов.
Характерными особенностями складов материально-технического снабжения являются большие сроки хранения грузов (от 20-25 суток на складах промышленных предприятий, до 70-90 суток и более на снабженческо-сбытовых базах материально-технического снабжения);
прибытие грузов внешним транспортом, а отсюда и возможная большая неравномерность грузопотока прибытия и большие партии прибытия грузов; необходимость хорошей связи и четких технических, экономических и юридических отношений с железнодорожной станцией и автотранспортными предприятием, доставляющим грузы; необходимость связей с большим количеством поставщиков грузов и т.д.
Основные функции склада готовой продукции промышленного предприятия следующие: прием готовой продукции по количеству от цеха изготовителя или от внутризаводского транспорта; разгрузка готовой продукции с внутрипроизводственного транспорта; хранение продукции в соответствии с требуемыми нормами от момента ее поступления на склад отгрузки на внешний транспорт;
отборка продукции с мест хранения и комплектация ее по потребителям и пунктам назначения; составление заявок на подачу внешнего транспорта под погрузку к складу; погрузка готовой продукции на внешний склад; оформление документов на принимаемые и отправляемые со склада грузы; учет и отчетность по приемке, выдаче и наличию готовой продукции на складе и т.д.
Особенностями складов готовой продукции являются короткие сроки хранения грузов (от 1-2 до 8-10 суток); отправка грузов автомобильные (железнодорожным) транспортом; ритмичное поступление грузов на склад средствами внутризаводского транспорта; необходимость формирования наиболее рациональных транспортных партий с учетом интересов
потребителя, транспортных организаций и собственного производства.
Склады готовой продукции создаются как в виде отдельно стоящих объектов, так и в блоке со сборочным цехом, что является наиболее рационным.
К производственно-технологическим складам относятся различные операционные накопители, цеховые и участковые склады, а также склады гибких автоматизированных производств.
Цель создания производственно - технологических складов состоит в, чтобы компенсировать неравномерности производственных циклов и да производства на различных участках и в цехах предприятия. Такие склады создаются в тех местах, где параметры грузопотока, выходящего с это производственного участка, не соответствуют параметрам грузопотока, который должен входить на следующий производственный участок, по последовательности технологического цикла производства.
Особенностями производственных складов являются сравнительно небольшие сроки (до 2-3 суток) и запасы хранения грузов; возможность
прибытия и отправления грузов небольшими партиями с небольшими интервалами времени или даже непрерывным потоком; зависимость грузопотоков от производственной обстановки; ритмичность грузопотоков и отсутствие большой их неравномерности.
С учетом таких условий для производственных складов часто целесообразным бывает применение подвижных систем складирования контейнеры, циркуляционные склады, подвесные грузонесущие конвейеры т.д.). Поэтому производственно-технологические склады являются не вспомогательными сооружениями на участках и в цехах, а способствуют выполнению важнейших функций организации и планирования производства.
В данном случае склад будет представлять собой комплекс производственных зданий и инженерных сооружений, подъемно-транспортных машин и оборудования, средств вычислительной техники и автоматики для управления и контроля их работы. На складах должны быть оборудованы подъездные пути с твердым и ровным покрытием, обеспечивающий бесперебойную подачу и выезд АТС и ПРМ, средства оперативной связи, служебные и бытовые помещении, средства наружного освещения. Наиболее оптимальным будет закрытый склад, т.к. папиросы – груз гигроскопичный. Необходимо так же применение штабелей груза в плоских, стоечных, и ящичных поддонах; стеллажи бесполочные и каркасные клеточные, тупиковые, проходные, гравитационные, передвижные, консольные, Ш-образные стелажи.
6 Режим хранения
Для навалочных грузов на станциях строят открытые и закрытые склады. На большинстве открытых складов их хранят в штабелях прямоугольных а, круговых б, секторных в и конусных г. Буквами обозначены их основные размеры, необходимые для расчета вместимостей.
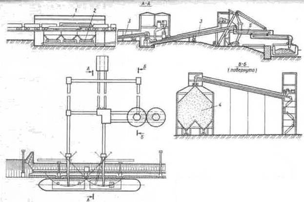
Проект разработал типовые проекты комплексно-механизированных складов угля вместимостью 50 тыс, т. Конусная часть его служит для кратковременного накопления и погрузки в полувагоны угля, который подают на пункт погрузки пластинчатым питателем ПЛ-12 и ленточным конвейером производительностью 1 тыс. т/ч; штабельная часть — для длительного хранения при задержке отгрузки потребителям, а также заполнении конусной.части, куда уголь поступает по спиральному желобу. В штабель длительного хранения уголь подают при помощи передвижного конвейерно-грейферного моста. К основному технологическому оборудованию склада относятся: ленточные конвейеры — стационарный и передвижной соответственно длиной 21 и 18 м, грейфер 3 емкостью 5,3 м3, приводные тележки моста, пластинчатый питатель б длиной 9 м. Управляет всеми механизмами оператор дистанционно с пульта, расположенного на передвижном мосту.
Открытый угольный склад типа 2AOG-50000 — сдвоенное хранилище угля. Конусная часть его вместимостью 3 тыс: м3 служит для кратковременного накопления угля перед погрузкой в полувагоны.
Штабельные части общей вместимостью 47 тыс. м3 предназначены для длительного хранения. Технология мало отличается от склада типа ЛАОС-50000. Различны лишь конструкции конвейерно-грейферных мостов. В конусный склад уголь поступает также по спиральному желобу.
Минеральные строительные материалы (гравий, щебень, песок, камень) хранят на открытых складах эстакадно-штабельно-тон-пельных, штабельно-тоннельных и с радиальным штабелирующим конвейером. На эстакадно-штабельно-тоннельном складе ленточные конвейеры, расположенные на эстакаде, отсыпают в отдельные штабеля разные фракции материала. Чтобы фракции не смешивались, между штабелями устанавливают стены высотой 2—4 м. Под штабелями расположен тоннельный конвейер, который подает материал на выдвижной конвейер, ведущий в бункер. Материал из штабеля на тоннельный конвейер поступает по лотковым питателям. Производительность конвейеров 400—500 т/ч. Вагоны загружаются из бункеров самотеком. У штабельно-тоннельных складов нет эстакады. Штабелируют груз консольно-поворотные конвейеры с переменной высотой сброса.
Для выгрузки полувагонов через нижние люки самотеком на складах сооружают бункерные эстакады. Груз высыпается на решетки приемных бункеров и через их ячейки поступает на ленточный конвейер. Вместимость бункеров закрытого типа от 500 до 5000 т. Наряду с бункерными возводят и безбункерные (траншейные) разгрузочные устройства. Приемные траншеи расположены по обе стороны фронта выгрузки. Из них груз мостовыми кранами, оборудованными грейферами, подают в пересыпные воронки, из которых равномерным потоком он ссыпается на конвейеры, проложенные вдоль стен склада.
Полубункерные склады отличаются тем, что у траншей устраивают, наклонные стенки, что обеспечивает поступление материалов в них при выгрузке вагонов самотеком. При этом нет необходимости подгребать груз бульдозерами от стенок траншеи, одна аэрирующим днищем груз поступает по цементопроводам непосредственно в силосы; из вагонов-хопперов его сначала выгружают в подрельсовый приемный бункер, а пневмоподъемником подают в силосы. Выдают цемент из силосов в автоцементовозы через донные пневмовыгружатели. Днища силосов оборудованы аэрационными сводоразрушающими устройствами. Удаляемый из силосов и приемных бункеров воздух очищают в рукавных фильтрах. Силосы снабжены датчиками уровня типа МДУ-Э, определяющими степень их заполнения.
Киевским институтом «Гипростроймашина» также разработан ряд типовых складов цемента. На грузовых дворах массовые сыпучие грузы, перевозимые в полувагонах, перерабатывают, в складах, оборудованных повышенными путями и эстакадами. Высота повышенного пути от 1,5 до 3,3 м зависит от грузооборота. Чаще всего строят повышенные пути высотой 2,5 м. Высота эстакад обычно 6 м и более. Основные части повышенного пути — две стены из сборного железобетона (плит и стоек), свободно опирающиеся на грунт и связанные между собой сверху поперечными стяжками. Между стенами засыпан грунт. На эстакадах и повышенных путях высотой 3 м и более на консолях поперечных брусьев железнодорожного пути монтируют мостики для доступа рабочих к полувагонам, подлежащим разгрузке.
Вместимость повышенного пути и эстакады должна обеспечивать бесперебойную выгрузку всех полувагонов, снижается вместимость и увеличивается строительная стоимость склада. Так, в частично закрытом складе (рис. 164) полубункер, образованный обваловыванием, разделен стенами на секции длиной 36 м, перекрытые навесом с металлическими фермами, опирающимися на железобетонные колонны. На нижних поясах ферм установлена галерея для ленточного конвейера. Крытые секции заполняют грузом, доставляемым автомобильным транспортом. Автомобили разгружают в бункер приемного устройства, откуда материал ленточным конвейером с разгрузочной тележ-кой подают в полубункер (разрез А—А). Полувагоны разгружает разгрузчик С-492 (разрез В—В). Вибропитатели подают материал из полубункера на тоннельный конвейер, ведущий в расходный бункер.
Насыпные грузы, боящиеся влаги и других атмосферных влияний, хранят в закрытых складах. Из железнодорожных цистерн с подаваемых на них. Основные требования, которым должны удовлетворять их конструкции, следующие:
прочность сооружения и наименьшие расходы при строительстве и эксплуатации;
возможность разгрузки как полувагонов, так и платформ;
возможность уборки грузов из отвалов машинами, в том числе грейферными кранами на железнодорожном или гусеничном ходу.
7 Способ погрузки, разгрузки
Погрузо-разгрузочные работы выполняются вилочными аккумуляторными малогабаритными погрузчиками типа 4015, 400А, КВЗ-04, ЗП250 и т.д.
Функция погрузки грузов на автомобиль заключается в систематическом повторении рабочего цикла, в состав которого входят перемещение поддонов с мешками от штабеля, где они сложены, к автомобилю, где погрузчик укладывает их на грузовую платформу.
Процесс погрузки начинается с того, что водитель подводит погрузчик вплотную к штабелю, где лежит груз (папиросы в ящиках), чтобы взять первое место грузов. Водитель слегка наклоняет раму подъемного механизма вперед, а вилы захвата подводит под груз, после этого медленно передвигает погрузчик вперед, пока груз полностью не ляжет на вилки и не упрется в решетку, ограждающую вертикальные стенки вилочного захвата.
После этого вилочный захват вместе с грузом поднимается вверх, при этом рама подъемного механизма слегка отклоняется назад (на 100
) погрузчик отходит от штабеля с грузом на вилах. Затем вилочный захват вместе с находящимся на нем грузом опускается вниз.
Заключительная стадия погрузочного процесса осуществляется непосредственно возле загружаемого автомобиля. Ориентировав положение вилочного захвата с грузом над грузовой платформой, водитель отклоняет вилочный захват вперед и высвободив его из-под груза, оставляет груз на автомобиле. Далее выполняется холостая часть цикла, заключающаяся в движении погрузчика за очередным местом груза.
Процесс разгрузки по своим операциям полностью противоположен процессу погрузки.
8 Способ перевозки
Перевозки навалочных грузов в больших объемах выполняются в строительстве, при разработке полезных ископаемых и в сельском хозяйстве.
Для перевозки навалочных грузов наиболее рационально использовать самосвалы или самосвальные автопоезда, которые обеспечивают быструю разгрузку. Тип самосвала должен соответствовать особенностям перевозимого груза. При значительных расстояниях перевозки, когда грузоподъемность автотранспортного средства начинает играть главную роль, для перевозки навалочных грузов могут использоваться универсальные автопоезда.
Время погрузки самосвала зависит от времени цикла экскаватора и соотношения между грузоподъемностью автотранспортного средства и ковша экскаватора. Для уменьшения времени погрузки желательно, чтобы вместимость ковша была кратной грузоподъемности автомобиля. При этом необходимо учитывать, что для уменьшения динамической нагрузки на шасси самосвала при ссыпании груза экскаватором его ковш должен находиться на высоте не более 1 м над днищем кузова. Следует соблюдать следующие соотношения между грузоподъемностью ковша экскаватора и автомобиля:
мягкий грунт — 3;
тяжелый или смерзшийся грунт — 4;
скальный грунт — 5.
Для автосамосвалов время простоя под погрузкой или разгрузкой можно ориентировочно рассчитывать исходя из 1 мин на каждую тонну груза. При погрузке или разгрузке вязких грузов (глина, строительный раствор, бетон, навоз) это время увеличивают до трех раз.
Перевозки однородных навалочных грузов от одного грузоотправителя в адрес одного грузополучателя оформляются одной товарно-транспортной накладной и одним актом замера или взвешивания.
Характерными особенностями карьерных перевозок являются значительный объем перевозок, непостоянство прохождения дорог, повышенные требования к прочности автомобиля и т. п. Для таких перевозок используются карьерные самосвалы грузоподъемностью свыше 30 т. Можно отметить следующие особенности использования автотранспортных средств в карьерах:
сложные условия движения со значительными уклонами до 8... 10 %, крутые повороты с радиусами 20... 25 м на очень коротких маршрутах;
необходимость частого проведения технического обслуживания и ремонта автомобиля в связи с тяжелыми условиями работы карьерных самосвалов;
наличие нескольких технологических перерывов в течение смены для очистки и планировки забоя.
В карьере схема движения автомашины может быть встречной (однополосной или двухполосной), тупиковой или кольцевой. Выбор схе-мы движения зависит от дальности перевозки, ширины рабочих площадок и схемы установки экскаваторов, интенсивности и безопасности движения, расходов на строительство дорог. На карьерных дорогах обгон запрещен.
При перевозках грузов в карьерах грузоотправитель обязан:
устраивать ограждение вдоль карьерной дороги со стороны нижнего откоса высотой не менее 0,7 м;
при наличии уклона дороги более 8° оборудовать участки длиной 50... 100 м с нулевым уклоном на расстоянии, не превышающем 100 м от начала подъема;
на погрузочных площадках, имеющих уклоны, устанавливать упоры под колеса автомашины;
своевременно очищать дорогу и при необходимости поливать для удаления пыли;
освещать места работы внутри карьера для предотвращения ослепления водителей;
не допускать концентрации вредных примесей в карьере выше установленных норм.
При использовании большого числа экскаваторов повысить эффективность использования грузовых автомашин можно, не закрепляя самосвалы за конкретным экскаватором, а направляя автомашину к наименее загруженному экскаватору. Это требует наличие диспетчерского поста на въезде в зону погрузки, но существенно снижает простои самосвалов в ожидании погрузки


9 Полная масса и грузоподъемность АТС
Полная масса автотранспортных средств состоит из снаряженной массы, массы груза (по грузоподъемности) или пассажиров (по числу мест), их багажа, водителя и другого обслуживающего персонала.
Полная масса автопоездов: для прицепного поезда – сумма полных масс тягача и прицепа; для седельного – сумма снаряженной массы тягача, массы персонала в кабине и полной массы полуприцепа.
Грузоподъемность определяется как масса перевозимого груза без массы водителя и пассажиров в кабине.
По виду покрытий все дороги разделяются на пять групп:
Д1 - цементобетонные (монолитные и сборные); асфальтобетонные из смесей, укладываемых в горячем, теплом и холодном состоянии; из брусчатки и мозаики на бетонном или каменном основании.
Д2 - покрытия из бетонно-минеральных смесей подобранного состава с применением прочного щебня и вязкого битума, приготовленных в смесителях и укладываемых в горячем состоянии.
Д3 - щебеночные, гравийные и из других прочных минеральных материалов с необходимым уплотнением их при строительстве; дегтебетонные смеси, укладываемые как в горячем, так и в холодном состоянии.
Д4 - покрытия из булыжного и колотого камня; покрытия из грунтов и местных мало-прочных каменных материалов, обработанных органическими вяжущими веществами или сочетанием различных вяжущих и добавок активных веществ.
Д5 - естественные грунтовые дороги; из грунтов, укрепленных или улучшенных различными местными материалами; деревянные покрытия.
10 Осевая нагрузка
Все автотранспортные средства разделены на три группы:
Группа А – автомобили и автопоезда, предназначенные для эксплуатации на автодорогах первой и второй категории с усовершенствованным капитальным покрытием, а также на других дорогах, проезжая часть которых рассчитана на пропуск автотранспортных средств этой группы;
Группы Б – автомобили и автопоезда, предназначенные для эксплуатации на всех автодорогах общей сети России.
Автомобили повышенной и высокой проходимости с нагрузкой от одиночной оси, превышающей 10 т. предназначены для работы в тяжелых дорожных условиях и по бездорожью.
При планировании автомобильных перевозок важно правильно, с учетом эксплуатационных ограничений рассчитать массу перевозимого груза в кузове автопоезда, которая не должна превышать установленные нормативные весогабаритные ограничения. При осуществлении международных перевозок действуют эксплуатационные ограничения, основанные на директивах ЕЭК ООН, представленные в таблицах 11.1 и 11.2
Таблица 11.1 – Директивные ограничения для АТС по общей массе в ЕС
| Количество осей
|
Для автомобиля, т
|
Для прицепа, т
|
Для седельного автопоезда, т
|
| Одна
|
-
|
10
|
-
|
| Две
|
18
|
18
|
-
|
| Три
|
25(26*)
|
24
|
28
|
| Четыре
|
30(32*)
|
-
|
36(38**)
|
| Пять и более
|
-
|
-
|
40(44***)
|
* Для АТС с пневмоподвеской.
** При расстоянии между осями полуприцепа свыше 1,8 м.
*** При перевозке ISO-контейнеров трехосными тягачами.
Таблица 11.2 – Директивные ограничения для АТС по осевой нагрузке в ЕС
| Количество осей
|
Расстояние между соседними осями, м
|
Для автомобиля, т
|
Для прицепа и полуприцепа, т
|
| Одна:
обычная
|
-
|
10
|
10
|

Продолжение таблицы 11.2
| Количество осей
|
Расстояние между соседними осями, м
|
Для автомобиля, т
|
Для прицепа и полуприцепа, т
|
| ведущая
|
-
|
11,5
|
-
|
| Две
|
До 1 м
1…1,3
1,3…1,8
Свыше 1,8
|
11,5*
16*
18(19**)
-
|
11
16
18
20
|
| Три
|
До 1,3
Свыше 1,3
|
-
-
|
22
24
|
* Для тележки с ведущим осями
** Для АТС с пневмоподвеской
Российская система весогабаритных ограничений в настоящее время формализована Инструкцией по перевозке крупногабаритных и тяжеловесных грузов автомобильным транспортом по дорогам Российской Федерации от 27.05.96, разработанной в основном дорожными службами и сильно отличающейся по содержанию от европейских рекомендаций и правил (таблицы 11.3, 11.4, 11.5).
11 Тип АТС
11.1 Классификация подвижного состава АТС
Грузовые автомобили и прицепной состав классифицируется по грузоподъемности, полной массе, типу кузова и по другим конструктивным особенностям. Они также подразделяются на грузовые АТС общего назначения и специализированного.
Номинальная грузоподъемность автомобилей устанавливается заводом – изготовителем и показывает максимальную полезную нагрузку автомобиля. Величина нагрузки определяется дорожными условиями работы автомобилей.
Автомобили, прицепы, полуприцепы в зависимости от грузоподъемности делятся на: особо малую (до 0,5 т), малую (от 0,5 до 2 т), среднюю (от 2 до 8 т), большую (от 8 до 16 т) и особо большую грузоподъемность (свыше 16 т).
Грузовые автомобили особо малой грузоподъемности выпускаются на шасси легковых автомобилей или специальном шасси и предназначены для перевозки мелких партий грузов.
Автомобили малой грузоподъемности используются для освоения небольшого по величине грузооборота, в первую очередь для перевозки грузов торговли.
Автомобили средней и большой грузоподъемности предназначены для перевозки массовых грузов при значительном грузообороте (грузы строительные, сельскохозяйственные, продукты промышленных предприятий).
Автомобили особо большой грузоподъемности используются для перевозки грузов большой массы, на разработках месторождениях полезных ископаемых открытым способом, на крупных стройках и т.д.
Автомобили тягачи предназначены для постоянной работы с полуприцепами (седельными тягачами) или полуприцепами (бортовыми тягачами). Последние могут использоваться и самостоятельно, однако в большинстве случаев это экономически не оправдано.
Автомобиль – тягач в сцепе с полуприцепом или прицепом называется автопоездом.
Автотранспортные средства подразделяются так же на дорожные предназначенные для работ по дорогам общей сети, и на внедорожные – для использования вне дорог внешней сети.
Номинальная грузоподъемность учитывается при индексации подвижного состава. Каждой новой модели автомобиля присваивается индекс состоящий из четырех цифр. Первые две цифры обозначают класс
автомобиля по полной массе. Вторые две – модель. Модификация модели
имеет пятую цифру, указывающую порядковый номер модификации. Перед цифровыми индексом ставятся буквенные обозначения завода – изготовителя. Аналогично осуществляется индексация прицепного состава.
Применительно к видам перевозимых грузов подвижной состав автомобильного транспорта классифицируется по типам кузовов.
Данная классификация позволяет правильно решать вопросы выбора транспортных средств в конкретных условиях перевозок в соответствии с принципом соответствия груза кузову.
По типу кузов грузовой подвижной состав подразделяется на автомобили и прицепы общего назначения с кузовом типа «грузовая платформа» и специализированные.
На подвижном составе общего назначения применяют различные виды грузовых платформ.
Платформа с откидными бортами представляет собой деревянный или металлический кузов с бортами, откидывающимися на три или одну сторону. Такие платформы приспособлены для перевозки грузов навалом или в таре. Для автомобилей особо малой грузоподъемности грузовую платформу делают грузопассажирской типа «пикап».
Грузовая универсальная платформа представляет собой платформу, которая может быть использована без бортов, с низкими бортами, высокими решетчатыми бортами и тентом.
Конструкция специализированного подвижного состава позволяет перевозить на нем грузы определенного вида (групп грузов) или применять специальные погрузочно-разгрузочные устройства, обеспечивающие приспособленность кузова к погрузке (разгрузке).
Все грузы, перевозимые специализированным подвижным составом (СПС), сгруппированы в 5 групп с учетом физико-химических и биологических свойств, массы, объема, размера, способа погрузки, разгрузки, перевозки и хранения, санитарных условий.
1 группа: к ней относятся длинномерные (трубы, колонны, лес, прокат и др.); объемные и крупногабаритные (кабины сантехнические, киоски торговые и др.); штучные (легковые автомобили, погрузчики и др.).
При перевозке грузов данной группы нужно предохранять их от поломок, сколов, образования трещин и предупреждать сдвиг во время движения транспортных средств.
Для соблюдения этих условий подвижной состав должен иметь платформу без бортов со сплошным основанием или раздвижную, оборудованную конниками, специальными опорными подкладками, стойками для обеспечения строго горизонтального или вертикального положения, фиксации от сдвига и т.п.
2 группа: Это сыпучие и навалочные материалы. Они подразделяются на три основные группы: обычные сыпучие (грунт, инертные материалы и др.), которые сохраняют свои физические свойства и качество при
перевозке и , следовательно, не требуют для этого особых условий; сыпучие, для которых необходима защита от атмосферных осадков; полужидкие или вязкие (товарный бетон, раствор, асфальтовая масса и др.), и другие, требующие особых условий перевозки.
3 группа: Она делится на три подгруппы: продовольственные товары (бакалейные, кондитерские, кулинарные и др.); промышленные товары (аппараты, инструменты, мебель и др.) и сырье для легкой и пищевой промышленности (волокно, пряжа, хлопок, шерсть, мука, сахар, табак).
4 группа: подразделяется на две подгруппы6 жидкие (наливные) и порошкообразные.
Жидкие грузы при перевозке требуют полной изоляции от внешней среды, герметичности кузова подвижного состава, постоянной температуры в нем, снижения мощности гидравлического удара, эффективности контроля за сохранность груза и т.д.
Большая часть порошкообразных грузов – это пищевые продукты или вредные для здоровья человека вещества, поэтому в обоих случаях необходима тщательная изоляция груза от внешней среды не только в процессе перевозки, но и во время погрузки-разгрузки.
5 группа: Это крупноразмерные изделия (витринное стекло, железобетонные фермы, кабель, канаты), перевозка которых должна осуществляться в вертикальном положении.
Основным классификационным признаком специализированных автомобиля является тип кузова. Именно в типе кузова проявляется в первую очередь специализация СПС, предназначенного для перевозки грузов определенной номенклатуры.
СПС, как правило, создается на базе новых и перспективных автомобилей и автопоездов общего назначения производства ГАЗа, ЗИЛа, КамАЗа и др. При этом основные параметры, устанавливаемые для базовых моделей (число мостов, колесная формула, максимально допустимая полная масса и нагрузка на мосты, мощность двигателя), определяются эти же параметры и их значение для соответствующих моделей СПС.
Типажом СПС предусматривается выпуск автомобилей, прицепов и полуприцепов многоцелевого назначения. Это прежде всего фургоны различного назначения, самосвалы, цистерны, контейнеровозы и металловозы.
Так же к специальным АТС относятся пожарные автомобили, автолавки, автомобили с компрессорными установками, автокраны, уборочные автомобили и т.п.
Количество модификаций кузова, определенных тиражом, может быть увеличено за счет сравнительно небольших изменений в их конструкции.
Например для перевозки мелкопартионных грузов, в том числе перевозимых на стандартных поддонах и в таре, созданы автомобили – фургоны полной массой 3,7 и 5,7 т с изометрическими кузовами на шасси автомобилей ГАЗ.
12.2 АТС в составе автопоезда
12.2.1 Тягач (бортовой, седельный)
Средства технического оснащения АТС- это приспособление и агрегаты, предназначенные для увеличения числа технических операций, выполняемых АТС.
Грузовые автомобильные транспортные средства по конструктивной схеме подразделяются на одиночные и автопоезда, в состав которых входит тягач с прицепным составом. Тягачи подразделяются на автомобили-тягачи, седельные и буксирные тягачи.
Автомобили-тягачи приспособлены для буксировки прицепов.
Седельные тягачи работают в сцепке с полуприцепами, не имеют кузова. На раме тягача установлено опорно-сцепное устройство, соединяющее полуприцеп с тягачом.
Буксирные тягачи предназначены для работы с прицепами - тяжеловозами.
12.2.2 Прицеп, полуприцеп
Прицепной состав грузового автомобильного транспорта состоит из прицепов, полуприцепов и прицепов-роспусков.
Прицепы буксируются автомобилями и автомобилями-тягачами, соединяясь с ними при помощи буксирного приспособления и дышла. В зависимости от числа осей прицепы делятся на одноосные, двуосные и многоосные.
Одноосные прицепы имеют небольшую грузоподъемность. Для устойчивого положения при отцепке автомобиля они оборудованы передней и задней убирающимися подставками.
Двухосные прицепы оборудованы поворотными устройствами, которые бывают двух типов: с поворотным кругом, когда передняя ось прицепа поворачивается вместе с колесами; автомобильного типа, когда ось остается неподвижной, а колеса поворачиваются на цапфах.
Многоосные прицепы используются в основном для перевозки различных грузов большой массы и негабаритных. Грузоподъемность их может достигать 100т и более.
Прицепы-роспуски применяются для перевозки длинномерных грузов и бывают одноосными и двухосными. Величина расстояния между автомобилем и осью прицепа-роспуска может меняться при перевозке груза различной длины. Это достигается путем перемещения роспуска по дышлу, выполненному в виде швеллера или трубы. Дышло имеет отверстие по длине, а прицеп-роспуск крепят в определенном положении фиксаторами.
Полуприцепы предназначены для работы в сцепке с седельными автомобилями-тягачами. они могут быть одноосными и двухосными, причем оси расположены в задней части полуприцепа. В средней части находится сцепное устройство для соединения с автомобилем-тягачом и стойки с катками для поддержания отцепленного полуприцепа в устойчивом положение. Стойки выполнены в виде откидного убирающегося шасси, шарнирно связанного с рамой полуприцепа. При сцепке полуприцепа с автомобилем-тягачом передняя часть полуприцепа приподнимается и после этого стойки могут быть подняты. Перед расцепкой стойки опускаются, полуприцеп опирается на катки, и автомобиль-тягач может отъехать. Поднимать и опускать стойки можно механически или в ручную
13 Средства технического оснащения АТС, их классификационные признаки
13.1 Поддон
Поддон - средство пакетирования, имеющее площадку для укладки груза, с надстройками или без них, приспособленное для механизированного перемещения. С помощью поддона можно быстро формировать УГЕ из уже имеющихся первичных единиц. На поддоне груз закрепляется различными способами либо за счет системы укладки, не позволяющей «рассыпаться» благодаря собственному весу первичных грузовых единиц, либо за счет связки груза с поддоном - стропования, либо за счет упаковывания грузовой единицы в термоусадочную пленку (толщиной от 0,15 мм).
Наиболее широкое применение находят плоские поддоны. По ГОСТ 9078—84 регламентированы типы, основные параметры, размеры и назначение плоских многооборотных поддонов. Грузоподъемность поддонов в зависимости от исполнения 1... 3,2 т. Поддоны могут изготавливаться из дерева (Д), стали (С), легких сплавов (Л), синтетических материалов (СН) или их сочетаний. По ГОСТ 9078—84 определены общие требования к поддонам, но на изготовление конкретного типа поддона должны разрабатываться и утверждаться в установленном порядке рабочие чертежи. Пример условного обозначения: Поддон Ш-1,0 Д ГОСТ 9078-84 — однонастильный четырехзаходный поддон массой брутто 1 т, изготовленный из дерева.
Таблица 13.1 - Основные типы плоских поддонов
| Тип поддона
|
Основные размеры, мм
|
Область применения
|
| П2
однонастильный двухзаходный
|
800x1200; 1000x1200
|
Размерами 800x1200 мм для обращения на всех видах транспорта и для внешнеторговых перевозок; размерами 1000х1200 мм для обращения преимущественно на автомобильном транспорте
|
| П4
однонастильный четырехзаходный
|
Продолжение таблицы 13.1
| Тип поддона
|
Основные размеры, мм
|
Область применения
|
| 2ПО4
однонастильный четырехзаходный с окнами в нижнем настиле
|
| 2ПВ2
двухнастильный двухзаходный с выступами
|
1200x1800
|
Для внешнеторговых перевозок водным транспортом
|
| 2ПВО2
двухнастильный двухзаходный с выступами и окнами в нижнем настиле
|
1200х 1600
|
Для обращения преимущественно на водном транспорте и для внешнеторговых перевозок
|
Рассматриваемые плоские поддоны являются универсальным средством пакетирования. Со стандартами предусматривается использование специализированных плоских поддонов (рис. 2), например ТМ127 (с двумя продольными опорами), ТМ140 (с двумя поперечными опорами) и ТМ142 (с тремя поперечными опорами), под конкретные штучные грузы. Их общий вид представлен на рисунке 2.1. Характеристики этих поддонов представлены в табл.2.2.
| 
б
|

а
 
в
Рисунок 13.1. Плоские поддоны: а - ТМ127 (с двумя продольными опорами); 6 - ТМ140 (с двумя поперечными опорами); в - ТМ142 (с тремя поперечными опорами)
Таблица13.2 - Параметры специализированных плоских поддонов
| Параметр
|
ТМ127, TMI40
|
ТМ142
|
| Длина, мм
|
1240
|
1640
|
| Ширина, мм
|
840
|
1240
|
| Высота, мм
|
150 или 170
|
200
|
| Масса брутто, т
|
1
|
2
|
| Собственная масса, кг
|
29
|
36
|
Пакетами на поддонах перевозятся тарные и штучные грузы. На плоских поддонах перевозятся мелкоштучные грузы (кирпич), грузы в стандартной таре и упаковке, ящиках, коробках, мешках и т.д. На стоечных поддонах - мелкоштучные, хрупкие грузы с неровными опорными поверхностями в недостаточно прочной таре. В ящичных поддонах – грузы без упаковки, мелкие изделия, машиностроительные и прочие промышленные товары.
13.2 Контейнер
Контейнеры как средство укрупнения грузовых мест в настоящее время популярны и универсальны. Их использование отразилось на конструкции подвижного состава, технологии перевозки, работе складского хозяйства и грузопунктов, что потребовало новых подходов, как в управлении, так и в обслуживании, привело к созданию интегрированных транспортных систем, обслуживающих доставку грузов «от двери до двери».
Преимущества применения контейнеров можно сформулировать следующим образом: объединение единичных грузов в одну грузовую отправку, что позволяет механизировать погрузочно-разгрузочные работы и сократить время простоя под грузовыми операциями; снижение требований к
упаковке; уменьшение затрат на перевозку, поскольку полностью
загруженный контейнер в наибольшей степени заполняет объем грузового пространства транспортного средства; снижение хищения; упрощение составления документации, т.к. конкретный объем груза требует намного меньше документов, чем при перевозки отдельных самостоятельных грузовых мест; снижение страховых затрат, поскольку отдельные отправки не требуют индивидуальной переработки, и контейнер обеспечивает сохранность грузов на всем пути следования. Кроме того, применение контейнеров делает прямые перевозки логичными и экономичными, что способствует интенсивному развитию смешанных перевозок «от двери до двери» (например, ж/д – море – автомобильная дорога, автомобильная дорога – воздушный транспорт – автомобильная дорога и т.п.)
Контейнер представляет собой единицу транспортного оборудования многократного применения, предназначенную для перевозки и временного хранения грузов без промежутков перегрузок, удобную для механизированной загрузки и выгрузки с транспортного средства. Различают контейнеру универсальные, специализированные и контейнерные – платформы.
13.3 Технические средства пакетирования
Большой объем тарно-штучных грузов требует укрупнения грузовых мест в виде пакетов и контейнеров. Это объясняется рядом причин: ускорением обращения гигантских материальных ценностей; высвобождением человеческого труда на погрузочно-разгрузочных работах (например, контейнеризация 1 млн. т груза высвобождает более 1,5 тыс. чел. На грузовых операциях);сокращением расхода на тару (контейнеризация снижает убытки от порчи и хищения в 10 раз); создание предпосылок к автоматизации погрузочно-разгрузочных работ, упрощению транспортно – экспедиционных и прочих коммерческих операций.
Транспортным пакетом называется укрупненная грузовая единица, сформированная из штучных грузов в таре или без нее с применением различных способов и средств пакетирования, сохраняющая форму в процессе обращения и дающая возможность комплексной механизации погрузочно-разгрузочных и складских работ. Различают одно- и многооборотные средства пакетирования. При подъемно-транспортных операциях нагрузку, создаваемую грузом, воспринимает несущее средство пакетирования. Разваливание пакета предупреждает скрепляющее средство пакетирования.
Для достижения устойчивости пакета отдельные грузовые места закрепляют с помощью различных средств скрепления. Наиболее распространение для крепления пакетов получили стальные и полимерные ленты и проволока.
Производительность автоматов, выполняющих обвязку пакета, достигает 1000 операций в час.
В пакете деревянных ящиков иногда достаточно скрепить между собой только ящики верхнего яруса. Если требуется более надежное крепление, пакет обвязывают целиком с помощью упаковочной ленты, проволоки или термоусадочной пленки.
Крепление пакета путем вбивания в поддон гвоздей, скоб и т.д. запрещается.
Пакеты с грузом в мешках формируются на плоских поддонах или в мягких стропах механизированным способом.
Для транспортировки грузов в мешках пакетами необходимо укрепить пакет пленкой. Пакеты, обтянуты термоусадочной пленкой, можно хранить на открытых площадках, так как пленка надежно защищает груз от атмосферного воздействия.
При пакетировании без применения вспомогательных средств продукции, упакованной в ящики, применяют различные способы формирования пакетов. Эти пакеты формируются как вручную, так и пакетоформирующими машинами.
Единичные грузы бывают следующих типов.
Рабочая коробка – это защитная упаковка, которую можно укладывать на поддоны и стеллажи.
Мешки в сухом состоянии и при правильном заполнении обладают значительной прочностью и могут быть легко уложены в штабели.
Стеллажи представляют собой средство для пакетирования грузов. Стеллаж содержит опорную плиту, обычно деревянную, с брусьями под ней для создания зазора между платформой и дном для подвода вил погрузчика. Штабелировать стеллажи не допускается.
14. Схема размещения грузовых мест в кузове АТС.
Принципиальная схема размещения грузовых мест в кузове автотранспортного средства (АТС) представлена на рисунке 11.3.

Рисунок 11.3 – Схема размещение грузовых мест в кузове
(вид сбоку).
15. Принципиальная схеме размещения груза, АТС и ПРМ в грузопункте.
В зависимости от постановки автомобиля под погрузку (разгрузку) маневрирование вилочного погрузчика имеет более или менее сложный характер, т.к. он может производить погрузку (разгрузку) только со стороны предварительно открытого борта автомобиля.
Схема размещения (взаиморасположения) груза, погрузо-разгрузочного механизма (ПРМ) и АТС в грузопункте приведены на рисунке 15.2.
Принципиальная схема ПРМ и процесса погрузки (разгрузки) на автомобиль приведена на рисунке 15.3.
Рисунок 15.2 - Поперечный разрез одноэтажного склада для хранения
латекса. 1 – Электропогрузчик; 2 – автомобиль; 3 – бочка (шесть бочек лежащие на поддонах)
16. Тип ПРМ.
Ковшовый погрузчик 4SDK (от 0,6 до 0,82 тонны)
Демонстрируют свои силы на погрузочно-разгрузочных работах с твердым покрытием, снегом, грунтом, сыпучими и навалочными грузами и материалами. Полный привод способен выполнить самую трудную задачу.

Рисунок 16.1 - Ковшовый погрузчик 4SDK
17. Принципиальная схема ПРМ и процесса погрузки, разгрузки.
Список литературы
1 Ковалев В.А., Автомобильный транспорт и доставка грузов, учеб. пособ., КГТУ, Красноярск, 1997,145с.
2 Краткий автомобильный справочник, М:1994, 779с
3 Дегтерев Г.Н. Организация погрузочно-разгрузочных работ на автомобильном транспорте, Транспорт М:1980, 264с.
4 Ковалев В. А., Организация грузовых автомобильных перевозок , учеб. пособ. КГТУ, Красноярск, 2001, 180с.
|