Банк рефератов содержит более 364 тысяч рефератов, курсовых и дипломных работ, шпаргалок и докладов по различным дисциплинам: истории, психологии, экономике, менеджменту, философии, праву, экологии. А также изложения, сочинения по литературе, отчеты по практике, топики по английскому.
Волгоградская государственная сельскохозяйственная академия
курсовой Проэкт
На тему: «Обоснование оптимальной электротехнической службы в хозяйстве.»
Выполнила: студентка зССО
ф-та «Электрификация с/х»
Группа: 32
ЯнюшкинаС.И.
Проверил: Курапин В.Н.
Волгоград 2011
Аннотация
Курсовой проект посвящен разработке организационных и технических мероприятий по проведению планово-предупредительного ремонта электрооборудования.
КУРСОВАЯ РАБОТА
изм
лист
№ документа
Подпись
Дата
Разработал
Янюшкина СИ
Обоснование оптимальной электротехнической службы в хозяйстве
ЛИТЕР
ЛИСТ
ЛИСТОВ
Проверил
Курапин В.Н.
У
1
ВГСХА Эл. зССО-32
Введение
Правильная организация технического обслуживания и ремонта позволяет поддерживать электрооборудование в исправном состоянии в течении всего периода эксплуатации и обеспечивает его бесперебойную и экономическую работу.
Высокий уровень эксплуатационной надежности электрооборудования может быть обеспечен благодаря четкой организации и современному оснащению ремонтного производства, соблюдению правил технической эксплуатации, качественному выполнению операций по обслуживанию и ремонту электрооборудования.
Техническое обслуживание состоит из комплекса организационно технических мероприятий , повышающих надежность, долговечность и техническую готовность электрооборудования в процессе эксплуатации.
При эксплуатации электрооборудования его техническое состояние непрерывно изменяется из-за износа и поломок деталей, нарушений регулировок , ослабление креплений и пр. даже незначительная неисправность , если её своевременно не обнаружить и не устранить , может привести к выходу из строя электрооборудования, а в некоторых случаях к аварии.
Одной из наиболее действительных мер по поддержанию электрооборудования на высоком техническом уровне и значительному продлению его работоспособности является своевременный и качественный ремонт.
Поэтому задачей данного курсового проекта является такая организация работы электротехнического персонала, которая способна повысить эффективность работы всех электроустановок.
Янюшкина
КУРСОВАЯ РАБОТА
листТ с
Курапин В.Н.
2
Изм
лист т
№ документа
Подпись
Дата
I. Основная часть
1.1. Анализ хозяйственной деятельности
Завод по производству гипса, гипсовых строительных материалов и изделий расположен г.Михайловка Волгоградской обл.
Режим работы производства непрерывный: 350 дней в году, в 2 смены по 12 часов.
В цехе по производству сухих строительных смесей расположены 3 линии. Первая выпускает сухие смеси на цементной основе. Вторая производит смеси на основе гипсового вяжущего. Третья (рассматривается в данной курсовой работе) также производит на основе гипсового вяжущего.
Описание технологического процесса.
Компоненты сухой смеси (известняковая мука, песок кварцевый, кальцит и др.) с помощью шнеков подаются через весовой дозатор в смеситель периодического действия. В этот же смеситель через специальный люк вводятся химические добавки. По истечении времени смешивания, определяемого рецептом смеси, производится разгрузка смесителя в бункер вращающейся фасовочной машины. Фасовка сухих строительных смесей производятся бумажные мешки по 15-30 кг. Расфасованные сухие смеси транспортируются конвейерами на участок паллетизации сухих строительных смесей. Здесь мешки укладываются на поддоны и упаковываются в полиэтиленовую плёнку.
Общая площадь цеха по производству сухих строительных смесей составляет 5508,0 м2
Потребность в энергоносителях цеха по производству сухих строительных смесей Ру=929,4кВт.
Электрооборудование производства сухих строительных смесей относятся к электрооборудованию общего назначения или общепромышленному.
Янюшкина
КУРСОВАЯ РАБОТА
лист ст
Курапин В.Н.
3
Изм
лист т
№ документа
Подпись
Дата
1.2. Разработка организационных и технических мероприятий по
техническому обслуживанию и ремонту электрооборудования
Планирование работ по техническому обслуживанию и ремонту осуществляется в виде годового графика.
Исходными данными для составления графика являются: сведения по паспортизации электрооборудования объекта; периодичность проведения работ по обслуживанию и ремонту с учетом коэффициента сезонности и продолжительности работы электрооборудования в смену.
Рассмотрим процесс составления и расчета графика на примере питателя роторного, находящегося в линии подачи микрокалицита участка по производству сухих строительных смесей на основе гипсового вяжущего.
Колонки № 1-4 являются исходными данными для составления графика.
Колонка № 5 «Количество условных единиц УЕЭ». В данной колонке количество оборудования умножается на переводной коэффициент (Приложение 2 «Коэффициенты перевода электротехнического оборудования в условные единицы») с учетом окружающей среды (колонка № 6). В нашем случае: 201*0,67=134,94 условных единицы.
Колонка № 6 «Окружающая среда»: по характеру помещение цеха по производству сухих строительных смесей относится к пыльным помещениям. Электрооборудование данного цеха имеет степень защиты IР44.
Колонка № 7 «Число часов работы в сутки». Выбирается для каждого оборудования индивидуально, исходя из технических данных оборудования и условий эксплуатации. Для питателя роторного принимаем число работы в сутки равным 8.
Колонка № 8 «Число месяцев работы в году». Для всего оборудования принимаем число месяцев работы в году равным 12.
Колонки №№ 9-10 «Нормированная периодичность ТО и ТР». Данные колонки заполняются в соответствии с Приложением 1 «Периодичность проведения работ по ТО и ТР электрооборудования». Нормированная периодичность для питателя роторного ТО=3; ТР=24.
Колонки №№ 11-12 «Скорректированная периодичность ТО и ТР».
При заполнении данных колонок следует учитывать: 1) при работе электродвигателей
Янюшкина
КУРСОВАЯ РАБОТА
лист ст
Курапин В.Н.
7
Изм
лист т
№ документа
Подпись
Дата
При работе электродвигателя от 8 до 12 часов скорректированная периодичность равна нормированной. При использовании двигателя менее 8 часов в сутки скорректированную периодичность ТО и ТР умножаем на коэффициент 1,7 , а при использовании электродвигателя более 16 часов в сутки скорректированную периодичность умножаем на коэффициент 0,75.
Колонки №№ 13-24. В данных колонках распределяются работы по ТО и ТР на год по месяцам в соответствии со скорректированной периодичностью при условии, что последняя дата проведения ТР нам неизвестна.
Колонки №№ 25-26 «Нормированные затраты труда на один ТО и ТР». Нормированные затраты труда приведены в Приложениях 2-12 «Трудоемкость технического обслуживания и текущего ремонта».
1.2.1. Трудоемкость технического обслуживания и текущего ремонта
Годовые затраты труда в человеко-часах на ТО и ТР электрооборудования являются основой для определения объема работ электротехнической службы и количества обслуживающего электротехнического персонала. Суммарные затраты (колонка № 27) определяется как сумма затрат труда на ТО и ТР i
-го вида оборудования с количеством единиц оборудования п
:
3i=п(3ТОi·ΣпТО
+3ТРi·ΣпТР
)
Для питателя роторного: 3=2(3·0,3+1·3,9)=9,6
чел.час.
Янюшкина
КУРСОВАЯ РАБОТА
лист
Курапин В.Н.
8
Изм
лист т
№ документа
Подпись
Дата
1.3. Обоснование структуры и штата электротехнической службы
Энергетическая служба комплектуется штатом специалистов, инженерно-технических работников, электриков, электромонтеров, теплотехников и других специалистов в зависимости от наличия и количества действующих энергетических установок. Состав инженерно-технических работников энергетической службы определяется по типовым нормативам в зависимости от количества условных единиц электрических установок в хозяйстве и годового потребления электроэнергии на производственные нужды.
Количество персонала в группе определяется по формуле:
где:
к
– коэффициент, учитывающий удаленность электрооборудования от центрального пункта ТО. к=1,08
при l=5
км, l
– средняя удаленность электрооборудования от центрального пункта ТО до производственного объекта, содержащего электродвигатели, км;
З
– годовые затраты труда на ТО и ТР, чел.-ч.;
Ф
– годовой фонд рабочего времени одного рабочего
где:
dк
– число календарных дней;
dв
– число выходных дней;
dп
– число праздничных дней;
dо –
число отпускных дней;
t
– средняя продолжительность рабочей смены, t= 8,2
ч (при двух выходных днях в неделю)
q-
коэффициент, учитывающий потери рабочего времени по уважительным причинамq=0,96
;
в
– число часов, на которое укорочен предпраздничный день – в=1
;
dпп
– число праздничных дней.
час.
Тогда чел.
Количество персонала в дежурной (оперативной) группе определяем по
Янюшкина
КУРСОВАЯ РАБОТА
лист
Курапин В.Н.
9
Изм
лист т
№ документа
Подпись
Дата
формуле:
чел.
Общее количество персонала определяем по формуле:
чел.
Таким образом, принимаем 1 человека, с оплатой труда 1,5 ставки.
Янюшкина
КУРСОВАЯ РАБОТА
лист т
Курапин В.Н.
10
Изм
лист т
№ документа
Подпись
Дата
1.4. Проектирование пункта (поста электрика) для проведения работ
по техническому обслуживанию и текущему ремонту электрооборудования
Материально-техническая база для ремонта и обслуживания должна включать как стационарные пункты, так и передвижные мобильные средства. К стационарным относятся посты электрика, пункты технического обслуживания, ремонтно-производственные базы.
Пост электрика предназначен для проведения работ по профилактике, техническому обслуживанию, мелкому ремонту электрооборудования отдельных энергонасыщенных объектов. Пост электрика размещают в одном из помещений обслуживаемого объекта. Пункт технического обслуживания предназначен для проведения ремонтных работ силового электрооборудования, пуско-защитной аппаратуры и аппаратуры автоматики, проведения подготовительно-монтажных работ, а также для испытаний, настройки и регулировки электрооборудования, хранения инструмента, материалов и защитных средств. Пункт технического обслуживания размещают, как правило, на центральной усадьбе хозяйства.
Электроизмерительные передвижные автолаборатории предназначены для проведения профилактики, диагностики, текущего ремонта, наладки и настройки аппаратуры управления на местах установки электрооборудования.
1.4.1. Определение годовой программы ремонтного предприятия
Годовая программа ремонтного предприятия определяется исходя из годового объема работ по текущему ремонту электрооборудования, выраженного в условных единицах ремонта УЕР. Под УЕР понимают затраты на ТО и ТР электродвигателя условной мощностью 5 кВт закрытого исполнения напряжением 380/220 В с частотой вращения 1500 мин-1
.
Трудоемкость одной условной единицы составляет:
технический учет - 0,5 чел.-час.;
замена смазки - 0,25 чел.-час.;
Янюшкина
КУРСОВАЯ РАБОТА
лист т
Курапин В.Н.
11
Изм
лист т
№ документа
Подпись
Дата
текущий ремонт - 4,8 чел.-час.;
капитальный ремонт - 12,5 чел.-час.
При известном годовом объеме ТО и ТР электрооборудования и трудоемкости этого вида работы годовая программа ремонтного предприятия может быть определена по формуле:
УЕР
1.4.2. Расчет производственных площадей и компоновка
индивидуальной базы
Производственная площадь поста электрика определяется в зависимости от годовой программы и количества электромонтеров группы ремонта.
Ориентировочно общая площадь может быть определена по объему электрооборудования объекта в УЕР
:
где: р1
– удельная норма площади на 1 УЕР,
при N<1000 р1
=0,1;
NУЕР –
количество УЕР
на объекте.
м2
Общая площадь может быть также рассчитана по количеству электромонтеров группы ремонта и аварийной бригады
где: р2
– удельная норма площади на одного электрика группы ремонта и аварийной бригады,
при m ≤ 8 р2
=25
м2
/человека
м2
, принимаем Fе
=25 м2
Распределение площадей между участками и отдельными помещениями ориентировочно может быть принято следующим:
- участок очистки и разборки – 10 %;
- силового оборудования – 30 %;
Янюшкина
КУРСОВАЯ РАБОТА
лист т
Курапин В.Н.
12
Изм
лист т
№ документа
Подпись
Дата
- ремонта пуско-защитной аппаратуры – 15%;
- ремонта, пропитки, сушки обмоток – 10 %;
- склад – 15 %;
- помещение для персонала 20 %.
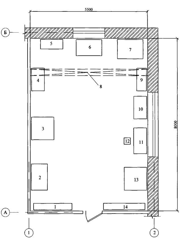
План ремонтно-производственной базы приведен на рисунке 1.4.1.
Для организации ремонта электрооборудования может быть рекомендована технологическая схема, представленная на рисунке 1.4.2.
Каждый участок должен быть оснащен технологическим оборудованием, приспособлениями, приборами и инструментами в зависимости от технологии ремонта и вида электрооборудования. Перечень приборов и инструментов приведен в таблице 1.4.1.
Янюшкина
КУРСОВАЯ РАБОТА
лист т
Курапин В.Н.
13
лист т
№ документа
Подпись
Дата
М 1:50
Рис.1.4.1. План ремонтно-производственной базы
Янюшкина
КУРСОВАЯ РАБОТА
лист т
Курапин В.Н.
15
лист т
№ документа
Подпись
Дата
Экспликация оборудования ремонтно-производственной базы
Позиция
Наименование
Количество
Примечание
1
Стеллаж для поступающих на ремонт электрических машин
1
шт.
2
Верстак для разборки
1
шт.
3
Камера для очистки
1
шт.
4
Верстак для ремонта деталей
1
шт.
5
Шкаф для запасных деталей
1
шт.
6
Пропиточная ванна
1
шт.
7
Сушильный шкаф
1
шт.
8
Кран-балка
1
шт.
9
Стеллаж для деталей
1
шт.
10
Верстак для сборки
1
шт.
11
Канцелярский стол
1
шт.
12
Стул
1
шт.
13
Обкаточный стенд
1
шт.
14
Стеллаж для отремонтированного оборудования
1
шт.
Янюшкина
КУРСОВАЯ РАБОТА
лист т
Курапин В.Н.
16
лист т
№ документа
Подпись
Дата
Схема технологии капитального ремонта электрооборудования
Реставрация
Комплектация
Пропитка
и сушка электродвигателей
Склад
Испытательная станция
Сборка
Окраска
Слесарно-механический ремонт
Ремонтный
фонд
Разборка
и дефектовка
Янюшкина
КУРСОВАЯ РАБОТА
лист т
Курапин В.Н.
17
лист т
№ документа
Подпись
Дата
1.5. Технико-экономические показатели
Технико-экономическая эффективность электротехнической службы оценивается по минимуму приведенных затрат на эксплуатацию и ремонт электрооборудования до и после ее организации:
Где Ен
=0,15-
коэффициент экономической эффективности капитальных вложений;
К
– капитальные затраты на организацию ремонтно-производственной базы, руб.;
И
– суммарные годовые издержки производства, связанные с проведением работ по ТО и ТР электрооборудования, руб.;
У
– ущерб, определяемый затратами на ремонт электродвигателя и транспортные расходы, а также порчей продукции, вызванной выходом электродвигателя из строя, руб.
1.5.1. Расчет капитальных вложений
Капитальные вложения определяются путем суммирования затрат в стационарные пункты и мобильные средства, а также в технологическую оснастку электроучастка:
руб.
1000р – сметная стоимость;
600р – стоимость технологической оснастки;
30 – переводной коэффициэнт.
1.5.2. Расчет издержек производства
Стоимость работ по ТО и ТР складывается из затрат на основную и дополнительную заработную плату Изп
, материалы Им
, амортизацию и текущий ремонт Ирем
На практике слагаемые затраты рассчитываются по фактическим данным электротехнической службы хозяйства. В курсовой работе воспользуемся ориентировочно данными затрат на одну условную единицу ремонта из таблицы « Стоимость работ для условной единицы ремонта». В таблице данные приведены для централизованной службы Агропромэнерго, для индивидуальной службы значения полной стоимости на 20-25% меньше.
руб.
1.5.3. Расчет ущерба
Экономический ущерб от выхода из строя электрооборудования складывается из: Ур
– ущерба, вызванного затратами на замену электрооборудования; Ут
- технологического ущерба, включающего издержки от недовыпуска продукции и дополнительных затрат, обусловленных простоем рабочих, оборудования и других отрицательных последствий.
где: уР
, уТ
– удельный ущерб на замену единицы электрооборудования и технологический ущерб;
п
– количество единиц, вышедшего из строя электрооборудования.
Расходы на замену электродвигателя, определяемые стоимостью ремонта и транспортными расходами, принимаем равными уР
=41,6·30=1248
руб.
Общее количество электродвигателей N=110
.
Количество электродвигателей, вышедших из строя для базового варианта пб
=0,4·110=44
Количество электродвигателей, вышедших из строя для базового варианта пб
=0,1·110=11
Обозначим через Х
– удельный производственный ущерб, вызванный нарушением технологии из-за выхода из строя электродвигателя, уТ
. Тогда
Янюшкина
КУРСОВАЯ РАБОТА
лист т
Курапин В.Н.
19
лист т
№ документа
Подпись
Дата
Приравнивая приведенные затраты в базовом и расчетном вариантах, получим
руб./двигатель
Находим приведенные затраты и ущерб базового варианта
руб.
Ущерб расчетного варианта
руб.
Приведенные затраты ремонтного варианта
руб.
Сроки окупаемости, лет:
Вывод: если реальный производственный ущерб на один двигатель будет больше расчетного Х
, то расчетный вариант более эффективен.
Основные технико-экономические показатели
сравниваемых вариантов
Таблица 1.5.1
Показатели
Сравниваемые варианты
Базовый
Расчетный
Количество УЕЭ
-
-
Количество УЕР
312,8
312,8
Количество электромонтеров,чел.
-
2
Количество электродвигателей, шт.
110
110
Выход из строя электродвигателей, шт.
44
11
Капитальные затраты, руб.
-
48000
Годовые издержки производства, руб.
-
81227,904
Ущерб хозяйства, руб.
117903,72
29475,93
Приведенные затраты, руб.
117903,72
117903,83
Срок окупаемости
-
6,67
Янюшкина
КУРСОВАЯ РАБОТА
лист т
Курапин В.Н.
20
лист т
№ документа
Подпись
Дата
Приложение 1.
Перечень приборов и инструмента участка текущего
ремонта электрических машин и другого силового электрооборудования
Поз.
Наименование
Тип, марка, ГОСТ или номер рабочих чертежей
Краткая техническая характеристика, основные размеры или пределы измерений
Кол-во
Прим.
Приборы
1
Аппарат
ВЧФ-5-3
1
шт.
2
Комплект измерительных приборов
К-51
1
шт.
3
Измеритель заземления
МС-08
1
шт.
4
Мост постоянного тока
Р-335
1
шт.
5
Комбинированный прибор
Ц-4326
1
шт.
6
Амперметр
Э-59
0-5-10 А
1
шт.
7
Вольтметр
Э-59
0-150-300-600 В
1
шт.
8
Трансформатор тока
И-59
1
шт.
9
Токоизмерительные клещи
Ц-91
1
шт.
10
Мегаомметр
М503 или М1101М
500 В
1
шт.
11
Динамометр пружинный
ГОСТ 9409-60
0-800 г
1
шт.
12
Термометр
ГОСТ 2823-73
0-150° С
1
шт.
Инструмент
1
Микрометр
ГОСТ 6507-60
0-25, 35-50, 50-75, 75-100
4
шт.
2
Штангенциркуль
ГОСТ 166-63
0-125, 0-200
2
шт.
3
Набор щупов
ГОСТ 882-64
№ 3, № 5
2
шт.
4
Зубило слесарное
ГОСТ 7211-54
20х60°
1
шт.
5
Напильник полукруглый
ГОСТ 1465-69
2
шт.
6
Напильник плоский
ГОСТ 1465-69
2
шт.
7
Напильник трехгранный
100х300
1
шт.
8
Индикатор часового типа
ГОСТ 577-68
10 мм
1
шт.
9
Плоскогубцы комбинированные
ГОСТ 5547-52
200 мм
2
шт.
10
Отвертка
А300х1,8
1
шт.
11
Линейка измерительная металлическая
ГОСТ 427-56
150, 300, 500 мм
3
шт.
12
Электродрель
А59
0,75 кВт, диаметр сверла до 26 мм
1
шт.
13
Паяльник электрический
ГОСТ 7219-69
200 В
1
шт.
Янюшкина
КУРСОВАЯ РАБОТА
лист т
Курапин В.Н.
21
лист т
№ документа
Подпись
Дата
Литература
1. Ерошенко Г.П. Исследование электрооборудования в сельском хозяйстве. Саратовский СХИ. Саратов, 1979.
2. Ерошенко Г.П., Пястолов А.А. Курсовое и дипломное проектирование по эксплуатации электрооборудования. М.: Агропромиздат, 1988. С.160.
3. Сырых Х.Х. Эксплуатация сельских электроустановок. М.: Агропромиздат, 1986. С.225.
4. Таран В.П. Техническое обслуживание оборудования в сельском хозяйстве. М.: «Колос», 1975 г. 304 с. с ил.
5. Таран В.П., Андриец В.К., Синельников А.К. Справочник по эксплуатации электроустановок. М.: Колос,1983. с.221.
Янюшкина
КУРСОВАЯ РАБОТА
лист т
Курапин В.Н.
21
лист т
№ документа
Подпись
Дата
Комментарии:
Привет студентам) если возникают трудности с любой работой (от реферата и контрольных до диплома), можете обратиться на FAST-REFERAT.RU , я там обычно заказываю, все качественно и в срок) в любом случае попробуйте, за спрос денег не берут)