| Министерство образования Российской Федерации
Уральский государственный технический университет
КУРСОВАЯ РАБОТА
по предмету “Взаимозаменяемость, стандартизация
и технические измерения”
Студент:
Преподаватель:
г. Екатеринбург
2001 год
Часть 1. ЧЕТЫРЕ ПОСАДКИ
| Вариант
|
Посадки
|
| 15
|
20H7/g6
|
45H6/m5
|
60H6/p5
|
80D9/h9
|
1) Определить наибольшие, наименьшие предельные размеры и допуски размеров деталей, входящих в соединение;
1.1 Для посадки 20H7/g6
20H7: ES = +21 мкм EI = 0 мкм
20g6: es = -7 мкм ei = -20 мкм
Предельные размеры отверстия:
Dmax
= D + ES = 20 + 0,021 = 20,021
мм
Dmin
= D + EI = 20 + 0 = 20,000
мм
Допуск на размер отверстия:
TD
= Dmax
- Dmin
= 20,021 – 20,000 = 0,021
мм
Предельные размеры вала:
dmax
= d + es = 20 + (-0,007) = 19,993
мм
dmin
= d + ei = 20 + (-0,020) = 19,980
мм
Допуск на размер вала:
Td
= dmax
- dmin
= 19,993 – 19,080 = 0,013
мм
1.2 Для посадки 45H6/m5
45H6: ES = +16 мкм EI = 0 мкм
45m5: es = +20 мкм ei = +9 мкм
Предельные размеры отверстия:
Dmax
= D + ES = 45 + 0,016 = 45,016
мм
Dmin
= D + EI = 45 + 0 = 45,000
мм
Допуск на размер отверстия:
TD
= Dmax
- Dmin
= 45,016 – 45,000 = 0,016
мм
Предельные размеры вала:
dmax
= d + es = 45 + 0,020 = 45,020
мм
dmin
= d + ei = 45 + 0,009 = 45,009
мм
Допуск на размер вала:
Td
= dmax
- dmin
= 45,020 – 45,009 = 0,011
мм
1.3 Для посадки 60H6/p5
60H6: ES = 19 мкм EI = 0 мкм
60p5: es = +45 мкм ei = +32 мкм
Предельные размеры отверстия:
Dmax
= D + ES = 60 + 0,019 = 60,019
мм
Dmin
= D + EI = 60 + 0 = 60,000
мм
Допуск на размер отверстия:
TD
= Dmax
- Dmin
= 60,019 – 60,000 = 0,019
мм
Предельные размеры вала:
dmax
= d + es = 60 + 0,045 = 60,045
мм
dmin
= d + ei = 60 + 0,032 = 60,032
мм
Допуск на размер вала:
Td
= dmax
- dmin
= 60,045 – 60,032 = 0,013
мм
1.4 Для посадки 80D9/h9
80D9: ES = +174 мкм EI = +100 мкм
80h9: es = 0 мкм ei = -74 мкм
Предельные размеры отверстия:
Dmax
= D + ES = 80 + 0,174 = 80,174
мм
Dmin
= D + EI = 80 + 100 = 80,100
мм
Допуск на размер отверстия:
TD
= Dmax
- Dmin
= 80,174 – 80,100 = 0,074
мм
Предельные размеры вала:
dmax
= d + es = 80 + 0 = 80,000
мм
dmin
= d + ei = 80 + (-0,074) = 79,926
мм
Допуск на размер вала:
Td
= dmax
- dmin
= 80,000 – 79,926 = ï-0,074ï = 0,074
мм
2) Определить наибольшие, наименьшие, средние зазоры и натяги и допуски посадок;
2.1 Для посадки 20H7/g6
Зазоры:
Smax
= Dmax
- dmin
= 20,021 - 19,980 = 0,041
мм
Smin
= Dmin
- dmax
= 20,000 - 19,993 = 0,007
мм
Sm
= (Smax
+ Smin
)/2 = (0,041+0,007)/2 = 0,024
мм
Допуск посадки:
TS = Smax
- Smin
= 0,041 - 0,007 = 0,034
мм
2.2 Для посадки 45H6/m5
Максимальный зазор:
Smax
= Dmax
- dmin
= 45,016 – 45,009 = 0,007
мм
Максимальный натяг:
Nmax
= dmax
- Dmin
= 45,020 – 45,000 = 0,020
мм
Допуск посадки:
TS(TN) = TD
+ Td
= 0,016 - 0,011 = 0,027
мм
2.3 Для посадки 60H6/p5
Натяги:
Nmax
= dmax
- Dmin
= 60,045 – 60,000 = 0,045
мм
Nmin
= dmin
- Dmax
= 60,032 – 60,019 = 0,013
мм
Nm
= (Nmax
- Nmin
)/2 = (0.045 – 0.013)/2 = 0,016
мм
Допуск посадки:
TN = Nmax
- Nmin
= 0.045 – 0.013 = 0,032
мм
2.4 Для посадки 80D9/h9
Зазоры:
Smax
= Dmax
- dmin
= 80,174 - 79,926 = 0,248
мм
Smin
= Dmin
- dmax
= 80,100 - 80,000 = 0,100
мм
Sm
= (Smax
+ Smin
)/2 = (0,248+0,100)/2 = 0,174
мм
Допуск посадки:
TS = Smax
- Smin
= 0,248 - 0,100 = 0,148
мм
полученные данные занести в таблицу (мм);

3) Построить схемы расположения полей допусков деталей, входящих в соединения;

4) Назначить средства для контроля (измерения) размеров деталей, входящих в соединения (тип производства назначает и обосновывает студент);
Назначаем тип производства – серийное
Тогда:
- для контроля размера вала Æ20H7+0.021
будем использовать калибр - пробку с проходными и непроходными губками.
- для контроля размера отверстия Æ20g6-0.007
будем использовать пневматический ротаметр. -0.020
5) выполнить эскиз одного из 4 соединений (по выбору студента) с обозначением посадки в соединении и эскизы деталей, входящих в это соединение, с указанием на них обозначения точности размеров (номинальный размер, обозначение поля допуска и квалитета, предельные отклонения).
 Часть 2. ФОРМА И РАСПОЛОЖЕНИЕ ПОВЕРХНОСТЕЙ
1) Изобразить эскиз детали с указанием на заданных поверхностях обозначений отклонений формы и расположения поверхностей;
2) Охарактеризовать заданные поверхности;
а) – плоская, полуоткрытая поверхность
b) – цилиндрическая, внутренняя, открытая поверхность
3) Расшифровать обозначения отклонений формы и расположения заданных поверхностей , в том числе указать размерность числовых отклонений;

Допуск перпендикулярности – обозначает наибольшее допускаемое значение отклонения от перпендикулярности (мм).

Допуск параллельности – обозначает наибольшее допускаемое значение отклонения от параллельности.
Размерность допусков формы и расположения поверхностей задается в миллиметрах.
4) По допуску формы или расположения установить степень точности;
Определяем по справочнику табл. 2.11 [3, стр. 381]

При h = 240 степень точности – 9

При L = 380 степень точности – 10
5) Изобразить схемы измерения отклонений;
Для контроля допуска перпендикулярности:
Для контроля допуска параллельности:
Часть 3. ШЕРОХОВАТОСТЬ ПОВЕРХНОСТИ
1. Изобразить эскиз детали с указанием заданных обозначений шероховатости поверхностей;

2. Охарактеризовать заданную поверхность;
Наружная полуоткрытая поверхность заданного профиля
3. Расшифровать обозначение шероховатости поверхностей и в том числе указать размерность числового значения шероховатости;
Такое обозначение шероховатости предъявляет следующее требование к поверхности: поверхность должна быть образована удалением слоя материала, при этом шероховатость поверхности по Ra не должна превышать соответственно 12,5 и 3,2 (мкм).
Размерность задается в микрометрах.
4. Указать - предпочтительные или нет числовые значения шероховатости поверхностей;
Соответственно ГОСТ 2789-73 параметры шероховатости 12,5 и 3,2 являются предпочтительными.
5. Указать метод обработки для получения шероховатости.
Для получения параметра шероховатости 12,5 выбираем фрезерование, а для параметра 3,2 выбираем – зубодолбление.
Часть 4. РАСЧЕТ ПОСАДОК ПОДШИПНИКОВ КАЧЕНИЯ

Исходные данные:
| Обозначение подшипника
|
– 6
|
| Размеры d x D
|
– 90 x 160 мм
|
| Радиальная нагрузка
|
– 6000 Н
|
1) Установить вид нагружения каждого кольца подшипника;
По чертежу наружное кольцо воспринимает радиальную нагрузку, постоянную по направлению и ограниченную участком окружности дорожки качения и передает ее соответствующему ограниченному участку посадочной поверхности корпуса, следовательно характер нагружения – местный.
Внутреннее кольцо воспринимает радиальную нагрузку последовательно всей окружностью дорожки качения и передает ее последовательно всей посадочной поверхности вала, следовательно характер нагружения – циркуляционный.
2) Для кольца, имеющего циркуляционное нагружение, рассчитать интенсивность радиальной нагрузки по учебнику [1, с.237-239] или по справочнику [3, с.283];
По табл.4.92 [3, с.287] или по табл. 9.3 и 9.4 [1, с.238] установить поле допуска для вала или корпуса;
Интенсивность нагрузки подсчитывают по формуле
где Ff
—
радиальная нагрузка на опору; k1
, k
2
, k3
—
коэффициенты; b —
рабочая ширина посадочного места; b
= В — 2 r (В
— ширина подшипника; r —
координата монтажной фаски внутреннего или наружного кольца подшипника).
Динамический коэффициент посадки k1
зависит от характера нагрузки: при перегрузке до 150 %, умеренных толчках и вибрации K1
= 1; при перегрузке до 300 %, сильных ударах и вибрации k1
=
1,8.
Коэффициент k2
учитывает степень ослабления посадочного натяга при полом вале или тонкостенном корпусе: при сплошном вале k2
= 1.
Коэффициент k3
учитывает неравномерность распределения радиальной нагрузки Ff
между рядами роликов в двухрядных конических роликоподшипниках или между сдвоенными шарикоподшипниками при наличии осевой нагрузки Ff
на опору.
В нашем случае k1
= k2
= k3
= 1
По ГОСТ 8338-75 определяем для нашего подшипника 90 х 160:
В = 30мм; r = 1.5мм
Рассчитываем интенсивность нагрузки:

По табл. 9.3 из справочника [1, с.238] устанавливаем поле допуска для вала: Æ90js6(±0.011)
3) Для кольца, имеющего местное нагружение, поле допуска присоединительной поверхности (вал или корпус) выбрать по табл. 4.89 справочника [3, с.28б] или табл. 9.6 [1, c.239];
По табл. 9.6 из справочника [1, c.239] устанавливаем поле допуска для корпуса: Æ160H7(+0.025
)
4) В случае колебательного нагружения кольца подшипника поле допуска присоединительной поверхности (вал или корпус) устанавливается также по табл. 4.95 справочника [3, с.289-290];
–
5) Построить схему расположения полей допусков колец подшипника и присоединительных поверхностей вала и корпуса. Числовые значения предельных отклонений посадочных размеров колец подшипников берутся из таблиц справочника [3, c.273-281] или из других справочников по подшипникам качения;
Предельные отклонения:
| для внутреннего кольца
|
– 90(-0,020
)
|
| для наружного кольца
|
– 160(-0,025
)
|
6) Выполнить эскизы посадочных мест вала и корпуса. Шероховатость поверхности вала и корпуса и допуски формы и расположения поверхности берутся из справочника [3, с.288-296] или из другой справочкой литературы по подшипникам качения.

Эскизы посадочных мест

Часть 5. НАЗНАЧЕНИЕ И ОБОСНОВАНИЕ ПОСАДОК
ШПОНОЧНОГО СОЕДИНЕНИЯ И ЕГО КОНТРОЛЬ

Исходные данные:
| Шпоночное соединение
|
– 16
|
| Номин. размер соединения
|
– 8 мм
|
1) Установить и обосновать тип шпоночного соединения (свободное, нормальное или плотное);
Устанавливаем тип соединения – нормальное т.к. производство – серийное.
2) Назначить поля допусков и квалитеты для деталей, входящих в соединение: шпонка, паз вала, паз втулки. Для этого воспользоваться рекомендациями в [1, с.334] или [3, с.237,238];
По табл. 4.64 справочника [3, с.235] выбираем сечение шпонки для диаметра вала Æ8 – b´h = 2´2 мм.
По табл. 4.65 справочника [3, с.237] выбираем предельные отклонения:
| - для ширины шпонки
|
- h9
|
es = 0, ei = -25 мкм
|
| - для ширины паза на валу
|
- N9
|
ES = 0, EI = -25 мкм
|
| - для ширины паза во втулке
|
- Js9
|
ES = +13, EI = -13 мкм
|

Вычисляем предельные зазоры и натяги.
В соединении шпонки с пазом вала (N9/h9)
Smax
= ES – ei = 0 – (-25) = 25 мкм
Nmax
= es – EI = 0 – (-25) = 25 мкм
В соединении шпонки с пазом втулки (Js9/h9)
Smax
= ES – ei = 13 – (-25) = 38 мкм
Nmax
= es – EI = 0 – (-13) = 13 мкм
3) Вычертить в масштабе (поперечный разрез) вал и втулку с указанием номинального размера по ширине шпоночных пазов, квалитета, поля допуска и предельных отклонений, а также шероховатости, допусков формы и расположения поверхностей;
4) Назначить средства для контроля деталей шпоночного соединения. Калибры для шпоночных соединений установлены в ГОСТ 24109-80, 24121-80, рекомендации по контролю даны в [3, с.248,249].
Контроль шпоночных соединений в серийном и массовом производстве осуществляют специальными предельными калибрами: ширина пазов вала и втулки Ь
проверяется пластинами, имеющими проходную и непроходную сторону (рис. а); размер (d +
t2
у
отверстия) — пробками со ступенчатой шпонкой (рис. б); глубина паза вала (размер t1
) — кольцевыми калибрами, имеющими стержень с проходной и непроходной ступенью (рис. в).
Допуски этих типов калибров принимаются равными допускам гладких калибров, имея и виду зависимые допуски расположения.
Симметричность пазов относительно осевой плоскости проверяют комплексными калибрами: у отверстия — пробкой со шпонкой (рис. г), а у вала — накладной призмой с контрольным стержнем (рис. д).
Проектирование комплексных калибров для шпоночных соединений необходимо производить с учетом максимальных размеров сопрягаемых деталей.
После сборки контроль шпоночного соединения производят путем установления биения охватывающей детали, покачиванием охватывающей детали на валу и перемещением охватывающей детали вдоль вала (в случае подвижного соединения).
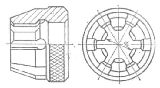
 Часть 5. НАЗНАЧЕНИЕ ПОСАДОК ШЛИЦЕВЫХ СОЕДИНЕНИЙ
И ИХ КОНТРОЛЬ

Исходные данные:
| Шлицевое соединение
|
– 9
|
| Размер 2´d´D
|
– 10´42´52 мм
|
1) Назначить метод центрирования соединения;
Назначаем неподвижное центрирование по наружному диаметру.
2) Назначить посадки по центрирующим и не центрирующим элементам соединения. Посадку выбирают из табл. 4.72, 4.73, 4.74, 4.75 справочника [3,c.252-253] в зависимости от принятого метода центрирования и характера соединения (подвижное или неподвижное), в первую очередь назначить предпочтительные посадки;
Для центрирующего диаметра D=52 выбираем посадку 
По боковым сторонам зубьев b=6 выбираем посадку 
Для не центрирующего диаметра втулки d=42 выбираем посадку H11
, а диаметр вала d1
=36,9.
Предельные отклонения сводим в таблицу:
| Предельные отклонения и допуски шлицевых соединений, мкм
|
| Втулка
|
Вал
|
| D=52H7
|
B=5F8
|
d=42h11
|
D=52g6
|
b=6js7
|
d1
£ d
|
| Верхнее отклонение
|
ES=+30
|
ES=+28
|
ES=+160
|
es=-10
|
es=+6
|
d1
=36.9
|
| Нижнее отклонение
|
EI=0
|
EI=+10
|
EI=0
|
ei=-29
|
ei=-6
|
| Допуск
|
TD=30
|
TB=18
|
Td=160
|
Td=19
|
Tb=12
|
3) Построить схемы расположения полей допусков шлицевых деталей по соединяемым элементам;
Вычисляем зазоры по центрирующим и нецентрирующим поверхностям:
| По D:
|
Smax
= ES - ei = 30 – (-29) = 59 мкм
|
| Smin
= EI - es = 0 – (-10) = 10 мкм
|
| По d:
|
Smax
= dmax
вт – d1
= 42 + 0.160 – 36.9 = 5.26 мм
|
| По b:
|
Smax
= ES - ei = 28 – (-6) = 32 мкм
|
| Smin
= EI - es = 10 – 6 = 4 мкм
|


4) Выполнить чертеж шлицевого соединения (поперечный или продольный разрез) и нанести на нем условное обозначение соединения по ГОСТ 1139-80. Чертеж выполняется на листах формата А4;
5) Выбрать средства для контроля заданных шлицевых деталей.
Для контроля шлицевого вала выбираем комплексный проходной колибр.

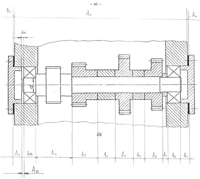
Часть 5. РАСЧЕТ СБОРОЧНЫХ РАЗМЕРНЫХ ЦЕПЕЙ

Исходные данные:
| Предельные отклонения АD
|
АD
= 0, ES = +1.1, EI = +0.3
|
| Размер d
|
= 40
|
| Подшипники качения
|
ES = 0, EI = -120 мкм
|
| Толщина прокладок
|
= 2-0.1
мм
|
| Толщина стопорных колец
|
= 3–0.1
мм
|
1. Определяем масштаб рисунка:
М = d / x = 40 / 12 = 3,3
2. Определяем увеличивающие (А2
, А3
, А4
) и уменьшающие (А1
, А5
, А6
, А7
, А8
, А9
, А10
, А11
, А12
, А13
, А14
) звенья, обозначив их начиная с АD
по часовой стрелке от А1
до Аn
(у нас А14
)

Общее число звеньев размерной цепи равно 15. Замыкающее звено АD
= 0, ES = +1,1, EI = +0,3. Составляющие звенья размерной цепи определяем согласно масштаба: А1
=26, А2
=2-0,1
, А3
=500, А4
=2-0,1
, А5
=26, А6
=36-0,12
, А7
=15, А8
=53, А9
=32, А10
=50, А11
=50, А12
=71, А13
=100, А14
=10.
Согласно схемам размерных цепей:
,
где – номинальный размер замыкающего звена,
и – номинальные размеры увеличивающих и уменьшающих размерных звеньев цепи.

Но у нас АD
= 0
Для выполнения равенства корректируем звено А3
:

3. Определим число единиц допуска
При решении задачи способом допусков одного квалитета предполагаем, что все составляющие цепь размеры выполняются по одному и тому же квалитету точности. А каждому квалитету точности соответствует вполне определенное число единиц допуска а.
То есть а
одинаково для всех звеньев размерной цепи.
Величина допуска каждого составляющего размера

где:
aj
- число единиц допуска соответствующего звена размерной цепи;
ij
-
единица допуска. Величина i
зависит от интервала размеров, в котором располагается соответствующий размер, и может быть определена по таблицам.
Так как по условии задачи принято одинаковое число единиц допуска для каждого звена, то среднее число единиц допуска для каждого звена можно обозначить am
.
Для определения am
используем формулу:

4. Определяем квалитет точности.
Принимаем am
=16, тогда квалитет точности – 7.
5. Назначаем допуски.
Назначаем допуски согласно 7-го квалитета точности по табли-цам допусков и вносим их в графу [5] табл.1.
В графу [6] записываем размер звена с отклонениями, в графу [7] – середину поля допуска, [8] и [9] соответственно – верхнее и нижнее отклонения.
Табл.1
| Исходные данные
|
Категория звена: увеличив. уменьш.
|
Единица допуска
|
Категория звена: вал, отверстие, уступ.
|
Допуск звена (по ГОСТ 25347-82), мм
|
Размер звена с отклоне-ниями, мм
|
Середина поля допуска, мм
|
Верхнее откло-нение, мм
|
Нижнее откло-нение, мм
|
| 1
|
2
|
3
|
4
|
5
|
6
|
7
|
8
|
9
|
| А1
=26
|
Умен.
|
1,31
|
Уступ
|
0,021
|
26±0,0105
|
0
|
+0,0105
|
-0,0105
|
| А2
=2 –0,1
|
Увел.
|
–
|
Вал
|
0,1
|
2 -0,1
|
-0,05
|
0
|
-0,1
|
| А3
=489
|
Увел.
|
3,89
|
Вал
|
0,063
|
489 -0,063
|
-0,0315
|
0
|
-0,063
|
| А4
=2 –0,1
|
Увел.
|
–
|
Вал
|
0,1
|
2 -0,1
|
-0,05
|
0
|
-0,1
|
| А5
=26
|
Умен.
|
1,31
|
Уступ
|
0,021
|
26±0,0105
|
0
|
+0,0105
|
-0,0105
|
| А6
=36-0,12
|
Умен.
|
–
|
Вал
|
0,12
|
36 -0,12
|
-0,06
|
0
|
-0,12
|
| А7
=15
|
Умен.
|
1,08
|
Вал
|
0,018
|
15 -0,018
|
-0,009
|
0
|
-0,018
|
| А8
=53
|
Умен.
|
1,86
|
Вал
|
0,030
|
53 -0,030
|
-0,015
|
0
|
-0,030
|
| А9
=32
|
Умен.
|
1,56
|
Вал
|
0,025
|
32 -0,025
|
-0,0125
|
0
|
-0,025
|
| А10
=50
|
Умен.
|
1,56
|
Вал
|
0,025
|
50 -0,025
|
-0,0125
|
0
|
-0,025
|
| А11
=50
|
Умен.
|
1,56
|
Вал
|
0,025
|
50 -0,025
|
-0,0125
|
0
|
-0,025
|
| А12
=71
|
Умен.
|
1,86
|
Вал
|
0,030
|
71 -0,030
|
-0,015
|
0
|
-0,030
|
| А13
=100
|
Умен.
|
2,17
|
Вал
|
0,035
|
100 -0,035
|
-0,0175
|
0
|
-0,035
|
| А14
=34-0,12
|
Умен.
|
–
|
Вал
|
0,12
|
34 -0,12
|
-0,06
|
0
|
-0,12
|
| АD
=
|
Умен.
|
–
|
–
|
0,8
|

|
+0,7
|
+1,1
|
+0,3
|
| АРЕГ
=50
|
Умен.
|
1,56
|
Вал
|
0,092
|

|
-0,63
|
-0,584
|
-0,676
|
6. Предварительная проверка решения.
Проверим зависимость замыкающего звена от составляющих:


7. Назначение регулирующего звена.
По предварительной проверке хотя при методе максимума-минимума, обеспечивающем полную взаимозаменяемость, должна была получиться максимальная величина допуска . Причиной разницы заданной и расчетной величин ТАд является отличие среднего расчетного числа единиц допуска (am
=19,72) и стандартного числа единиц допуска для выбранного квалитета (am
=16).
Для компенсации разницы в расчетном и табличном числе единиц допуска при расчете размерных цепей вводится регулирующее звено. В качестве регулирующего звена целесообразно использовать наиболее легко выполнимое звено, мы выбираем звено А3
.
8. Определение допусков и предельных отклонений регулирующего эвена.
Допуск регулирующего звена можно определить из зависимости (2), если представить ее в виде:

Отсюда:


Для определения положения поля допуска регулирующего звена определим координату середины поля допуска этого звена по зависимости:

где - координата середины поля допуска замыкающего звена; и координаты середины поля допуска увеличивающих и уменьшающих звеньев размерной цепи;
n -
число увеличивающих звеньев размерной цепи;
Р -
число уменьшающих звеньев размерной цепи.
Из зависимости (2) для регулирующего звена, назначенного из числа уменьшающих звеньев:


9. Определяем верхнее и нижнее предельные отклонения
регулирующего звена:


10. Решение проверочной (обратной) задачи
Решение обратной задачи начинается с проверки правильности назначения допусков по зависимости:

 
Равенство выдерживается. Допуски назначены правильно. Для расчета предельных отклонений используем зависимости:
Для верхнего предельного отклонения замыкающего эвена:

где:
- верхнее отклонение замыкающего эвена;
- верхние отклонения увеличивающих звеньев размерной цепи;
- нижние отклонения уменьшающих звеньев размерной цепи.

Равенство соблюдается.
Для нижнего предельного отклонения замыкающего ввена:


Равенство соблюдается.
Расчет размерной цепи полностью завершен.
|