Министерство общего и профессионального образования РФ
Кафедра строительных конструкций
Курсовой проект по дисциплине
"Металлические конструкции"
2009 г.
Реферат
В курсовом проекте выбрана схема проектируемой балочной площадки; произведен расчет стального настила; подобраны и проверены балки настила; рассчитана наиболее нагруженная главная балка площадки; определены расчетные усилия и произведена компоновка сечения с наибольшим изгибающим моментом и на расстоянии от опоры.
Произведена расстановка ребер жесткости и проверена местная устойчивость стенки. Рассчитана опорная часть балки, поясные швы. Произведен расчет монтажного стыка главной балки; наиболее нагруженной колонны; оголовка колонны; базы колонны.
Все расчеты произведены в соответствии с нормативной документацией.
Содержание
Исходные данные
1. Выбор схемы балочной клетки
2. Расчет стального настила
3. Компоновка балочной клетки
4. Определение высоты и размеров главной балки
5. Расчет соединения поясов со стенкой
6. Изменение сечения балки по длине
7. Правка местной и общей устойчивости элементов главной балки
8. Расстановка ребер жесткости
9. Расчет монтажного стыка главной балки
10. Расчет опорной части главной балки
11. Подбор и компоновка сечения сквозной колонны
12. Расчет базы колонны
13. Расчет оголовка колонны
Литература
Исходные данные
1. Шаг колонн в продольном направлении, А = 15 м.
2. Шаг колонн в поперечном направлении, В = 6 м.
3. Габариты площадки в плане, 3А×3В.
4. Отметка верха настила – 11 м.
5. Величина полезной нагрузки, р
= 22 кН/м2
.
6. Допустимый относительный прогиб настила 1
/200
.
7. Тип колонны: сквозная.
1. Выбор схемы балочной клетки
Балочная клетка представляет собой систему пересекающихся несущих балок, предназначенных для опирания настила перекрытий. В зависимости от схемы расположения балок балочные клетки подразделяются на 3 типа: упрощенные, нормальные и усложненные. В упрощенной балочной клетке нагрузка от настила передается непосредственно на балки, располагаемые параллельно короткой стороне перекрытия, затем на вертикальные несущие конструкции (стены, стойки). В балочной клетке нормального типа балки настила опираются на главные балки, а те на колонны или другие конструкции. В усложненной балочной клетке балки настила опираются на вспомогательные, которые крепятся к главным балкам.
Толщина настила зависит от полезной нагрузки:
при полезной нагрузке 10 кПа –
tн
= 6 мм
при полезной нагрузке 10 – 20 кПа –
tн
= 8 мм
при полезной нагрузке более 20 кПа –
tн
= 10 мм.
Тип балочной клетки выбирают путем анализа различных вариантов, сравнивая расход металла, технологические требования.
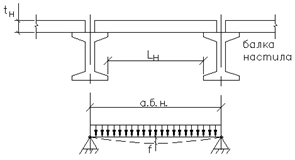
2. Расчет стального настила

t
н
– толщина настила; f
– прогиб; l
н
– допустимый пролет; а.б.н.
– шаг балок настила
При временной распределенной нагрузке 22 кПа
принимаем толщину настила 10 мм
.
Толщина настила на изгиб с распором можно вычислить приближенно из условия заданного предельного прогиба по формуле:
где 
Е1
– цилиндрическая жесткость настила.
При коэффициенте Пуассона ν
= 0,3
(для стали) Е1
определяется по формуле:



3. Компоновка балочной клетки
Сравним 2 варианта компоновки балочной клетки:
I вариант.
Пролет главной балки делим на 19 промежутков по 78,9 см.
Определяем вес настила, зная, что 1м2
стального листа толщиной 10 мм
весит 78,5 кг.
g = 78,5 кг/м2
= 0,785 кН/м2
Нормативная нагрузка на балку настила:
qn
= (pn
+ gn
)·a = (22 + 0,785)·0,789 = 28,88 кН
/м
= 0,29 кН
/см
Расчетная нагрузка на балку настила:
q = (np
·pn
+ng
·gn
)·a = (1,2·22 + 1,05·0,785)·0,789 = 21,48 кН
/м
Расчетный изгибающий момент для балки настила длинной 6 м
:

Требуемый момент сопротивления балки:

Принимаем двутавр №30 по ГОСТ 8239–72, имеющий: I
= 7080 см4
, W
=472
, вес g
= 36,5 кг/м
, ширину полки 13,5 см.
Проверяем на прогиб:
f = (5/384)·
ql4
/
EI
Принятое сечение балки удовлетворяет условиям прогиба и прочности, т. к. W
= 597 см3
>
Wтр
= 390,5 см3
.
Общую устойчивость балок настила проверять не надо т. к. их сжатые пояса надежно закреплены в горизонтальном направлении приваренным к ним настилом.
Определяем расход металла на 1м2
перекрытия: настил – 78,5 кг/м2
, балки настила g/
a
= 42,2/0,789 = 53,5 кг/м2
.
Весь расход металла: 78,5 + 53,5 = 132 кг/м2
= 1,32 кН/м2
.
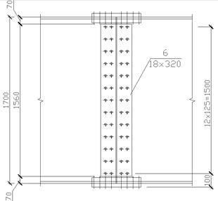
Рисунок 1 – Схема блочной клетки (нормальный вариант)
II вариант (усложненная компоновка)

Рисунок 2 – Схема блочной клетки (усложненный вариант)
Принимаем настил, как и в I варианте.
Расстояние между балками настила а = 600/8 = 75 см < 78 см.
Пролет балки настила l = 3,75 м.
Нормативная и расчетная нагрузка на нее:
qн
= (22 + 0,785)·0,750 = 17,1 кН/м = 0,171 кН/см.
q = (1,2·22 + 1,05·0,785)·0,75 = 20,42 кН/м
Расчетный изгибаемый момент и требуемый момент сопротивления балки


Примем I 20
, имеющий: I
= 1840 см4
,
W = 184 см3
,
g = 21 кг/м.
Проверяем только прогиб балки, т. к. W = 184 см3
>
Wтр
= 145 см3
.

Принятое сечение удовлетворяет условиям прочности и прогиба.
Определяем нормативную и расчетную нагрузку на вспомогательную балку:


Определяем расчетный изгибающий момент и требуемый момент сопротивления вспомогательной балки:


Принимаем I 55
, имеющий: I = 55150см4
;
W = 2000 см3
ширину и толщину полки
b
= 18 см,
t = 1,65 см,
g = 89,8 кг/м
Т.к. W
= 2000см3
> Wтр
= 1873 см3
, проверяем балку на прогиб

Затем проверяем общую устойчивость вспомогательных балок в середине пролета, в сечении с наибольшими нормальными напряжениями. Их сжатый пояс закреплен от поперечных смещений балками настила, которые вместе с приваренным к ним настилом образуют жесткий диск. В этом случае за расчетный пролет следует принимать расстояние между балками настила l0
= 75 см.
Исходя из условий формулы
 в сечение l/2
;
при τ = 0
и с1
= с
получаем

Подставляя значения δ в формулу, получаем:

Поскольку 5,62 > 4,17,
принятое сечение удовлетворяет требованиям прочности, устойчивости и прогиба.
Суммарный расход металла
78,5 + 21/0,75 + 89,8/3,75 = 133,455 кг/м2
По расходу материала I вариант выгоднее.
4. Определение высоты и размеров главной балки

Рисунок 3 – Расчетная схема и усилия в главной балке


Найдем усилия:



Минимальная высота сечения сварной балки из условия жесткости при f/
l
=1/200
должна быть (см. с. 91 (II)):
hmin
/
l = 1/30
, откуда
hmin
= 1500/30 = 50
При расчете по эмпирической формуле толщина стенки составит
tст
= 7 + 3·500/1000 = 8,5 мм
.
Принимаем таблицу стенки 10 мм
(четного размера).
Оптимальная высота балки при tст
= 10 мм
будет:

где k
= 1,15
– для сварных балок.
Назначаем высоту балки 170 см.
Проверяем принятую толщину стенки из условия действия касательных напряжений:
tст
= 3
Q/2
hRs
γc
= 3·1275000/2·170·13500·1 = 0,8 см < 1 см
,
т.е. условие удовлетворяется.
Проверяем условие, при соблюдении которого не требуется постановка продольных ребер в стенке

Принятая стенка толщиной 10 мм удовлетворяет прочности на действие касательных напряжений и не требует постановки продольного ребра для обеспечения местной устойчивости.
Подбираем сечение сварной балки:
I =
W (
h/2) = 20787·(170/2) = 1766895 см4
Iст
=
tст
·
hст
3
/12 = 1·(170 – 2
tn
)3
/12 = 1·(170 – 2·2)3
/12 = 381191 см4
–
момент инерции стенки.
где hст
=
h – 2
tn
= 170 – 2·2 = 166 см.
tn
= 2 см
– принимаемая толщина полки.
Момент инерции полок:
In
= I – Iст
= 1766895 – 381191 = 1385704 см
4
.
h0
= h – tn
= 170 – 2 = 168 см
–
расстояние между центрами тяжести полок.
Площадь сечения одной полки
An
= 2In
/h0
2
= 2·1385704/1682
= 98 см
2
.
Ширинаполкиbn
= An
/tn
= 98/2 = 49
см
.
Принимаем сечение полок 500×20 мм.
Проверяем принятую ширину (свес) поясов bn
по формуле, исходя из обеспечения их местной устойчивости:

условие удовлетворяется тоже, при упругопластической работе сечения балки

где hcn
=
h – 2
tn
= 170 – 2·2 = 166 см
.
Проверяем принятое сечение на прочность
Фактический момент инерции
I = (tст
– hст
3
/12) + 2a2
An
= (1·1663
/12) + 2·842
·100 = 1792391 см
4
,
где a =
h0
/2 = 168/2 = 84 см
.
Фактический момент сопротивления
W =
I/(
h/2) = 1792391/85 = 21087 см3
.
Напряжение по формуле составит
σ =
M/
W = 4781·105
/21087 = 226,7 < 230 МПа =
Ry
γc
,
условие удовлетворяется.
Проверяем касательные напряжения по нейтральной оси сечения у опоры балки
τ =
QS/
Itст
= 1275000·11844/1792391·1 = 8425 Н/см2
= 84 МПа <
Rs
γc
= =135 МПа
.
где S
– статический момент полусечения
S = An
·(h0
/2) + (Aст
/2)·(hст
/4) = 100·84 + (1·166·166/2·4) = 11844 см
3
Полная площадь сечения баки
А = 166·1 + 2·100 = 366 см2
Масса 1 м
балки (без ребер жесткости):
а = 366·100 (7850/106
) = 287 кг/м
, а с ребрами жесткости 1,03·287 =
= 296 кг/м
.
5. Расчет соединения поясов со стенкой
Сдвигающее усилие Т
, приходящееся на 1 см
длины балки составит:
T = τ·tст
=QSn
/I = 1275·8400/1792391 = 6 кН
,
где Sn
– статический момент пояса (сдвигаемого по стыку со стенкой) относительно нейтральной оси:
Sn
=
An
·(
h0
/2) = 10·84 = 8400 см3
.
Сдвигающая сила Т
воспринимается двумя швами, тогда минимальная толщина этих швов при длине lw
= 1 см
, будет
kf
≥
QSn
/
n·
I·(
βRw
)·
γc
=
T/2·(
βRw
)·
γc
= 6000/2·1·1·16200 = 0,185 см,
где (
βRw
)
– меньшее из произведений коэффициента глубины проплавления (β
f
или β
z
) на расчетное сопротивление, принимаемое по условному срезу металла на границе сплавления шва (Rwzγwz
); при γ
wt = γ
wz = = 1
и для автоматической сварки проволокой d
= 2 мм
марки СВ – 08А (по ГОСТ 2246 – 70*) β
f
= 0,9 имели
β
fRwfγ
wf = 0,9·180·1 = 162 МПа.
Принимаем конструктивно минимальную толщину шва kf
= 7 мм
, рекомендуемую при толщине пояса 17 – 22 мм
(см. табл. 3.3. с. 62 [II]).
6. Изменение сечения балки по длине

Рисунок 4 – К изменению сечения по длине
Место изменения сечения принимаем на расстоянии 1
/6
пролета от опоры. Сечение изменяем уменьшением ширины поясов. Разные сечения поясов соединяем сварным швом встык электродами Э42 без применения физических методов контроля.
Определяем расчетный момент и перерезывающую силу в сечении:
x =
l/6 = 15,6 = 2,5 м
M1
= [
qx·(
l –
x)]/2 = [170·2,5·(15 – 2,5)]/2 = 2656 кН·м = 265600 кН·см
Q1
=
q·(
l/2 –
x) = 170·(15/2 – 2,5) = 850 кН
Определяем требуемый момент сопротивления и момент инерции измененного сечения исходя из прочности сварного стыкового шва, работающего на растяжение:


Определяем требуемый момент инерции поясов (Iст
= 381191 см4
)
In
1
=
I1
–
Iст
= 1154725 – 381191 = 773534 см4
Требуемая площадь сечения поясов
An
1
= 2
In
1
/
h01
= 2·773534/1682
= 54,8 см2
Принимаем пояс 280×20 мм
, An
1
= 56 см2
Принимаемый пояс удовлетворяет рекомендациям
bn
1
> 18 см,
bn
1
>170/10 = 17
cм
Определяем момент инерции и момент сопротивления уменьшенного сечения:
I1
= Iст
+ 2b1
tn
·(h0
/2)2
= 381191 + 2·28·2·(168/2)2
= 1171463 cм
4
W1
= 2I1
/h = 2·1171463/170 = 13782 cм
3
σ
max
= M1
/W1
= 265600/13782 = 19,3 кН
/см
2
< Rсв
= 0,85·23 = 19,55 кН
/см
2
7. Проверка общей и местной устойчивости элементов главной балки
1) Проверка прочности балки.
Проверяем максимальные нормальные напряжения в поясах в середине балки:
σ =
Mmax
/
C1
W = 478100/1,1 = 20,6 кН/см2
<
R = 23 кН/см2
Проверяем максимальное касательное напряжение в стенке на опоре балки:


Проверяем местные напряжения в стенке под балкой настила
σm
=
F/
tст
·
lм
=128,88/1·17,5 = 7,36 кН/см2
<
R,
где F = 2·21,48·6/2 = 128,88 кН
– опорные реакции балок настила
lм
=
b + 2
tn
= 13,5 + 2·2 = 17,5 см
– длина передачи нагрузки на стенку банки.
Проверяем приведенные напряжения в месте изменения сечения балки (где они будут максимальны):

где 


Проверки показали, что прочность балки обеспечена.
2) Проверяем общую устойчивость балки в месте действия максимальных нормальных напряжений, принимая за расчетный пролет l0
– расстояние между балками настила в середине пролета балки, где учтены пластические деформации:
и 

где , так как τ = 0
и С1
= С
В месте уменьшенного сечения балки (балка работает упруго и δ = 1
)

Проверки показали, что общая устойчивость балки обеспечена.
3) Проверка прогиба не производится, так как h = 170 > 50 см =
hmin
Рисунок 5 – Схема монтажного стыка главной балки
8. Расстановка ребер жесткости
Определяем необходимость постановки ребер жесткости:

λст
= 2,2
– при действии местной нагрузки на пояс балки.
Вертикальные ребра жесткости необходимы. Кроме того, в зоне учета пластических деформаций необходима постановка ребер жесткости под каждой балкой настила, т. к. местные напряжения в стенке в этой зоне не допустимы. Определяем длину зоны использования пластических деформаций в стенке по формуле:

Определяем средние значения М
и Q
на расстоянии х = 157,9 см
. от опоры под балкой настила
M2
= [
qx·(
l –
x)]/2 = [170·1,579 (15 – 1,579)]/2 = 1801 кН·м = 180100 кН·см
Q =
q·(
l/2 –
x) = 170·(15/2 – 1,579) = 1006,5 кН
Определяем действующие напряжения:

где W = 20787 см3
из определения высоты и размеров главной балки.

σм
= 7,36 кН/см2
(из расчета балки на устойчивость)
Определяем критические напряжения:

где h0
=
hc
т
, λусл
= λст
= 4,9
Rср
= 13,5 кН/см2
Размеры отсека a1
/
h0
=
M = 0,95 и δм
/σ = 7,36/8,46 = 0,86

По таблице 7.6. (с. 158 [I]) при δ = 1,9;
a/
h0
= 0,9
предельное значение σм
/σ = 0,109
Расчетное значение σм
/σ = 0,86 > 0,109
σкр
определяем по формуле:
где скр
= 33,1
по табл. 7.4 (с. 155 [I]) при δ = 1,9
Определяем σмкр

где 
с1
= 11
по табл. 7.5 (с. 156 [I]) при δ = 1,9
a1
/2
hст
= 157,9/2·166 = 0,47
Подставляем все значения в формулу

Устойчивость стенки обеспечена и постановка ребер жесткости на расстоянии а1
= 157,9 см
возможна.
Определяем размеры ребер жесткости ширина bp
=
hст
/30+40 = 1660/30 + 40 = 95 мм
Примем bp
= 120 мм
толщина 
Примем tp
= 7
9.
Расчет монтажного стыка главной балки
Рисунок 6 – Схема опорной части главной балки
Стык делаем в середине пролета балки, где М = 4781 кН·м
и Q = 0
.
Стык осуществляем высокопрочными болтами d = 20 мм
из стали «селект», имеющий по таблице 6.2 ; обработка поверхности газопламенная. Несущая способность болта, имеющего две плоскости трения:

где 
γб
= 0,85
:
т. к. разница в номинальных диаметрах отверстия и болта больше 1 мм
;
М
= 0,42 и γн
= 1,02;
Принимая способность регулирования натяжения болта по углу закручивания, k = 2
– две плоскости трения.
Стык поясов. Каждый пояс балки перекрываем тремя накладками сечениями 500×12 мм
и 2×220×12 мм
, общей площадью сечения
An
= 1,2·(50 + 2·22) = 112,8
см2
>
An
= 100
см2
Усилие в поясе определяем по формуле:
Mn
= MIn
/I = 4781·1385704/1792391 = 3696 кН
·м
Nn
= Mn
/h0
= 3696/1,68 = 2200 кН
где I,
In
,
h0
– из расчета главной балки
Количество болтов для прикрепления накладок рассчитываем по формуле:
n =
Nn
/
QВБ
= 2200/132 = 16,6
Принимаем 16 болтов.
Стык стенки. Стенку перекрываем двумя вертикальными накладками сечением 320×1560×8 мм
.
Определяем момент, действующий на стенку
Мст
=
MIст
/
I = 4781·381191/1792391 = 1016 кН·м
Принимаем расстояние между крайними по высоте рядами болтов:
amax
= 1660·2·80 = 1500
Находим коэффициент стыка 
= Mст
/
mamax
QВБ
= 101600/2·150·132 = 2,56
Из таблицы 7.8 (с. 166 [I]) находим количество рядов болтов по вертикали k
.
при = 2,56
k
= 13
Принимаем 13 рядов с шагом 125 мм.
Проверяем стык стенки по формуле:


Проверяем ослабление нижнего растянутого пояса
Ап.нт
= 2,0·(50 – 2·5,785) = 86,86 см2
> 0,85 А
n
= 0,85·100 = 85
см2
Ослабление пояса можно не учитывать.
Проверяем ослабление накладок в середине стыка четырьмя отверстиями
= 112,8 – 4·2·1,2·5,785 = 57,2 см2
< 0,85
An
= 85 см2
.
Принимаем накладки толщиной 18 мм
= 1,8·(50+2·22) – 4,2·1,8·5,785=85,9
cм2
>0,85
An
= 85 см2
10. Расчет опорной части главной балки
Опорная реакция балки F = 1275 кН
Определяем площадь смятия торца ребра

где Rсм.т.
= 35,5 кН/см2
= 355 МПа
(прил. 4 [I]).
Принимаем ребро 280×14 мм
,
Ар
= 28·1,4 = 39,2 см2
>35,9 см2
.
Проверяем опорную стойку балки на устойчивость относительно оси Z. Ширина участка стенки, включенной в работу опорной стойки:

Аст
= АР
+
tc
т
·
bст
= 39,2 + 1·19,45 = 58,65 см2
Iz
= 1,4·283
/12 + 19,45·13
/12 = 2562
cм4

λ =
hст
/
iz = 166/6,6 = 25,1
по приложению 7 (I) φ = 0,947

Рассчитываем прикрепление опорного ребра к стенке балки двусторонними швами полуавтоматической сваркой проволокой СВ
– 08Г2
. Предварительно находим параметры сварных швов и определяем минимальное значение β
. По таблице 5.1 (I) принимаем = 215 МПа = 21,5 кН/см2
; по прилож. 4 (I) – =165 МПа = 16б5 кН/см2
, по табл. 5.4. (I)
βш
= 0,9;
βс
= 1,05
βш
· = 0,9·21,5 = 19,3 кН/см2
>
βc
· = 1,05·16,5 = 17,32 кН/см2
Определяем катет сварных швов по формуле:

Принимаем швов kм
= 7 мм.
Проверяем длину рабочей части шва:
lм
= 85·βс
·
kм
= 85·1,05·0,7 = 62,5 см <
hc
т
= 166 см
Ребро привариваем к стенке по всей высоте сплошными швами.
11. Подбор и компоновка сечения сквозной колонны
Постоянная нагрузка от собственного веса колонны – 1,5 кПа
. Расчетное усилие в стержне колонны:
N = 1,01·(np
·p + ng
·g) ·A·B = 1,01·(1,2·22 + 1,05·1,5) ·15·6 = 2540 кН
Длина колонны: l0
= 11 – 0,01 – 0,3 – 1,72 = 8,97 м
Зададимся гибкостью λ = 60
и находим φ = 0,785
(по прил 7 [1]), площадь сечения
Aтр
=
N/(
φ·
R) =2540/0,785·28 = 115,5 см2
,
где R = 28 кН/м2
– расчетное сопротивление для стали марки Вст
3nc6 – 2 радиус инерции:
imp
=
l0
/
λ = 897/60 = 14,95
По сортаменту ГОСТ 8240 – 72* принимаем два швеллера 40 со значениями А = 2·61,5 = 123 см3
;
ix
= 15,7 см
.
Рассчитываем гибкость относительно оси х
λх
= 897/15,7 = 57; φх
= 0,800
(прил. 7)
Проверяем устойчивость относительно оси х
σ =
N/φ
A = 2540/0,8·123 = 25,8 кН/м2
<
R = 28 кН/см2

Рисунок 7 – Сечение сквозной колонны
Расчет относительно свободной оси.
Определяем расстояние между ветвями колонны из условий равноустойчивости колонны в двух плоскостях λпр
= λх
, затем требуемую гибкость относительно свободной оси у-у по формуле:

Принимаем гибкость ветви равной 30 и находим 
Полученной гибкости соответствуют радиус инерции iy
= 897/48 = 18,7
см; и требуемое расстояние между ветвями b =
i·
y/0,44 = 18,7/0,44 = 42 см
Полученное расстояние должно быть не менее двойной ширины полок швеллеров плюс зазор, необходимый для оправки внутренних поверхностей стержня bтр
= 2·115 + 100 = 330 мм < 42 см
, следовательно принимаем ширину колонны = 420 мм.
Проверка сечения относительно свободной оси.
Из сортамента имеет: I1
= 642 см4
;
i1
= 3,23 см;
z0
= 2,68 см
.
Iy
= 2·[642 + 61,5·(21 – 2,75)2
] = 42250 см4
Расчетная длина ветви lb
=
λ1
·
i1
= 30·3,23= 97 см
Принимаем расстояние между планками 97 см
м сечение планок 10×250 мм,
тогда
Iпл
= 1·253
/12 = 1302 см4
Радиус инерции сечения стержня относительно свободной оси

Гибкость стержня относительно свободной оси
λу
= 897/18,5 = 48,5
Для вычисления приведенной гибкости относительно свободной оси надо проверить отношение погонных жесткостей планки и ветви
Iпл
/b0:
I1
/lв
= Iпл
·lв
/I1
b0
= 1302·122/642·36,5 = 6,7 >5
Здесь b0
= 42 – 2·2,75 = 36,5 см
– расстояние между ветвями в осях.
Приведенную гибкость вычисляем по формуле при отношении погонных жесткостей планки и ветвей более 5.

Т.к. λпр
= λх
, напряжение можно не проверять, колонна устойчива в двух плоскостях.

Рисунок 8 – К проверке сечения относительно свободной оси
Расчет планок
Расчетная поперечная сила:
Qусл
= 0,27А = 0,27·123 = 33,21 кН
Поперечная сила, приходящаяся на планку одной грани.
Qпл
=
Qусл
/2 = 33,21/2 = 16,6 кН
Изгибающий момент и поперечная сила в месте прикрепления планки
Мпл
=
Qпл
·
lb
/2 = 16,6·122/2 = 1012 кН·см
Fпл
=
Qlb
/
ba
= 16,6·122/36,5 = 55,5 кН
Принимаем приварку планок к полкам швеллеров угловыми швами с катетом шва kш
= 0,8 см.
= 200 МПа, βш
= 0,8
Необходима проверка по металлу шва. Расчетная площадь шва
Ауш
=
kш
·
lш
= 0,8·(25 – 2·0,8) = 18,72 см2
Момент сопротивления шва
Wш
=
kш
·
l2
ш
/6 = 0,8·(25 – 2·0,8)2
/6 = 73 см3
Напряжение в шве от момента и поперечной силы:
σуш
= Мпл
/
Wш
= 1012/73 = 13,86 кН/см2
τуш
=
Fпл
/Ауш
= 55,5/18,72 = 2,9 кН/см2
Проверяем прочность шва по равнодействующему напряжению:

Размеры планки 320×250×10
12. Расчет базы колонны
Требуемая площадь плиты из условия смятия бетона найдем по формуле:

где Rсм.б
=
γ·
Rb
, для В 12,5
=> Rb
= 7,5 МПа
: γ = 1,2
Rc
м.б.
= 1,2·7,5 = 9 МПа
Принимаем плиту размером 55×60 см
Апл
= 55×60 = 3300 см2
; σф
=
N/
Aпл
σф
=
N/
Aпл
= 2540/3300·10-1
= 7,7 МПа <
Rсм.б
= 9 МПа
Толщину плиты принимаем из расчета отдельных участков.
М = σф
·а2
/2 = 770·92
/2 = 31185 Н·см = 0,31 кН·м
Проверим работу среднего участка плиты 1, заключенного между ветвями и опертыми по четырем сторонам. Отношение сторон составит
b/
a = 404/400 = 1,01
Требуемый момент сопротивления сечения плиты составит W =
M/
Ry
γc
= = 31185/20500 = 1,52 см3
,
где Ry
= 205 МПа
– при толщине листов 21 – 40 мм.
При толщине табл. 5.5 (с. 137 II) вычисляем изгибающие моменты для полос шириной 1 см
Ма
= α1
·σф
·а2
= 0,05·770·402
= 61600 Н·см
Мв
= α2
·σф
·а2
= 0,048·770·402
= 59136 Н·см
при b/
a = 1,01
; α1
= 0,05; α2
= 0,048
Требуемую толщину плиты определяем по Ма
:

Принимаем плиту толщиной 40 мм.
Высота листов траверсы:
h =
N/β
f
·
kш
·
Rуш
γс
·
nш
= 2540000/0,7·1·18000·1·1·4 = 50,3 см
где kш
= 10 мм
, n = 4
– число швов.
Принимаем высоту траверсы = 50 см.
Анкерные болты принимаем конструктивно диаметром 24 мм
.
Размеры фундамента в плане принимают на 15 – 20 см
в каждую сторону от опорной плиты.
LФ
×ВФ
= 80×90 см

условие прочности фундамента соблюдаются. Глубина заделки анкеров диаметром 24 мм
должна быть не менее 850 мм
.
Рисунок 9 – Схема базы колонны
13. Расчет оголовка колонны
Рисунок 10 – Схема оголовка колонны
Принимаем толщину опорной плиты оголовка 20 мм
.
При kш
= 0,8 см
, высота ребра составит:
hp
=
N/4
βf
·
kш
·
Rуш
·γуш
·γс
= 2540000/4·0,7·0,8·18000·1·1 = 62 см
.
Принимаем высоту ребра 62 см
.
Длина ребра lp
= 320 мм =
z
lp
= 28 + 2 + 2 = 32
Толщина ребра:
tp
=
N/
lp
·
Rs
= 2540000/0,32·33200 = 2,4 см
Принимаем tp
= 25 мм
Rs
= 332 МПа
z
– расчетная длина распределения местного давления опорных ребер балки.
Проверяем напряжение в швах, прикрепляющих ребра оголовка к плите при kш
= 12 мм
.
σ =
N/
βf
·
hш
·Σ
lш
= 2540000/0,7·1,2·154 = 19635 Н/см2
= 196,35 МПа < <
Rуш
·γуш
·γс
= 200 МПа,
где Σ
lш
= 2·42 + 2·(40 – 5) = 154 см
Ветви колонны приваривают к опорной плите швами толщиной 6 – 8 мм
.
Размер плиты оголовка назначаем конструктивно 500×460 мм.
Литература
1. Металлические конструкции. Учебник для вузов. Под редакцией Е.И. Беленя – М.: Стройиздат, 1986 г.
2. Примеры расчета металлических конструкций. Учебное пособие для техникумов. Мандриков А.П. – М.: Стройиздат, 2001 г.
3. Методические указания. Сост. И.В. Слепнев. Краснодар, 2006 г.
|